Mini-Highrise
Stadthaus in Manhattan von Archi-Tectonics
(c) Archi-Tectonics
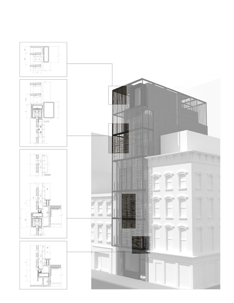
Im New Yorker Stadtteil SoHo haben Archi-Tectonics einen viergeschossigen Altbau zur siebengeschossigen Familienresidenz aufgestockt. Ein faltbares Brise-Soleil umhüllt und abstrahiert die Obergeschossfassaden. Mit einigen klugen Schachzügen brachten die Architekten Tageslicht tief in die Innenräume.


Dies ist eine Bildunterschrift
Ein Wohnhaus dieser Art kann wohl nur in Manhattan entstehen: Sieben Geschosse hoch ist das Einfamilienhaus, das Archi-Tectonics im New Yorker Stadtteil SoHo errichtet hatten. Dabei setzten sie einen viergeschossigen Ziegelbau mit Holzdecken drei weitere Etagen in Stahlskelettbauweise auf. Das Resultat umhüllten und abstrahierten sie mit einem „Climate Skin“ aus dunkelgrauen HPL-Latten auf einer Metallunterkonstruktion. Die teils in Holzoptik gehaltenen Latten bilden vor der Eingangsfassade im Osten zu öffnende Faltläden, weiter oben breiten sie sich als Pergola über die Dachterrasse des Hauses.
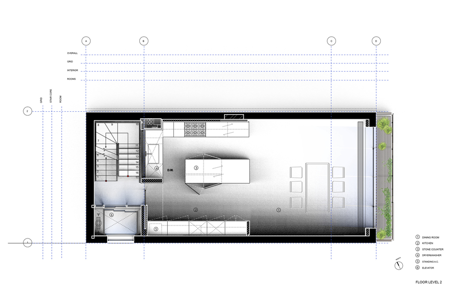
Im Inneren sind die Nutzungen, die sonst nebeneinander liegen, notgedrungen übereinandergestapelt: Im Erdgeschoss und im fünften Obergeschoss liegen zwei Gästezimmer, letzteres in Kombination mit dem Home-Office der Eigentümer. Dazwischen lautet die Sequenz, von unten nach oben: Küche und Esszimmer (1. Obergeschoss), Wohnzimmer (2. Obergeschoss), zwei Kinderzimmer mit Bad (3. Obergeschoss) und das große Elternschlafzimmer mit Bad und Ankleide (4. Obergeschoss). Ein Aufzug und ein verglastes Treppenhaus im rückwärtigen Gebäudebereich verbinden die Etagen miteinander. Außerdem bringt dort ein hoher, schmaler Fensterschlitz zwischen dem 1. und 5. Obergeschoss Licht ins Haus. An einigen Stellen, etwa zwischen Küche und Wohnzimmer sowie zwischen Elternzimmer und Home-Office, sorgen Deckenaussparungen für weitere, vertikale Durchblicke. Im Elternschlafzimmer weicht die Glasfassade hinter dem HPL-Gitterwerk etwas zurück, so dass eine von der Straße nicht einsehbare Dachterrasse auf dem ehemaligen Altbau entsteht.


Dies ist eine Bildunterschrift


Dies ist eine Bildunterschrift
Thermodynamischen Simulationen zufolge, die die Architekten angestellt haben, verringert die geschlossene Brise-Soleil die Sonneneinstrahlung im Sommer um 45%. Durch das Öffnen der Faltläden im Winter lässt sich der Strahlungseintrag dagegen um 25% steigern. Damit das alles funktioniert, müssen die Bewohner jedoch mitdenken und -handeln: Mit Ausnahme der Läden vor dem Badezimmerfenster lassen sich die Brise-Soleils ausschließlich manuell bewegen.
Bauherr: privat
Architektur: Archi-Tectonics
Tragwerksplanung: WSP Group
TGA-Planung: 2LS Consulting Engineering
Bauunternehmen: Galcon Construction
Standort:
512 Greenwich Street
New York City (US)





















