Tour de force in timber construction
University Building in Arkansas by Grafton Architects and Modus Studio
The folded roof of the building rises from one to four storeys from south to north. © Timothy Hursley
Arkansas does not fit the common image of the Midwestern United States with its endless prairies and cornfields. Low mountain ranges rise to 800 m above sea level and 60% of the state is covered by oak, pine and hickory forests. It is actually an ideal region for timber construction. The University of Arkansas in Fayetteville, a city of 100,000 inhabitants in the far north-west of the state, has long been committed to exploiting this natural resource and incorporating it into its teaching. The driving force behind this is Peter MacKeith, Dean of the Faculty of Architecture and Design since 2014. He learnt his craft in Finland, the Mecca of timber construction.


Longitudinal section of the Anthony Timberlands Centre, Graphic © Grafton Architects/Modus Studio
A gathering of timber construction luminaries
Under MacKeith's leadership, the university launched an ambitious architecture competition in 2020 for the construction of a new research and teaching building. 69 firms from 10 countries took part. The list of finalists reads like a who's who of international timber construction: Shigeru Ban, Dorte Mandrup and Lever Architecture. The winners, however, were Grafton Architects from Dublin – just one week before their founders, Shelley McNamara and Yvonne Farrell, were awarded the Pritzker Prize.


View of the ground-floor workshop. The glazed lecture hall is suspended from the first-floor roof structure. © Timothy Hursley
Grafton Architects had already gained extensive experience in educational construction by the time they became international known for the construction of the Università Luigi Bocconi in Milan in 2008. Until now, however, the practice was better known for exploring the sculptural qualities of exposed concrete. Their new addition to the portfolio is a four-storey timber building containing workshops, lecture halls and seminar rooms. Grafton Architects were assisted in realising the project by a local planning team led by Modus Studio. This practice was founded several years ago by three graduates of the University of Arkansas.


The north facade, which faces the street, is fully glazed over four storeys. © Timothy Hursley
Timber company as main sponsor
As is often the case, the Anthony Timberlands Centre is named after its main sponsors: the heirs to the family business of the same name, which is the largest private timber processor in Arkansas. For Grafton Architects, the new building in Fayetteville is their first in the USA. It forms part of a campus expansion in the south of the city. A four-storey building with workshops and seminar rooms for the art faculty has already been constructed next to the Timberlands Centre, surrounded by commercial buildings and detached houses. A new building containing gallery spaces and a makerspace is currently under construction as the third component of the "Design District".


On the south side, the workshop opens onto the delivery yard via a large polycarbonate swing door. © Timothy Hursley
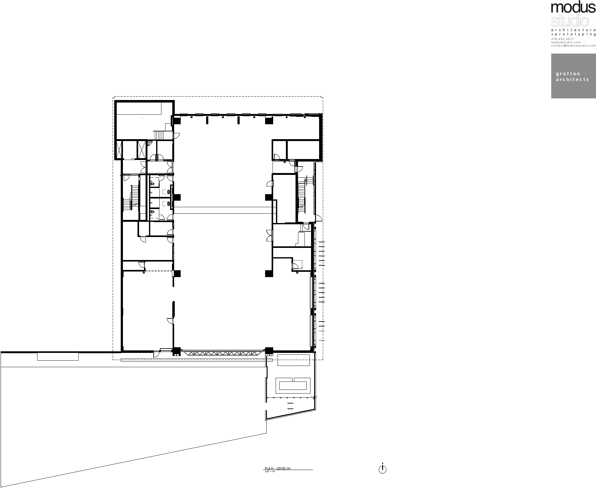
All building functions under one roof
The most striking feature of the new building is undoubtedly the roof, which rises from one to four storeys from south to north. The design is a response to Arkansas's rainy climate, as well as the architects' ambition to bring together all the building's functions under one roof. The Timberlands Centre brings together all of the University of Arkansas's graduate programmes related to timber construction and wood processing within a 4,000 m² space. In addition, the building will house a new research centre for affordable housing.


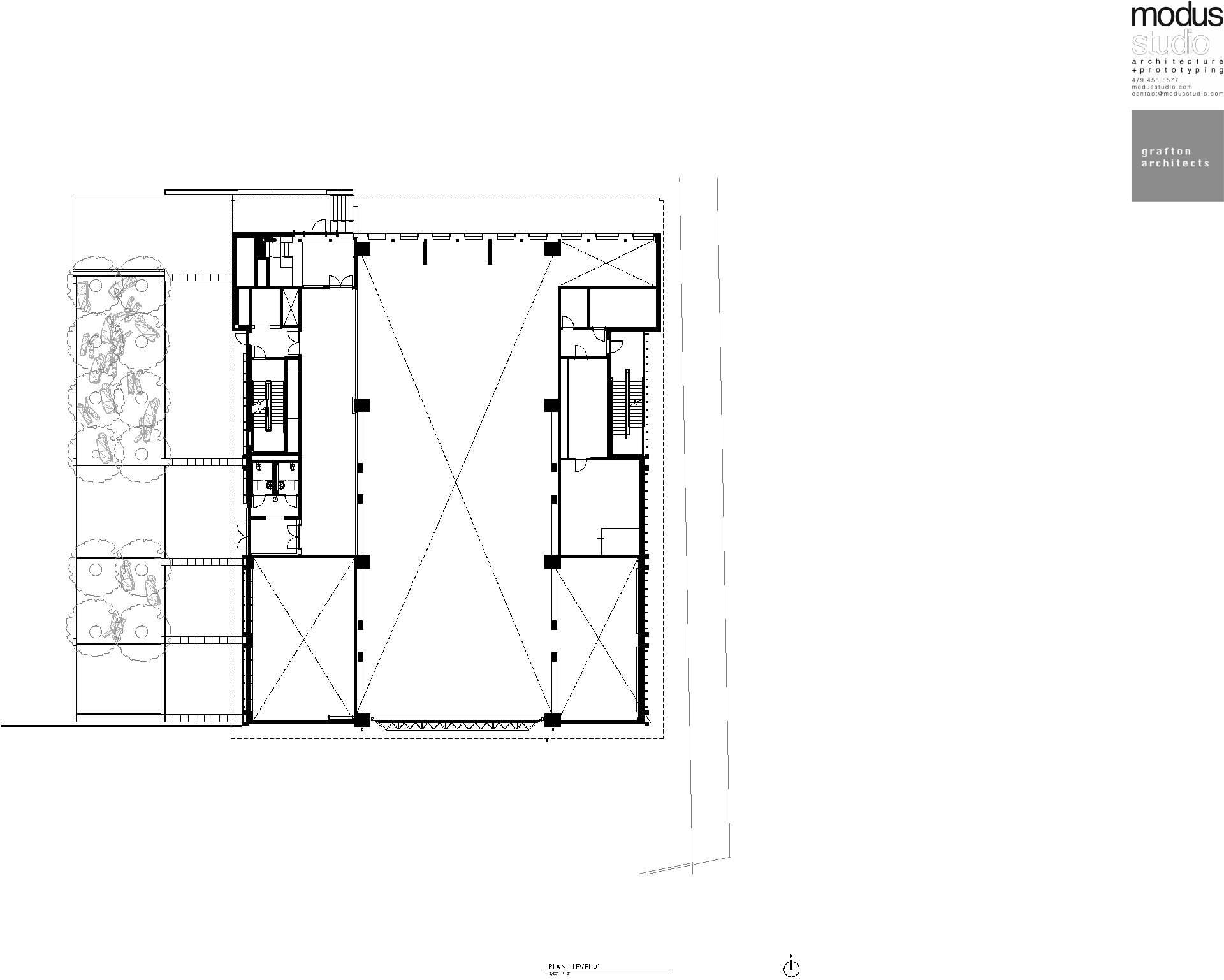
The stairwells are located in the two side wings to the west and east. © Timothy Hursley


A considerable feat of structural engineering was required to enable the three upper floors to float above the workshop without support. © Timothy Hursley
Workshop in the centre of the building
The focal point of the spatial design is the workshop, which occupies approximately 1,000 m² of space on the ground floor. This column-free space extends the entire length of the building. On the south side, even the largest components can be delivered through a large swing door made of polycarbonate web panels. On the north side, a glass front allows views from the street. At first glance, the columns and beams that delimit the space appear oversized, but they support not only the roof and upper floors, but also a gantry crane for moving workpieces around the hall.


Behind the north facade, metre-thick supports bear the weight of the floor slabs and roof. © Timothy Hursley
Sculptural design
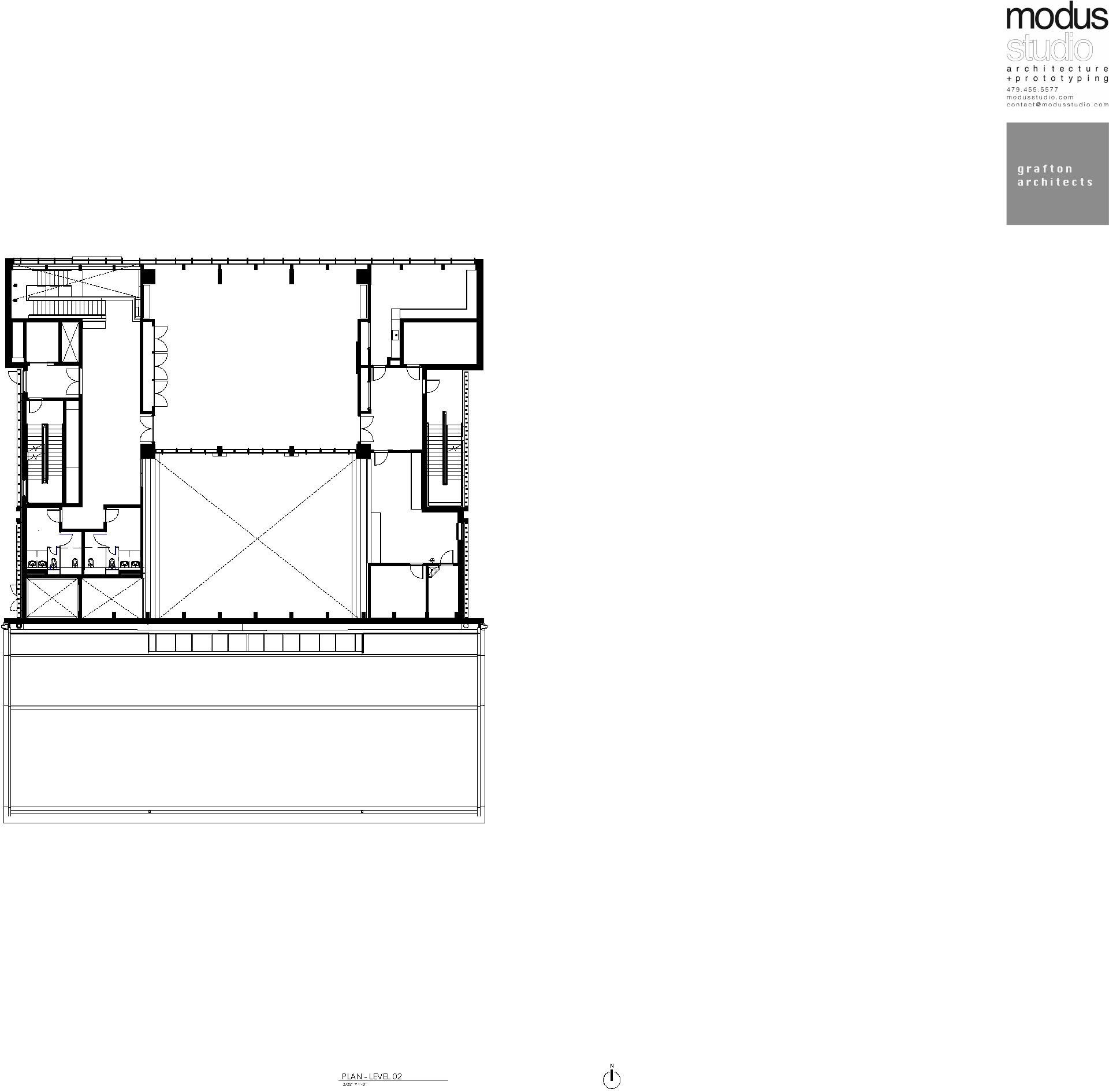
The sculptural potential of the timber construction is fully exploited on the upper floors, which was inevitable given the large spans that had to be bridged. The glazed lecture hall on the first floor is suspended from the roof trusses. In the seminar and studio rooms on the second and third floors, the loads also had to be carried around corners in a somewhat adventurous way. These efforts resulted in open sightlines across all levels and largely column-free rooms, except behind the cantilevered facade on the top two floors.


On the top floor, rooms open onto two covered terraces with robust robinia wood flooring. © Timothy Hursley
A story book of timber construction with Austrian expertise
Yvonne Farrell, co-founder of Grafton Architects, compares her design to a story book that showcases wood in all its forms and applications, whether as a supporting structure or facade cladding, or in its various states of processing, such as being joined, milled, roughly hewn or laminated. The cross-laminated timber panels in the roof construction were manufactured by companies in Arkansas using local pine wood. The open terraces on the fourth floor are adorned with hard-wearing end-grain paving made from robinia wood. The students designed and built the work tables themselves in a workshop. However, the new building also highlights the current limitations of the timber construction industry in Arkansas. As the state's sole laminated timber manufacturer went bankrupt a few years ago, most of the supporting structure had to be manufactured in Austria and transported across the Atlantic.
Architecture: Grafton Architects, Modus Studio
Client: University of Arkansas
Location: 639 Martin Luther King Jr Blvd, Fayetteville, AR 72701 (US)
Structural engineering: Tatum Smith Welcher Structural Engineers, Robbins Engineering Consultants, Whitby Wood
Landscape architecture: Ground Control
Lighting design: TM Light
Sustainability consulting: Atelier Ten
Building services engineering, fire prevention: Affiliated Engineers
Contractor: Nabholz Construction




























