Revitalised laboratory building
University Building in Enschede by Civic Architects
The entrance hall is the social hub of the building and one of the places where the architects removed the floor separation. © Stijn Bollaert
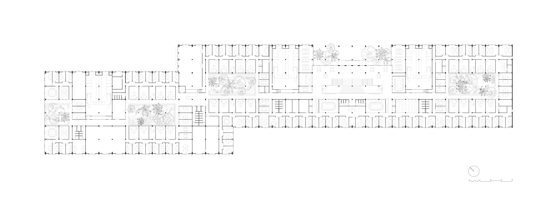
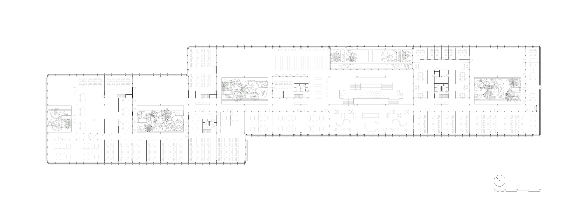
Civic Architects have imaginatively adapted the Langezijds laboratory building, dating from 1972, for the Institute of Geoinformation at the University of Twente in Enschede in the Netherlands. Located on the Drienerlo campus northwest of the city centre, the existing building's enormous dimensions – 220 m long and 38 m deep – did not offer ideal conditions for conversion. The floor heights were also very different: the upper floor had very high ceilings, while the lower level was actually too low for university operations.


The entrance hall is the social hub of the building and one of the places where the architects removed the floor separation. © Stijn Bollaert
Inner courtyards as subtropical oases
During the conversion, Civic Architects pursued a removal strategy. They cut four glass-covered atriums into the building complex: one serves as an entrance foyer, while the other three are green spaces filled with subtropical vegetation.
These three themed areas – a wood garden, a stone garden and a water garden – are supplied with rainwater from the glass roofs. They also ventilate the surrounding rooms.


The three green, glass-covered inner courtyards are places of relaxation and support the building's ventilation. © Stijn Bollaert
Reused sun protection
The different floor heights and their respective functions are clearly visible on the facades. The seminar rooms and lecture halls on the upper floors have been given a new glass shell. On the south side, reused sun protection slats prevent overheating. The offices are located on the cooler ground floor. Here, the building's concrete skeleton is visible from the outside, and its spaces are fitted with glass and oak wood. Openable wings allow the rooms to be manually ventilated.


The facade features large glass panels at the top and smaller window sashes and oak panels at the bottom, © Stijn Bollaert


The facades reflect the different uses of the floors. © Stijn Bollaert
A raised floor spans both storeys
Almost all of the new interior elements, such as the partition walls, stairs and the sprinkler system under the ceilings, follow the existing building grid of 155 cm. On the upper floor, the pipes are exposed, except for one area where a raised bamboo floor accommodates the supply air ducts for both storeys. Stepped towards the facades, it creates attractive seating areas with a view of the outdoors.
You can find out more in Detail 11.2025 and in our Detail Inspiration database.
Architecture: Civic Architects & VDNDP
Client: Universiteit Twente, Enschede
Location: Hallenweg 8, 7522 NH Enschede (NL)
Interior architecture: Studio Groen+Schild
Structural engineering: Schreuders bouwtechniek
Landscape architecture: DS Landschapsarchitecten
Building services engineering: Valstar Simonis
Contractor: Dura Vermeer Bouw Hengelo/Trebbe



















