Laborhaus revitalisiert
Universitätsgebäude in Enschede von Civic Architects
Die Eingangshalle ist das kommunikative Herzstück des Gebäudes – und einer jener Orte, wo die Architekten die Geschosstrennung aufhoben. © Stijn Bollaert
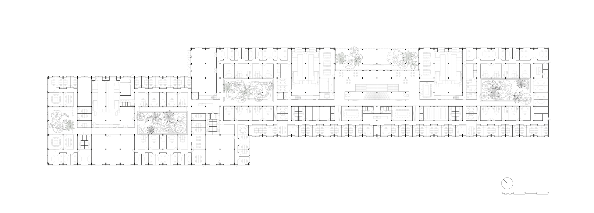
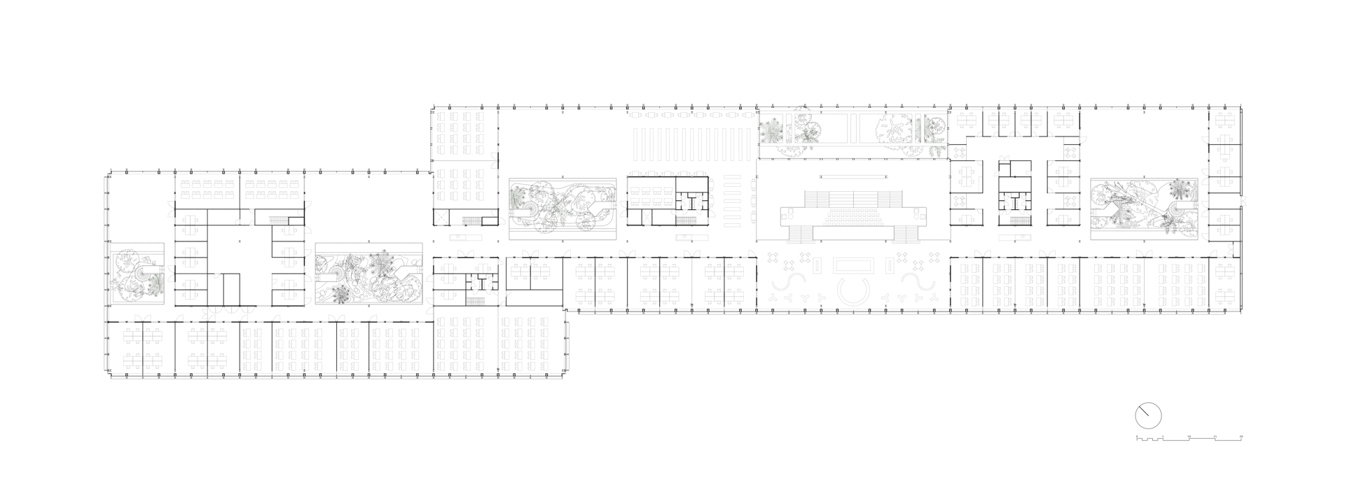
Für das Institut für Geoinformation der Twente-Universität im niederländischen Enschede haben Civic Architects das Laborgebäude Langezijds von 1972 ideenreich adaptiert. Der Bestandsbau steht auf dem Drienerlo-Campus der Universität nordwestlich des Stadtzentrums und bot mit seinen Riesenmaßen – 220 m Länge und 38 m Tiefe – eigentlich keine optimalen Ausgangsbedingungen für die Umnutzung. Hinzu kamen sehr unterschiedliche Geschosshöhen: Das obere Geschoss hat sehr hohe Decken, die untere Ebene war für den Universitätsbetrieb eigentlich zu niedrig.


Die drei begrünten, glasüberdeckten Innenhöfe sind Erholungsorte und unterstützen die Entlüftung des Gebäudes. © Stijn Bollaert
Innenhöfe als subtropische Oasen
Beim Umbau verfolgten Civic Architects daher eine Strategie des Wegnehmens. Sie schnitten vier glasüberdeckte Atrien in den Gebäudekomplex ein, von denen eines als Eingangsfoyer und die drei übrigen als grüne Lungen mit subtropischer Vegetation dienen.
Versorgt werden die drei Themenbereiche – ein Holz-, ein Stein- und ein Wassergarten – mit Regenwasser von den Glasdächern. Außerdem dienen sie der Entlüftung der umliegenden Räume.


Wiederverwendete Sonnenschutzlamellen helfen an der Südfassade gegen Überhitzung. © Stijn Bollaert
Wiederverwendeter Sonnenschutz
An den Fassaden sind die unterschiedlich hohen Geschosse mit ihren Nutzungen deutlich ablesbar. Die Seminarräume und Hörsäle in den oberen Etagen erhielt eine neue Glashülle. Auf der Südseite schützen wiederverwendete Sonnenschutzlamellen vor Überhitzung. Im kühleren Erdgeschoss liegen die Büros. Hier ist das Betonskelett des Gebäudes außen sichtbar; seine Zwischenräume sind mit Glas und Eichenholz ausgefacht. Öffenbare Flügel erlauben hier eine manuelle Lüftung der Räume.


Fassade: Oben großflächiges Glas, unten kleinere Fensterflügel und Eichenholzpaneele, © Stijn Bollaert


Die Fassaden machen die unterschiedliche Nutzung der Geschosse ablesbar. © Stijn Bollaert
Ein Doppelboden für beide Geschosse
In den Innenräumen folgen so gut wie alle neuen Elemente – Trennwände, Treppen und das Sprinklersystem unter den Decken – dem bestehenden Gebäuderaster von 155 cm. Im Obergeschoss sind die Leitungen offen geführt – mit einer Ausnahme: Ein hoher Doppelboden aus Bambus nimmt die Zuluftkanäle für beide Geschosse auf. Zu den Fassaden hin ist er abgetreppt, sodass Sitzstufen mit attraktivem Blick ins Freie entstehen.
Mehr dazu in Detail 11.2025 sowie in unserer Datenbank Detail Inspiration.
Architektur: Civic Architects & VDNDP
Bauherr: Universiteit Twente, Enschede
Standort: Hallenweg 8, 7522 NH Enschede (NL)
Innenarchitektur: Studio Groen+Schild
Tragwerksplanung: Schreuders bouwtechniek
Landschaftsarchitektur: DS Landschapsarchitecten
Bauphysik: Arup
TGA-Planung: Valstar Simonis
Bauunternehmen: Dura Vermeer Bouw Hengelo/Trebbe



















