A windmill with a new inner life
Windmill House by Lublin
© Rafał Chojnacki
Lorem Ipsum: Zwischenüberschrift
Column shafts and natural-stone blocks have always been used as spolia. But wooden boards and windmill blades? These historical elements grace Windmill House, which was designed by Michał Kucharski, Mateusz Piwowarski and Sylwia Ciesielska in the Poland’s eastern region of Lublin.


© Rafał Chojnacki
Lorem Ipsum: Zwischenüberschrift
With this new building in the guise of a 100-year-old windmill, the architects have implemented an idea developed by Kucharski and his architect colleague Tomasz Padło in 2014 for an international ideas competition. When the owner of an old windmill became aware of the design, he commissioned Kucharski and his colleagues to erect a new residence for himself from its remains in a new location 50 km away from its original spot.
Lorem Ipsum: Zwischenüberschrift
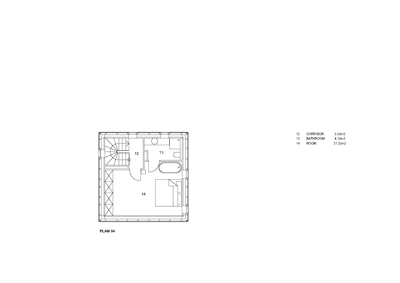
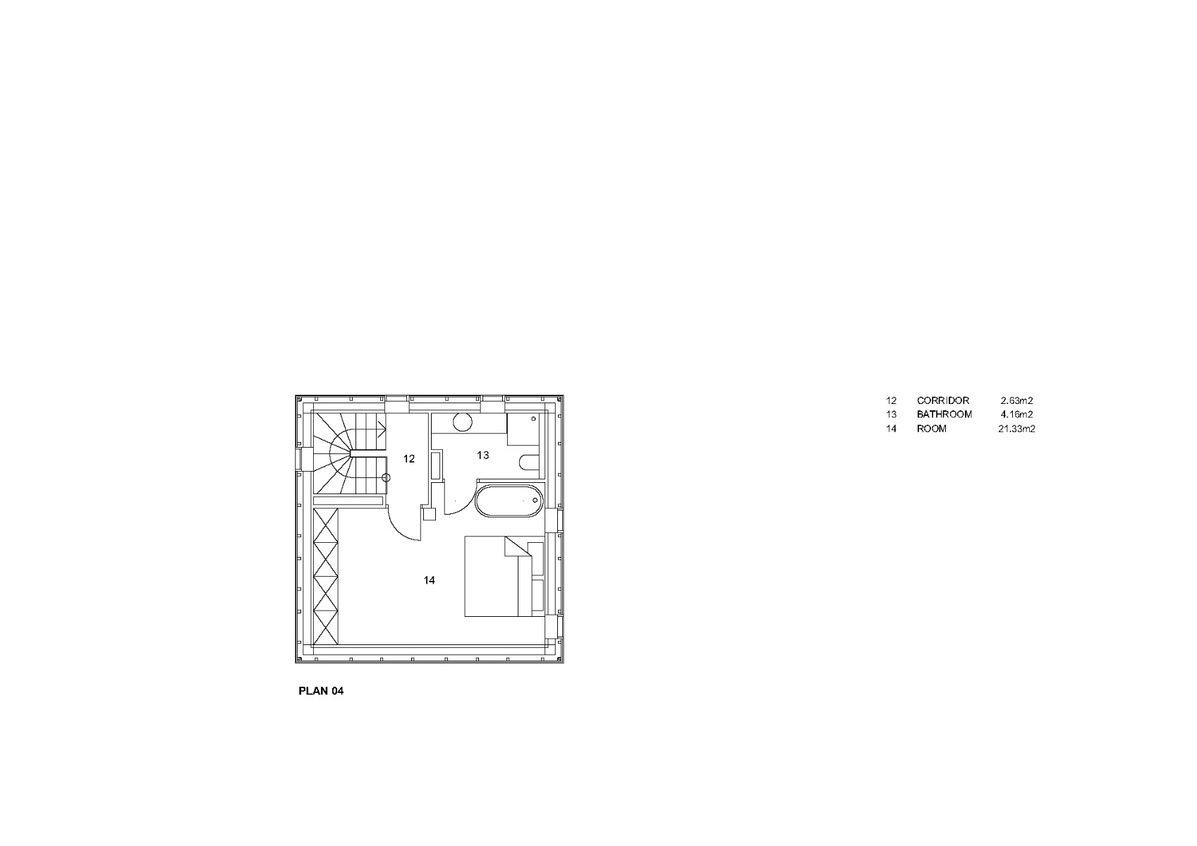
The house measures 6.5 x 6.5 m, which corresponds to the area of the windmill; the tall shape has also been preserved. This is why the living spaces are distributed over three above-ground levels and an additional mezzanine in the jutting rooftop addition. Moreover, the architects have created a protruding lower level with a garage, technical room and a large living area intended to accommodate guests. A concrete cut-in into the ground, half driveway and half terrace, leads to the lower level from both sides.


© Rafał Chojnacki
Lorem Ipsum: Zwischenüberschrift
In the three levels above this, the architects have installed an open living/kitchen area for the family, three bedrooms and two bathrooms. The recessed mezzanine in the gable roof serves as a workspace with a broad view over the surrounding fields. As in the original building, the large cogwheel can be seen in the two-storey atrium in the roof space. This once served to transfer the momentum of the windmill blades to the workings inside it.


© Rafał Chojnacki


© Rafał Chojnacki
Lorem Ipsum: Zwischenüberschrift
On the facades, the architects have complemented the original, preserved cladding boards of the windmill with new, charred surfaces. In the basement, the supporting structure is of exposed concrete; on the above-ground levels it is of timber framing with brick infills. In some spots, the architects have also reused the beams from the old mill. Along the longitudinal facades long, narrow window slits allow daylight into the house. In contrast, the wooden facade facing the road is completely closed in order to preserve as much as possible, at least here, the image of the old mill.
Idea: Michał Kucharski, Tomasz Padło
Architecture: Michał Kucharski, Mateusz Piwowarski (o4architekci), Sylwia Ciesielska
Client: private
Location: Lublin region (PL)
Constructional engineering: Arkadiusz Szałyga
Building services engineering: Kozmik Projekt




























