Lightweight construction on solid foundations
Residential Building in the Basque Country by BeAr
The Nanihuena house can be accessed at ground level from the mountainside. Its wooden structure rests on four solid, spacious concrete supports. © Luis Díaz Díaz
“Nanihuena” is a Basque word that can be roughly translated as “the chosen one”. By building the single-family house of the same name in a newly developed area of the northern Spanish coastal town of Gorliz, the client has realised his dream of having a place to work and retire. His partner, who is a ceramist, usually visits at the weekends. The elongated, single-storey building can be accessed from the mountainside at ground level and is supported by four solid, spacious concrete pillars on the valley side. By avoiding large-scale excavation of the terrain and a surrounding plinth, architects Ane Arce and Iñigo Berasategui were able to minimise the amount of concrete used.


The interior largely consists of one large connected space that can be divided into several sections with curtains. © Luis Díaz Díaz
Large space on solid supports
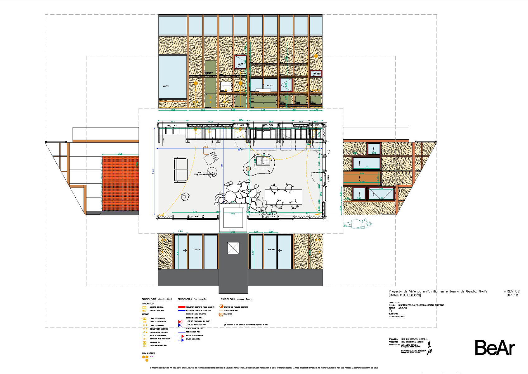
The lower level houses an outdoor shower, a pottery workshop, and the building services installations in the four concrete pillars. Two of the pillars extend to just below the eaves. On the living floor of the house, they house a fireplace and a circular room with a toilet and shower under a large glass roof. Except for the turquoise-green painted bathroom, the rest of the upper floor consists of a single room that can be divided into sections by curtains.


The large concrete supports house the building services, among other things. © Luis Díaz Díaz


The facades are clad with coloured, glazed plywood. © Luis Díaz Díaz
Resource-minimised concrete structure
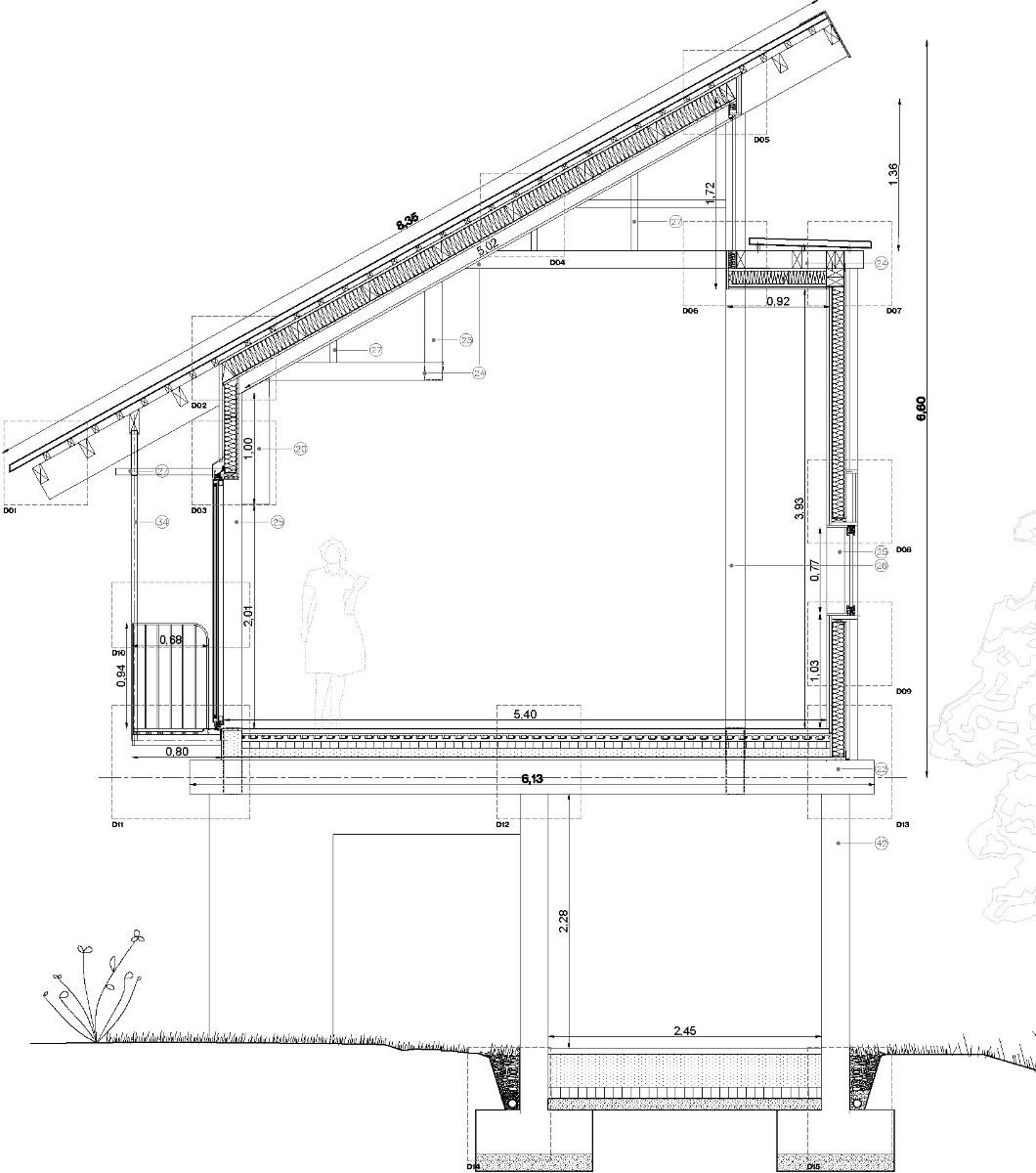
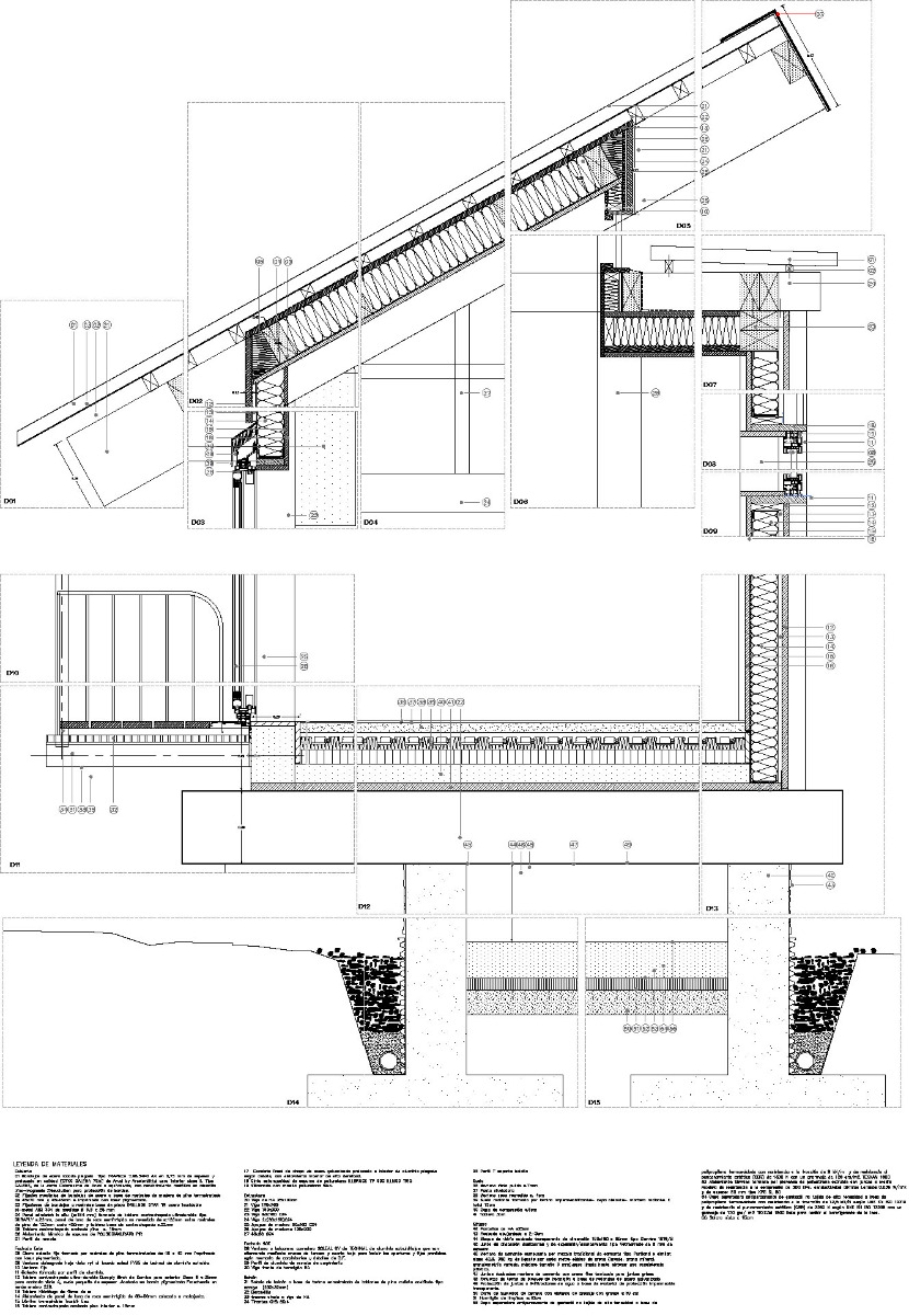
The wooden structure of the house is partially suspended from a solid concrete beam under the eaves. This means that the load-bearing elements are only subjected to tensile stress and could be made slimmer. On the opposite side, the load-bearing structure rests on a concrete beam beneath the floor slab. Above this are two rows of columns that support the monopitch roof and a small canopy. Under this canopy, the architects have combined a long worktop with cupboards and shelves. These shelves serve not only as storage space, but also reinforce the structure.


All the storage space is located in a flat-roofed annexe to the left of the house. This allows the rest of the interior to be furnished flexibly. © Luis Díaz Díaz
Range of materials including wood, concrete and polycarbonate
Nanihuena is a house that reveals its true nature. Inside, the rooms are dominated by red exposed concrete and lacquered plywood wall cladding. Outside, the facades are clad with dark red and light green glazed plywood panels. In addition to numerous windows of various sizes on the facade, the rooms are illuminated by a strip of skylights running the entire length of the building. It consists of a double-shell polycarbonate construction, with a corrugated sheet on the outside and a multi-chamber panel on the inside. In winter, an air-water heat pump with connected underfloor heating provides warmth to the rooms.
Architecture: BeAr (Ane Arce, Iñigo Berasategui)
Client: private
Location: Gorliz, Bizkaia (ES)
Structural engineering: Mecanismo
Landscape architecture: LurGarden (Iñigo Segurola)





























