Expansion and renovation
House in Ghent by Graux & Baeyens Architecten
Two watercourses delimit the spit where the narrow house is located. © Jeroen Verrecht
In Ghent, Graux & Baeyens Architecten have renovated a house and expanded it with an addition. The expansion offers space for urban family living and ensures a logical flow of movement inside.


On the ground floor, the new addition is home to the kitchen. Terrazzo tile has been used for the counter and reappears as flooring. © Jeroen Verrecht
The small lot is home to its own bicycle repair workshop. The house itself enjoys a central location in the Belgian city of Ghent. Two parallel watercourses delimit the long spit known as the Visserij, where this distinct parcel of land is found.
Expansion
In order to enable the best possible fall of light, the planners have replaced the narrow, old addition. The new one fans out along the entire breadth of the lot. The adjacent terrace, despite its small size, appears surprisingly bright. This effect is accentuated by the graduated heights of the addition.


In the bathroom, a low window offers a fabulous view of the city. © Jeroen Verrecht
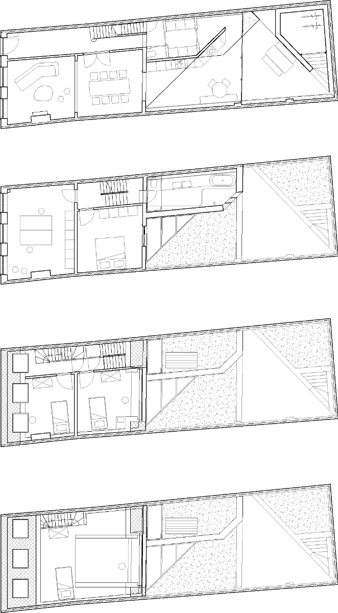
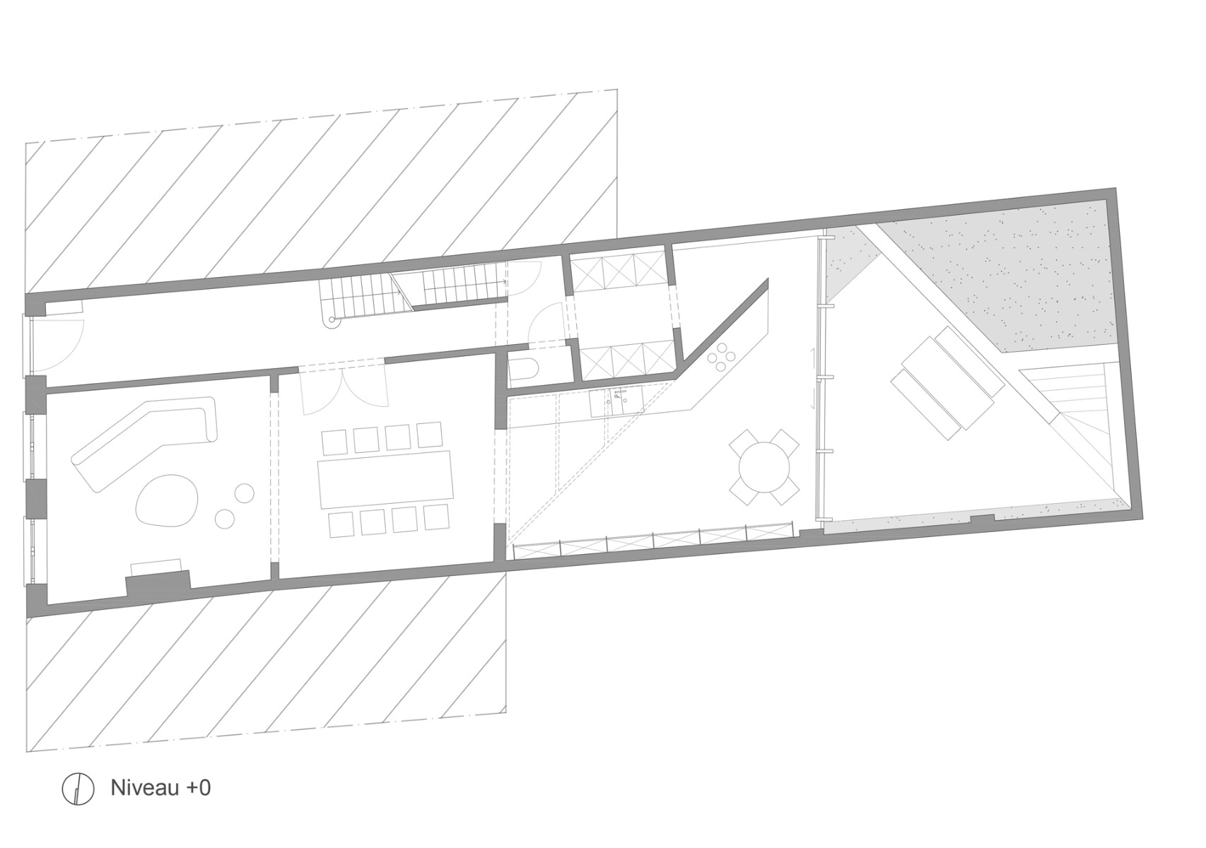
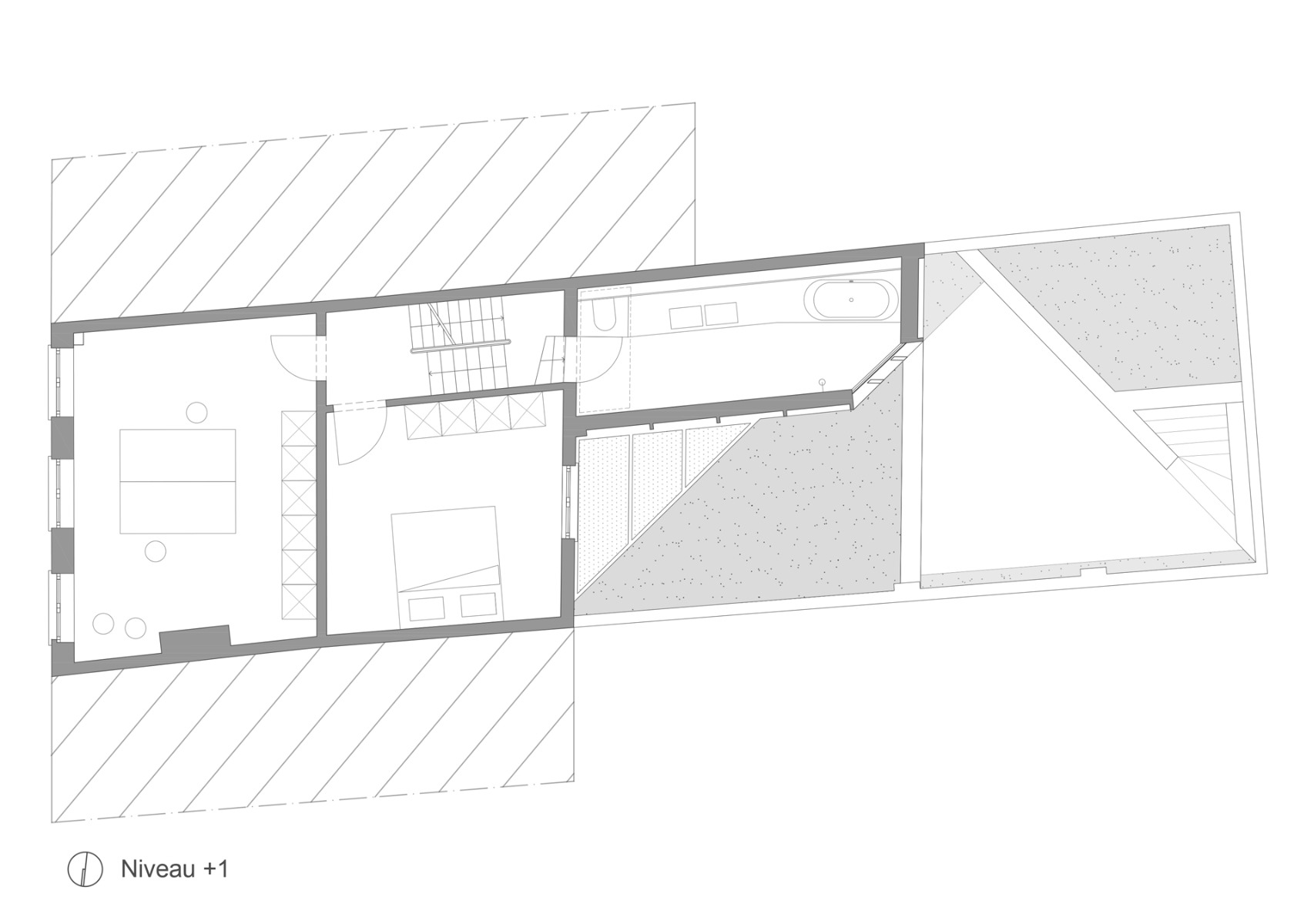
Spatial concept
The ground floor of the existing building accommodates the living areas; the addition is devoted to the light-flooded kitchen. The bedrooms are found on the upper levels. The new bathroom on the first upper storey offers an exceptional view of Ghent from the shower. The floor-to-ceiling window in the roof dormer frames the urban panorama.


The view from the large dormer window is no less spectacular. The division of the windows playfully subdivides the view. © Jeroen Verrecht
Construction
The addition consists of a prefabricated steel construction. The white-painted ribs have been left exposed: their milled recesses create a graphic play of light on the ceiling. The arrangement of the ribs determines the rhythm of the built-in cupboards in between.


The addition is graduated in height. The two joined structures allow the best possible fall of light into the house and onto the terrace. © Jeroen Verrecht


The steel construction has been left exposed; it creates a play of light when the sunbeams shine in. © Jeroen Verrecht
Materials
The architects have subtly interrupted the dominant white of the kitchen with the use of terrazzo and wood. Both of these materials emphasize the connection to the outdoors: the terrazzo flooring continues onto the terrace, and oak reappears on the facade.


A semi-subterranean bicycle repair workshop lies hidden at the rear of the lot. © Jeroen Verrecht
At the family's request, the design also included a separate bicycle workshop. This is located at an angle to the extension, half-submerged at the rear of the property. Graux & Baeyens Architecten succeeded in creating a place in the smallest of spaces that allows for idyllic living in the midst of the hustle and bustle of the city.
Architecture: Graux & Baeyens Architecten
Client: private
Location: Visserij, 9000 Gent (BE)
Structural engineering: Patrick Mylle























