Windcatcher and solar shield
Private Residence in India by Samira Rathod Design Atelier
© Niveditaa Gupta
Lorem Ipsum: Zwischenüberschrift
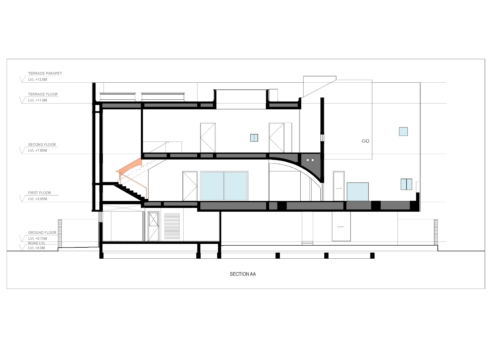
Nomen est omen: For Samira Rathod and her team, providing protection from the heat of northwest India was paramount in designing Cool House, located in the coastal city of Bharuch. Quoting the client, the Bombay-based architect states, "The result is like a funnel that channels all of Bharuch's wind into the house, making it a cool and comfortable haven to live in".


© Niveditaa Gupta
Lorem Ipsum: Zwischenüberschrift
For climatic reasons and because of neighbouring houses in close proximity, the three-storey new-build makes a somewhat closed-off impression. Its few windows are designed to admit cooling breezes but as little direct sunlight as possible into the house.
Lorem Ipsum: Zwischenüberschrift
Indoors the rooms are lined up along a central north-to-south passageway that is indicated on the outside by a hiatus in the end face of the building. One half of the exterior has a dark paint finish; the other comes clad in flat, custom-cut facing elements in grey aerated concrete.


© Niveditaa Gupta
Lorem Ipsum: Zwischenüberschrift
On both sides of the passageway the architects inserted two indoor courtyards each reaching from the first floor to the roof. In the court to the west, a pool of water cools air flowing in through perforations in the outer wall; in the eastern court, trees provide shade and serve as eye-catchers for the upper storey windows.


© Niveditaa Gupta


© Niveditaa Gupta
Lorem Ipsum: Zwischenüberschrift
Particularly in the staircases and the central hallway, sunlight diffusing from above conjures up constantly changing plays of light and shade on walls rendered in fine lime plaster.
Archiecture: Samira Rathod Design Atelier
Client: Tushar Shah
Location: Bharuch (IN)
Structure engineering: Rajeev Shah
Project management: HR Constructions, Mitesh Jadav










































