12.07.2023 Jakob Schoof

Cultural Centre on Cape Verde by Ramos Castellano Arquitectos

Centro Nacional de Artesanato e Design (CNAD) in Mindelo, © Sergio Pirrone

The new facade of the Centro Nacional de Artesanato e Design (CNAD) in Mindelo is more than a colourful eye-catcher. Its sunshade, which is made of more than 2500 hand-lacquered barrel lids, also regulates the indoor climate.

The new facade of the cultural centre consists of more than 2500 hand-lacquered barrel lids. © Sergio Pirrone

Until recently, the CNAD was located in the former residence of the ship owner, merchant and politician Augusto Pereira Vera-Cruz from the end of the 19th century. The house stands at the north end of the Praça Nova square in the centre of Mindelo, whose 70 000 inhabitants make it the second-largest city in the Cape Verdean islands.

Museum expansion

For the museum expansion project, Ramos Castellano positioned a narrow building on the northern edge of the lot. Its development in height ranges from two to five storeys and takes its cue form the residential structures behind it. To the west, south and east, it is completely glazed, while the north side is closed. The lower three levels of the new building are home to exhibition spaces; above these there are a library, offices, seminar rooms and a guest room with two berths for participants in workshops and other events.

Guest room with two berths, © Sergio Pirrone

Built by local artisans

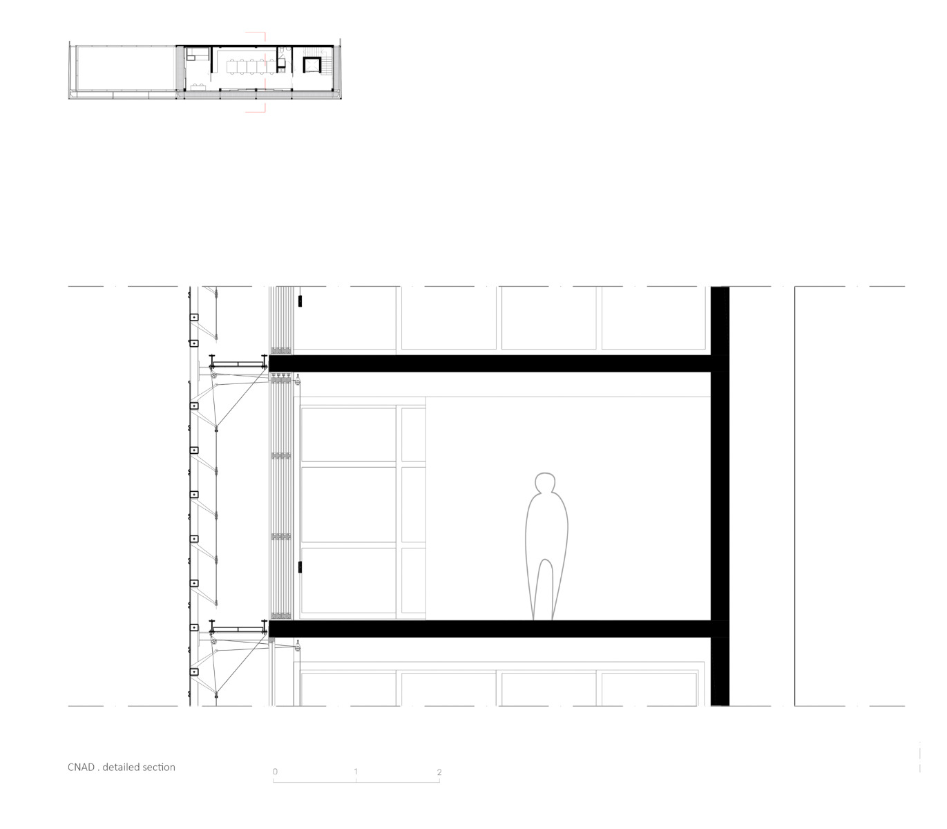
For the government of Cape Verde, the new museum building represents a comparatively expensive prestige project. This meant it was all the more important for government and architects alike to involve local artisans as much as possible. Practically all the components of the building, from the shell construction of reinforced concrete, to the wood-and-glass facades with their large, wood-framed sliding glass elements, to the steel construction of the surrounding balconies were produced by locals. This applies particularly to the sunshade of old barrel lids, which were sandblasted, relacquered and then screwed to a pivoting subconstruction of steel. For the architects, the sunshade gives a nod to a widespread regional practice: On Cape Verde, the materials from old metal barrels are used to make roofing, pots, knives and even concrete formwork.

© Sergio Pirrone
© Sergio Pirrone
Exhibition space, © Sergio Pirrone

Music translated into colour

The shading elements can be adjusted according to the position of the sun by means of a simple drawcord mechanism. The system works in sections: each section is one storey tall and as wide as the distance between two structural supports. The colour scheme of the facade confirms Schopenhauer’s quote that architecture is frozen music. The concept behind the colours came from several pieces by Cape Verdean composer and musician Vasco Martins, who translated each note into a coloured spot. Martins has since released the audio track of the facade as an album.


Architecture, interior design: Ramos Castellano arquitectos
Client: Ministerio da Cultura e industrias creativas, Governo de Cabo Verde
Location: Praça Nova, Mindelo 1027, São Vicente (CV)


Engineers: Ilidio Alexandre, Daniele Salvadorini, Francesco Bini, Denise Martins e Ricardo Martins, Luis Delgado
Specialist planners: Shrikar Bhave, Linda Lam, Ti Nene', Giulia La Ganga, Concetta Cavallaro

https://detail-cdn.s3.eu-central-1.amazonaws.com/media/catalog/product/0/1/01-kulturzentrum-kapverden-ramos-castellano-arquitectos.jpg?width=437&height=582&store=de_en&image-type=image https://detail-cdn.s3.eu-central-1.amazonaws.com/media/catalog/product/0/2/02-kulturzentrum-kapverden-ramos-castellano-arquitectos.jpg?width=437&height=582&store=de_en&image-type=image https://detail-cdn.s3.eu-central-1.amazonaws.com/media/catalog/product/0/3/03-kulturzentrum-kapverden-ramos-castellano-arquitectos.jpg?width=437&height=582&store=de_en&image-type=image https://detail-cdn.s3.eu-central-1.amazonaws.com/media/catalog/product/0/4/04-kulturzentrum-kapverden-ramos-castellano-arquitectos.jpg?width=437&height=582&store=de_en&image-type=image https://detail-cdn.s3.eu-central-1.amazonaws.com/media/catalog/product/1/3/13-kulturzentrum-kapverden-ramos-castellano-arquitectos.jpg?width=437&height=582&store=de_en&image-type=image https://detail-cdn.s3.eu-central-1.amazonaws.com/media/catalog/product/0/5/05-kulturzentrum-kapverden-ramos-castellano-arquitectos.jpg?width=437&height=582&store=de_en&image-type=image https://detail-cdn.s3.eu-central-1.amazonaws.com/media/catalog/product/0/6/06-kulturzentrum-kapverden-ramos-castellano-arquitectos.jpg?width=437&height=582&store=de_en&image-type=image https://detail-cdn.s3.eu-central-1.amazonaws.com/media/catalog/product/0/7/07-kulturzentrum-kapverden-ramos-castellano-arquitectos.jpg?width=437&height=582&store=de_en&image-type=image https://detail-cdn.s3.eu-central-1.amazonaws.com/media/catalog/product/0/8/08-kulturzentrum-kapverden-ramos-castellano-arquitectos.jpg?width=437&height=582&store=de_en&image-type=image https://detail-cdn.s3.eu-central-1.amazonaws.com/media/catalog/product/1/0/10-kulturzentrum-kapverden-ramos-castellano-arquitectos.jpg?width=437&height=582&store=de_en&image-type=image https://detail-cdn.s3.eu-central-1.amazonaws.com/media/catalog/product/1/1/11-kulturzentrum-kapverden-ramos-castellano-arquitectos.jpg?width=437&height=582&store=de_en&image-type=image https://detail-cdn.s3.eu-central-1.amazonaws.com/media/catalog/product/1/4/14-kulturzentrum-kapverden-ramos-castellano-arquitectos.jpg?width=437&height=582&store=de_en&image-type=image https://detail-cdn.s3.eu-central-1.amazonaws.com/media/catalog/product/1/5/15-kulturzentrum-kapverden-ramos-castellano-arquitectos.jpg?width=437&height=582&store=de_en&image-type=image https://detail-cdn.s3.eu-central-1.amazonaws.com/media/catalog/product/1/2/12-kulturzentrum-kapverden-ramos-castellano-arquitectos.jpg?width=437&height=582&store=de_en&image-type=image https://detail-cdn.s3.eu-central-1.amazonaws.com/media/catalog/product/1/7/17-kulturzentrum-kapverden-ramos-castellano-arquitectos.jpg?width=437&height=582&store=de_en&image-type=image https://detail-cdn.s3.eu-central-1.amazonaws.com/media/catalog/product/1/6/16-kulturzentrum-kapverden-ramos-castellano-arquitectos.jpg?width=437&height=582&store=de_en&image-type=image https://detail-cdn.s3.eu-central-1.amazonaws.com/media/catalog/product/1/8/18-kulturzentrum-kapverden-ramos-castellano-arquitectos.jpg?width=437&height=582&store=de_en&image-type=image https://detail-cdn.s3.eu-central-1.amazonaws.com/media/catalog/product/1/9/19-kulturzentrum-kapverden-ramos-castellano-arquitectos.jpg?width=437&height=582&store=de_en&image-type=image https://detail-cdn.s3.eu-central-1.amazonaws.com/media/catalog/product/2/0/20-kulturzentrum-kapverden-ramos-castellano-arquitectos.jpg?width=437&height=582&store=de_en&image-type=image https://detail-cdn.s3.eu-central-1.amazonaws.com/media/catalog/product/2/1/21-kulturzentrum-kapverden-ramos-castellano-arquitectos.jpg?width=437&height=582&store=de_en&image-type=image https://detail-cdn.s3.eu-central-1.amazonaws.com/media/catalog/product/2/2/22-kulturzentrum-kapverden-ramos-castellano-arquitectos.jpg?width=437&height=582&store=de_en&image-type=image https://detail-cdn.s3.eu-central-1.amazonaws.com/media/catalog/product/2/3/23-kulturzentrum-kapverden-ramos-castellano-arquitectos.jpg?width=437&height=582&store=de_en&image-type=image https://detail-cdn.s3.eu-central-1.amazonaws.com/media/catalog/product/2/4/24-kulturzentrum-kapverden-ramos-castellano-arquitectos.jpg?width=437&height=582&store=de_en&image-type=image https://detail-cdn.s3.eu-central-1.amazonaws.com/media/catalog/product/0/9/09-kulturzentrum-kapverden-ramos-castellano-arquitectos.jpg?width=437&height=582&store=de_en&image-type=image https://detail-cdn.s3.eu-central-1.amazonaws.com/media/catalog/product/2/5/25-kulturzentrum-kapverden-ramos-castellano-arquitectos-grafik-lageplan.jpg?width=437&height=582&store=de_en&image-type=image https://detail-cdn.s3.eu-central-1.amazonaws.com/media/catalog/product/2/6/26-kulturzentrum-kapverden-ramos-castellano-arquitectos-grafik-grundriss-ug.jpg?width=437&height=582&store=de_en&image-type=image https://detail-cdn.s3.eu-central-1.amazonaws.com/media/catalog/product/2/7/27-kulturzentrum-kapverden-ramos-castellano-arquitectos-grafik-grundriss-eg.jpg?width=437&height=582&store=de_en&image-type=image https://detail-cdn.s3.eu-central-1.amazonaws.com/media/catalog/product/2/8/28-kulturzentrum-kapverden-ramos-castellano-arquitectos-grafik-grundriss-og-2.jpg?width=437&height=582&store=de_en&image-type=image https://detail-cdn.s3.eu-central-1.amazonaws.com/media/catalog/product/2/9/29-kulturzentrum-kapverden-ramos-castellano-arquitectos-grafik-grundriss-og-3.jpg?width=437&height=582&store=de_en&image-type=image https://detail-cdn.s3.eu-central-1.amazonaws.com/media/catalog/product/3/0/30-kulturzentrum-kapverden-ramos-castellano-arquitectos-grafik-grundriss-og-4.jpg?width=437&height=582&store=de_en&image-type=image https://detail-cdn.s3.eu-central-1.amazonaws.com/media/catalog/product/3/1/31-kulturzentrum-kapverden-ramos-castellano-arquitectos-grafik-schnitt.jpg?width=437&height=582&store=de_en&image-type=image https://detail-cdn.s3.eu-central-1.amazonaws.com/media/catalog/product/3/2/32-kulturzentrum-kapverden-ramos-castellano-arquitectos-grafik-schnitt-details.jpg?width=437&height=582&store=de_en&image-type=image https://detail-cdn.s3.eu-central-1.amazonaws.com/media/catalog/product/3/3/33-kulturzentrum-kapverden-ramos-castellano-arquitectos-grafik-ventilation-fassade.jpg?width=437&height=582&store=de_en&image-type=image https://detail-cdn.s3.eu-central-1.amazonaws.com/media/catalog/product/3/4/34-kulturzentrum-kapverden-ramos-castellano-arquitectos-grafik-suedfassade-farbschema.jpg?width=437&height=582&store=de_en&image-type=image https://detail-cdn.s3.eu-central-1.amazonaws.com/media/catalog/product/3/5/35-kulturzentrum-kapverden-ramos-castellano-arquitectos-grafik-suedfassade-liste-farben-noten.jpg?width=437&height=582&store=de_en&image-type=image https://detail-cdn.s3.eu-central-1.amazonaws.com/media/catalog/product/3/6/36-kulturzentrum-kapverden-ramos-castellano-arquitectos-grafik-skizze.jpg?width=437&height=582&store=de_en&image-type=image https://detail-cdn.s3.eu-central-1.amazonaws.com/media/catalog/product/3/7/37-kulturzentrum-kapverden-ramos-castellano-arquitectos-grafik-details.jpg?width=437&height=582&store=de_en&image-type=image https://detail-cdn.s3.eu-central-1.amazonaws.com/media/catalog/product/3/8/38-kulturzentrum-kapverden-ramos-castellano-arquitectos-grafik-details.jpg?width=437&height=582&store=de_en&image-type=image https://detail-cdn.s3.eu-central-1.amazonaws.com/media/catalog/product/3/9/39-kulturzentrum-kapverden-ramos-castellano-arquitectos-grafik-details.jpg?width=437&height=582&store=de_en&image-type=image

These articles might also interest you

Copyright © 2024 DETAIL. All rights reserved.