Prestigious new-build
Obwaldner Kantonalbank in Sarnen by Seiler Linhart Architects
© Rasmus Norlander
In the business park on the outskirts of town, Seiler Linhart Architects have erected a decidedly urban-looking timber building. The edifice will accommodate the new headquarters of the bank of the Swiss canton of Obwalden in future. The five-storey new-build currently stands at a very isolated spot, but this will change when a mixed-use new quarter comes about all around over the next few years.


© Rasmus Norlander
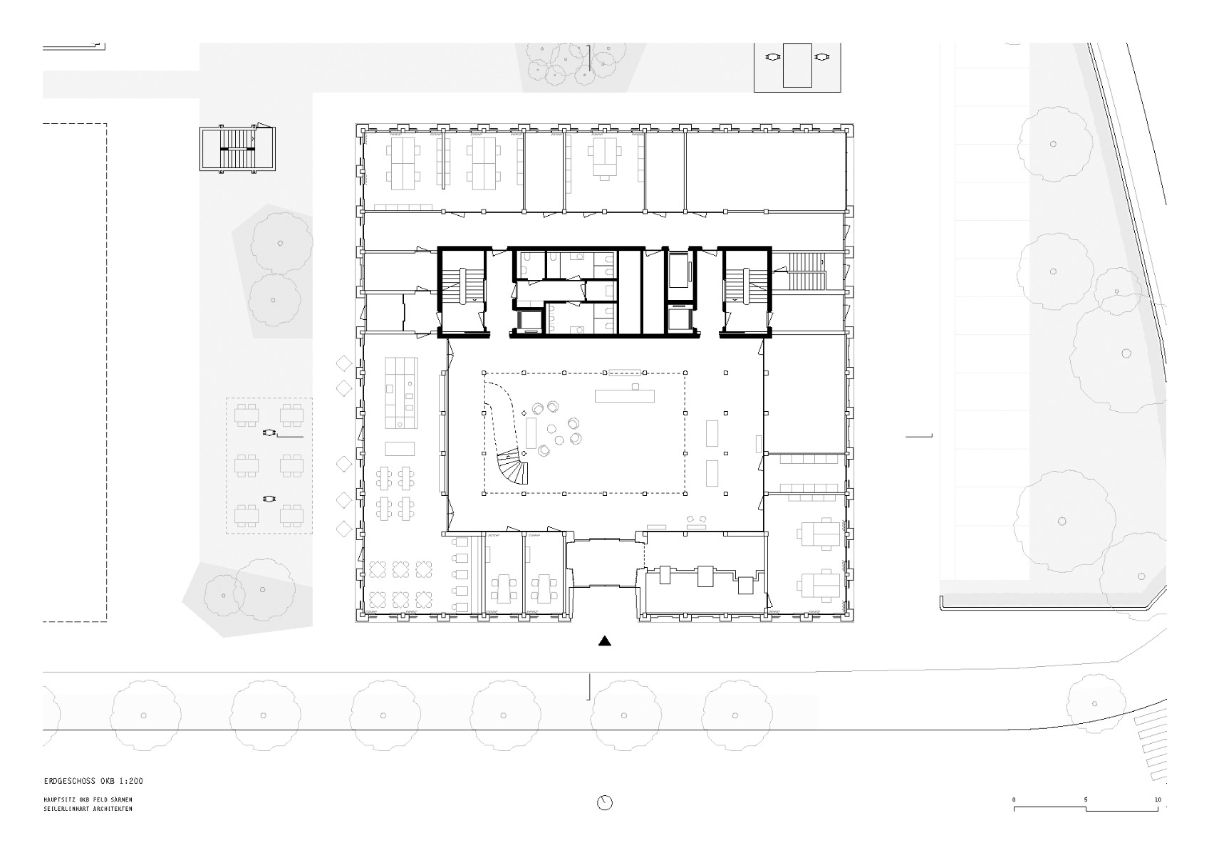
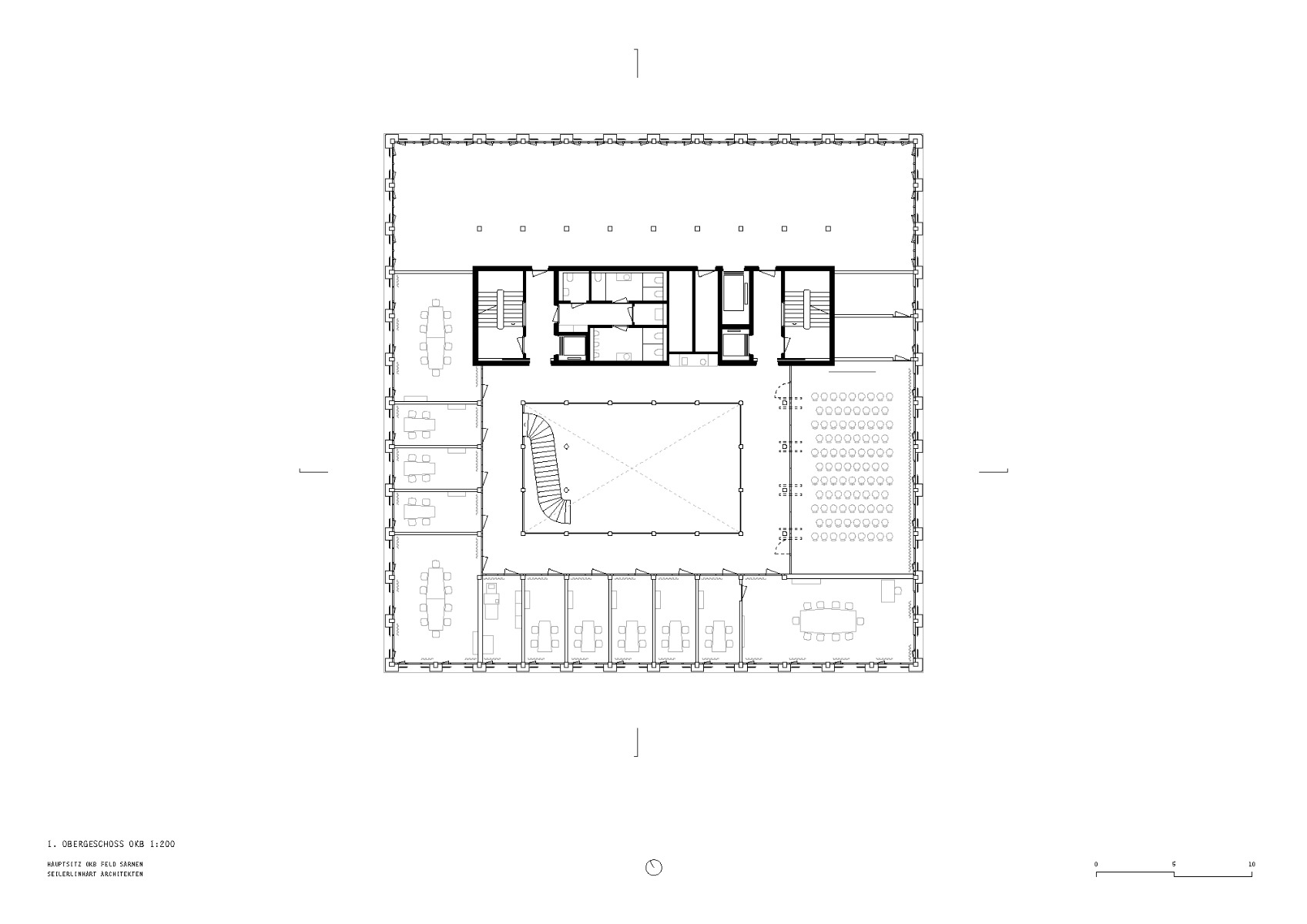
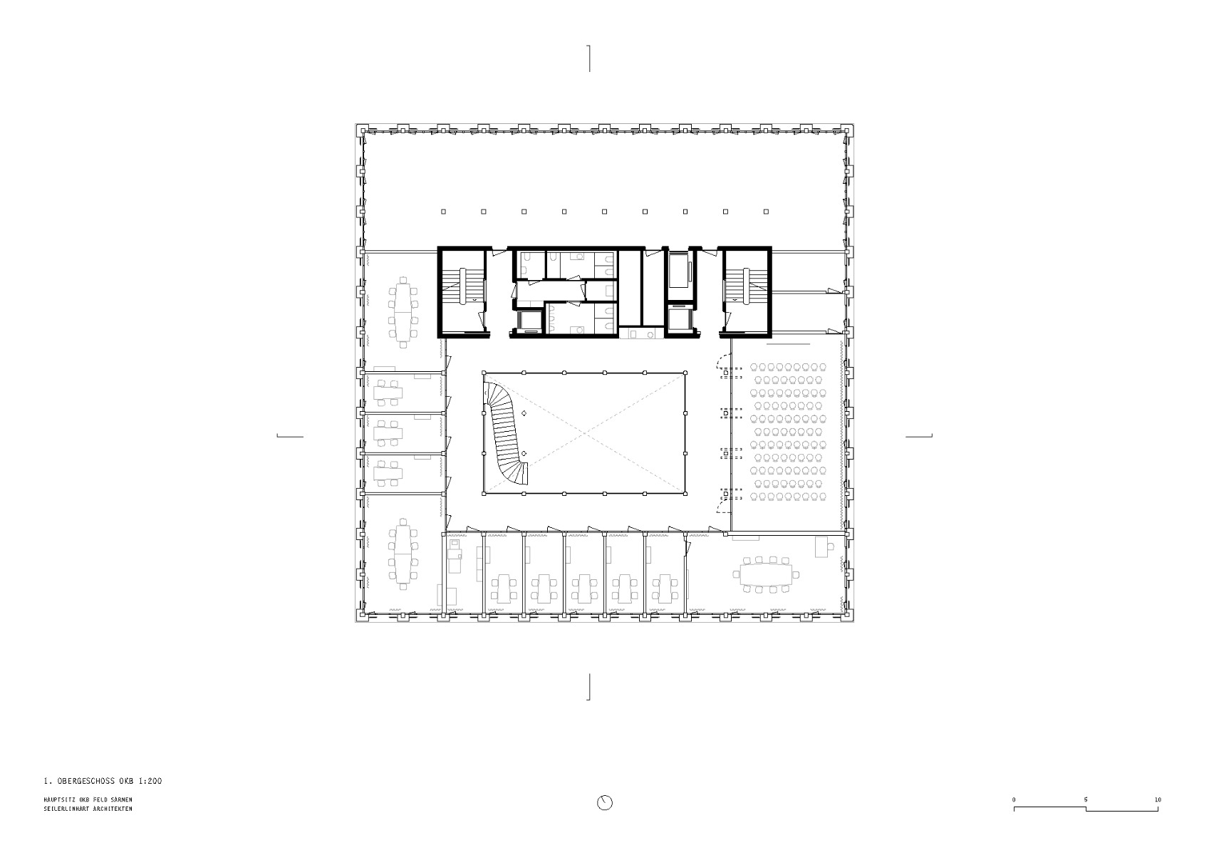
Timber skeleton structure with a concrete core
With the exception of its stiffening concrete core, the bank building solely has a skeleton structure incorporating columns and cross-beams in spruce and ash. In the square floor, both the two-storey entrance hall and the three-storey inner court above it are positioned slightly off-centre. The entrance hall plays a pivotal role in the two lower storeys, which are open to the public, while the green inner court provides natural light and fresh air to the offices higher up in the building.
The division of the room programme into two is clearly legible on the tightly gridded facades: the windows on the two lower storeys are shaded by sliding shutters in perforated sheet aluminium while those in a compartmentalised configuration further up have been provided with blinds.


© Rasmus Norlander
All windows reach from floor to ceiling, the only exception concerning the ground floor, where the timber building sits on a base clad in precast concrete units.


© Rasmus Norlander


© Rasmus Norlander
Slight ornamentation
In the interior, the timber skeleton structure has been left exposed, while partition walls have simply been erected in the lightweight construction method to facilitate adaption of interior layout. Extensive glazing opens up the office rooms to the central circulation area surrounding the interior courtyard; technical installations are integrated between the ceiling beams.


© Rasmus Norlander
An eye-catcher in the customer service hall concerns the 120-m² light ceiling featuring grey-painted MDF wafers organised into a kind of anti-glare grid between the ceiling cross-beams. On the exterior, an ornamental touch is added in the form of a faint pattern milled into the wooden cladding of the window lintels, where those so inclined are able to make out the stylised letters O, K und B – standing for Obwaldner Kantonalbank.
Architecture: Seiler Linhart Architekten
Client: Obwaldner Kantonalbank
Location: Im Feld 2, 6060 Sarnen (CH)
Structural engineering: Pirmin Jung Ingenieure für Holzbau, CES Bauingenieur
Landscape architecture: freiraumarchitektur
Building services engineering: JOP Josef Ottiger + Partner
Site management: Eggimann Architekten
Client consulting, budgeting: Büro für Bauökonomie
Electrical engineering: Scherler
Lighting design: LG Lightguide
Contractor: ARGE Holzbau OKB Sarnen, Holzbautechnik Burch, Bürgi Alpnach




























