Pixellated: Company Headquarters in Brixen by Monovolume
Foto: Paolo Riolzi / Rolf Nachbar © Durst Group
The company Durst is devoted to the manufacture of high-performance digital printing systems. Since the beginnings of the family enterprise, which operates internationally, the headquarters have been represented by the existing building in Brixen, which was designed by Othmar Bart. Bart also created the original − but never built − design for a floating wing with a tower. The architects from Monovolume have taken up this idea and transformed Bart’s vision into a new, imposing HQ building.
The new structure, which features an eye-catching parametric design, now stands in front of the old building and draws all the attention. It comprises a glazed plinth and an organic volume that rises at one end in the form of a tower. The white main façade of the building is veiled in powder-coated aluminum sheeting with many small apertures. LEDs in the embrasures make the pixel-like windows shine in various colours by night and set the headquarters building at centre stage. An enormous, curved glass roof completes the new structure. It consists of 250 different panes of insulated glass.
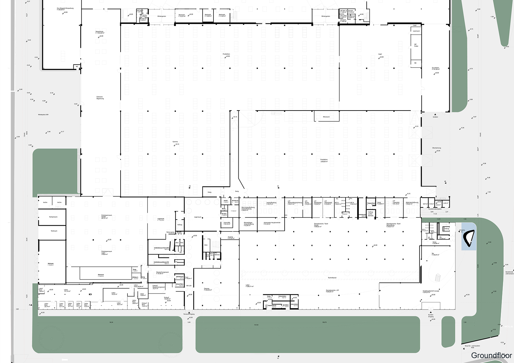
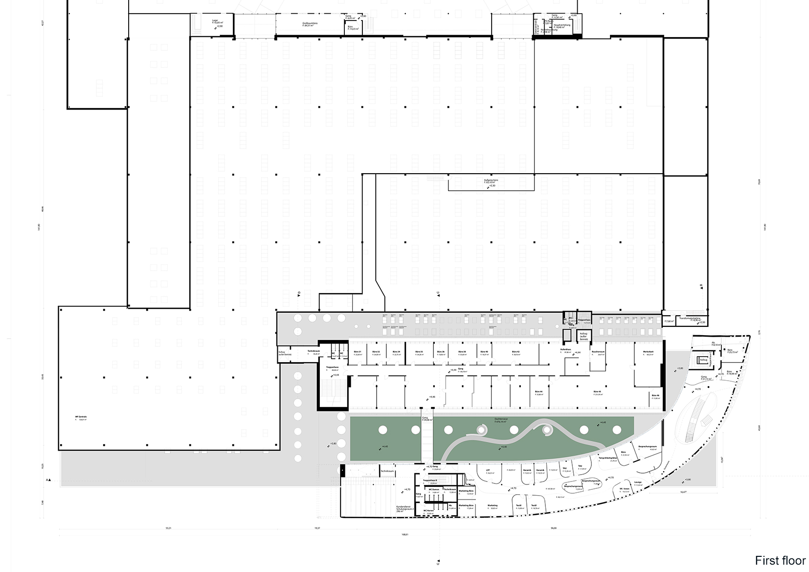
The open ground floor is home to the demo areas and laboratories. The lobby joins with the bar and WCs at the customer entrance at the south end. A stairway leads up to the six-storey tower, whose top levels are home to management and a conference room. The first and second upper storeys are divided into customer service, offices and meeting rooms. Private niches, work areas glazed from floor to ceiling and colourful details characterize the interior of the new headquarters. A long, planted inner courtyard connects the two structures and offers a sheltered place for a break in the fresh air.
























