Relaxation and safety
Spa in the Allgäu by Beer Bembé Dellinger
© Oliver Jaist
Lorem Ipsum: Zwischenüberschrift
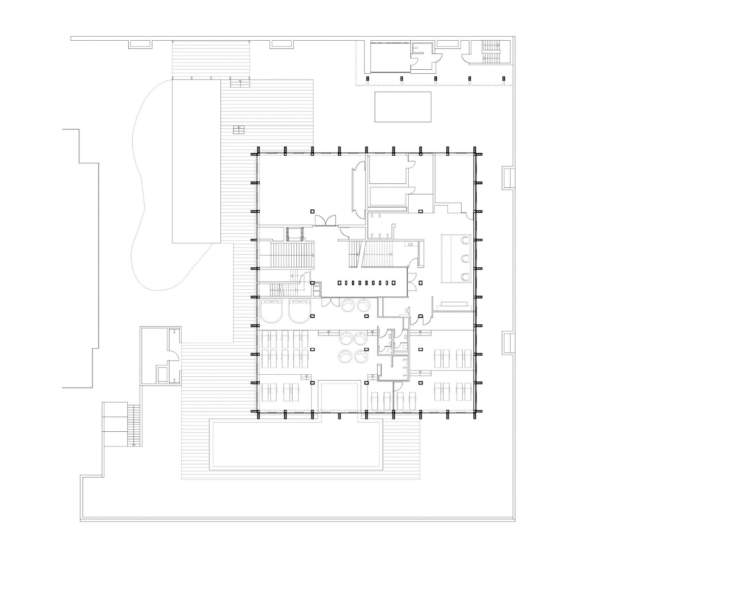
The planners from Beer Bembé Dellinger Architekten und Stadtplaner have conceived a new spa area for the Hubertus Alpin Lodge & Spa, a leading wellness hotel. After the existing spa was severely damaged in the Balderschwang avalanche of 2019, the architects faced the task of fulfilling the hotel guests’ high expectations with a new spa.


© Oliver Jaist
Lorem Ipsum: Zwischenüberschrift
They have met this challenge with a new building that fits in with the hotel complex yet is clearly discernible as a standalone structure. The exterior timber framing takes up the materiality of the existing hotel without relying on imitation.
Lorem Ipsum: Zwischenüberschrift
The new spa joins the main building via a passageway. The two-storey wooden construction features a recessed attic that creates spacious outdoor areas. These have been designed as a Zen garden with various themes; they also offer a diversity of views over the surrounding mountain landscape.


© Stefan Schütz
Lorem Ipsum: Zwischenüberschrift
The facade is characterized by the surrounding wooden supports that encompass the balcony and function as a constructive shelter from the weather. Wood, a material typical for the region, combines ecological benefits with a warm ambience. It also makes a seamless addition to the overall hotel complex.


© Oliver Jaist


© Oliver Jaist
Lorem Ipsum: Zwischenüberschrift
An avalanche-protection wall has been erected north of the hotel. With terracing, this massive concrete wall becomes a self-evident component of the outdoor areas. The meeting point of mountain and architecture can be experienced by hotel visitors in the ground sauna located inside the hollow space of the avalanche-protection wall.
Architecture: Beer Bembé Dellinger Architekten und Stadtplaner
Client: Traubel Immobilien OHG
Location: Balderschwang (DE)
Structural engineering: Bergmeister Ingenieure
Buildings services engineering, electrical engineering: Ingenieurbüro Liepert
Building physics: Bernhard Weithas
Site management: Peter Winder















