Macrons ökologisches Schaustück
Kindergarten in Paris von Atelier Régis Roudil
Kindertagesstätte des französischen Präsidialamts, © 11h45 - Florent Michel
Die neue Kita des französischen Präsidialamts im Hof des Palais de l’Alma von Atelier Régis Roudil setzt Maßstäbe beim Bauen mit Naturmaterialien. Schon die Adresse des Neubaus lässt aufhorchen: 11 Quai Branly – unmittelbar neben Jean Nouvels Musée du Quai Branly in der Nähe des Eiffelturms.


Außenbereich der Kita, © 11h45 - Florent Michel
Vom Museum und von der Straße im Süden trennen den Kindergarten allerdings die hohen Grundstücksmauern des Palais de l’Alma, in dem heute die Angestellten der französischen Präsidialverwaltung arbeiten. Die Behörde war auch Auftraggeberin des Neubaus und wollte damit ökologische Maßstäbe setzen.
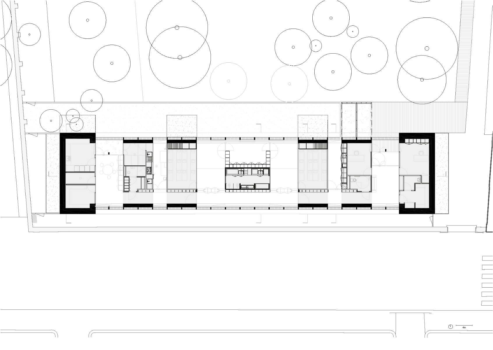
Atelier Régis Roudil platzierten einen flachen, langgestreckten Gebäuderiegel an die Grundstücksmauer und schafften es so, den Garten des Behördensitzes freizuhalten. Zwischen Kita und Mauer bleibt gerade genug Platz für die Sicherheitsleute, die hier regelmäßig ihre Patrouillengänge absolvieren. Von der Straße ist der Neubau nicht einsehbar – wohl aber dessen Dach von den Obergeschossen der Nachbargebäude aus.


Innenraum der Kita des französischen Präsidialamts, © 11h45 - Florent Michel
Es ist üppig begrünt; eine konkav geschwungene Dachlaterne lässt Tageslicht und frische Luft in die zentralen Räume der Kita. Dort haben die beiden Kindergartengruppen ihre Gruppen- und Ruheräume. An den beiden Gebäudeenden sind die Büros der Kita-Leitung sowie Küche, Speiseraum und Sanitärräume untergebracht – und zwar so, dass sich trotz der vielen unterschiedlichen Nutzungen ein perfekt symmetrischer Grundriss ergibt.


Holz charakterisiert den Innenraum. © 11h45 - Florent Michel


Der Fußboden besteht aus recyceltem Kork. © 11h45 - Florent Michel
Hybrid aus Holzskelett- und Stampflehmbau
Interessant machen den Neubau vor allem die verwendeten Baumaterialien: An den beiden Gebäudeenden platzierten die Architekten weitgehend geschlossene Stampflehmkuben. Dazwischen öffnet sich eine mit viel Glas ausgefachte Holzskelettkonstruktion zu beiden Längsseiten. Rund 82 % der gesamten Baumasse – einschließlich Fensterrahmen und Innenausbau – bestehen nach Berechnungen der Architekten aus Holz, das größtenteils über die Seine herangeschifft wurde.


Blick in einen Gruppenraum der Kindertagesstätte. © 11h45 - Florent Michel
Die Lehmwände bestehen aus 12 cm hohen, beim Stampfen auf 8 cm verdichteten Schichten. Nach jeder sechsten Schicht – und an den Gebäudeecken nach jeder Schicht – wurde eine horizontale Kalkschicht zur Stabilisierung der Wände eingestampft. Auch im Gebäudeinneren setzt sich die ökologische Materialpalette fort, unter anderem in einem gegossenen Fußboden aus recyceltem Kork.
Mehr dazu in Detail 11.2023 und in unserer Datenbank Detail Inspiration.
Architektur: Atelier Régis Roudil Architectes
Bauherr: Présidence de la République
Standort: 11 quai Branly, 75007 Paris
Tragwerksplanung: Vessière
TGA-Planung: B52
Kostenkalkulation: Eco+
Akustik: Viasonora



















