Camouflage in Schwarzweiß: Reihenhaus in London von The DHaus Company
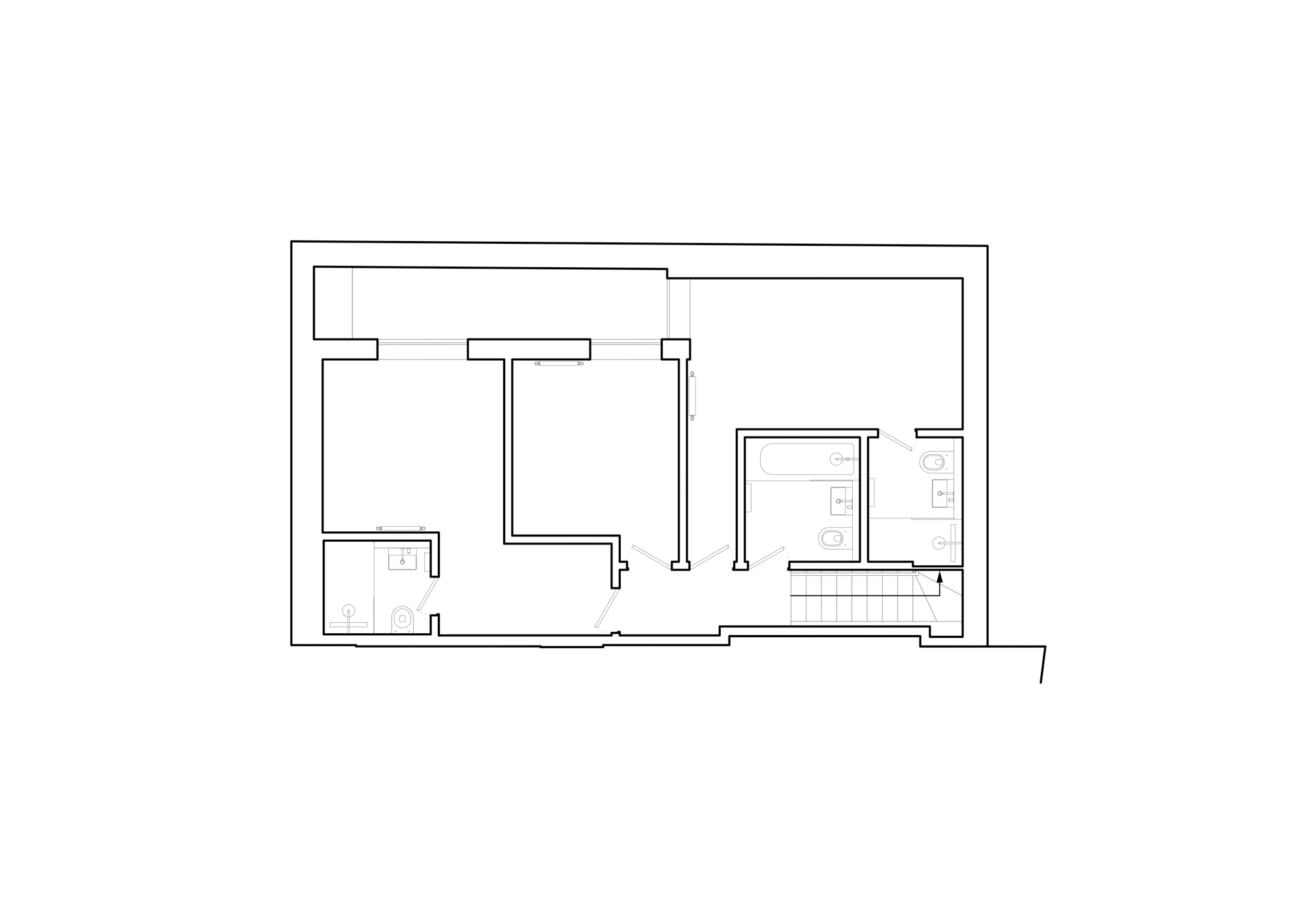
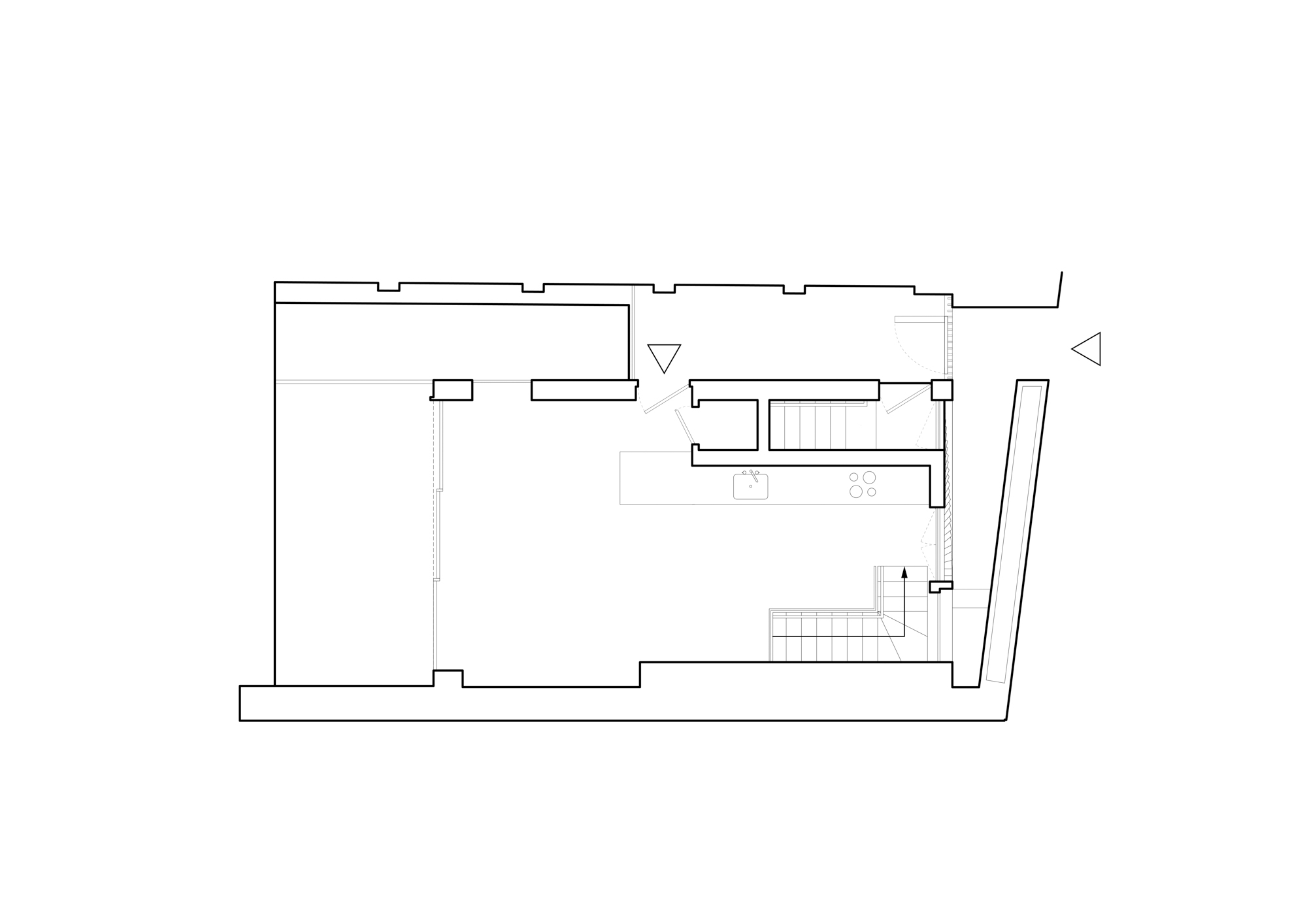
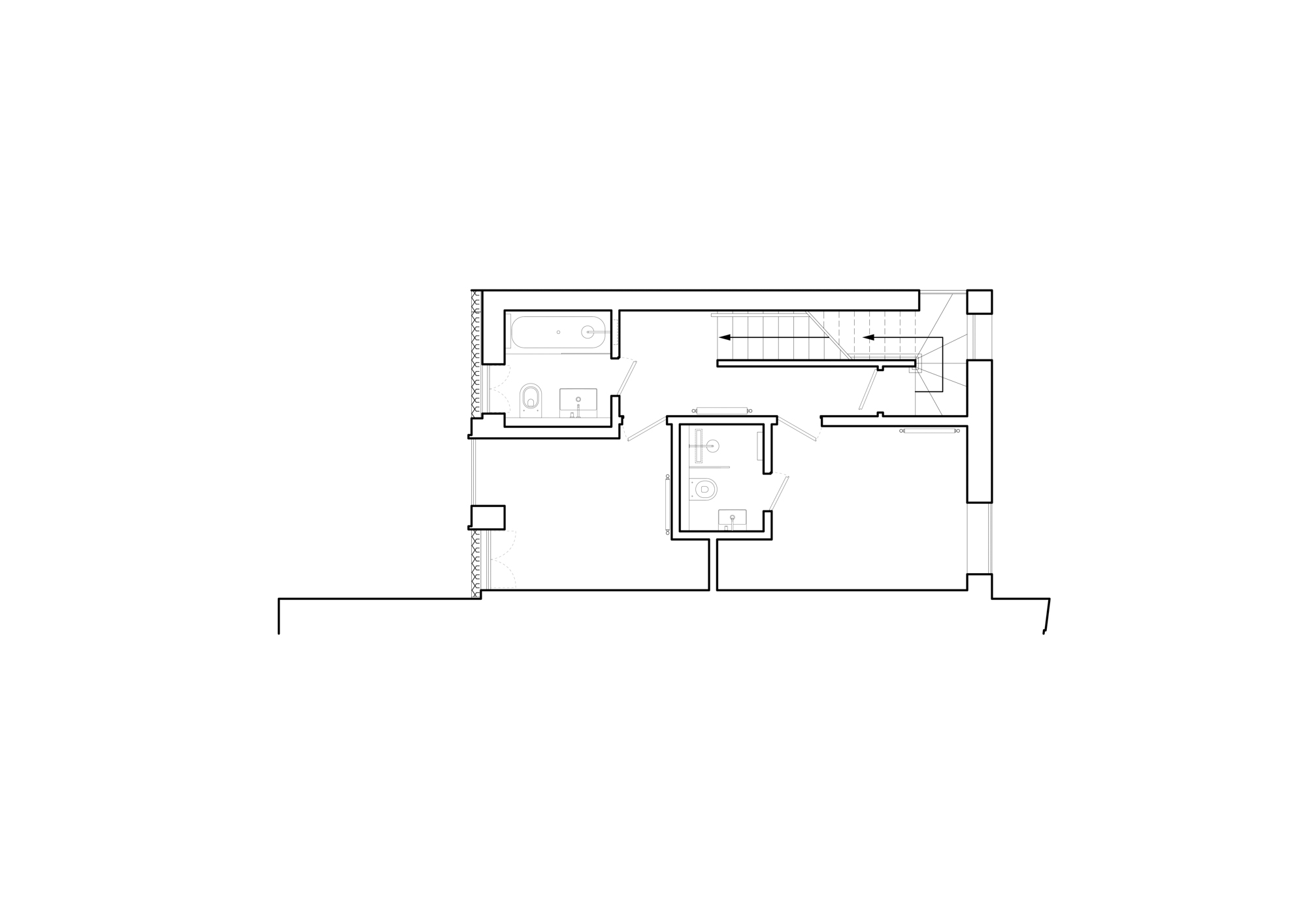
Zwei wesentliche Inspirationsquellen nennen die Architekten von The DHaus Company für das Zweifamilienhaus, das sie im Norden Londons entworfen haben: Zum einen die ehemaligen, heute längst zu begehrten Wohnhäusern umgebauten Pferdeställe, die in den Stadtteilen Hampstead und Highgate früher häufig anzutreffen waren. Und zweitens die Tradition der japanischen Hofhäuser. Vier handtuchschmale Höfe umgeben das Haus, in dem übereinander zwei Maisonettewohnungen untergebracht sind. Einer davon rückt den Neubau minimal aus der Flucht der Nachbargebäude an der Straße zurück. Der zweite, hinter einem Gittertor an der Ostseite des Hauses gelegen, dient als Verteilerraum zu den beiden Wohnungseingängen. Die beiden übrigen Innenhöfe versorgen das Erd- und das Untergeschoss vom Blockinnenhof her mit Tageslicht.
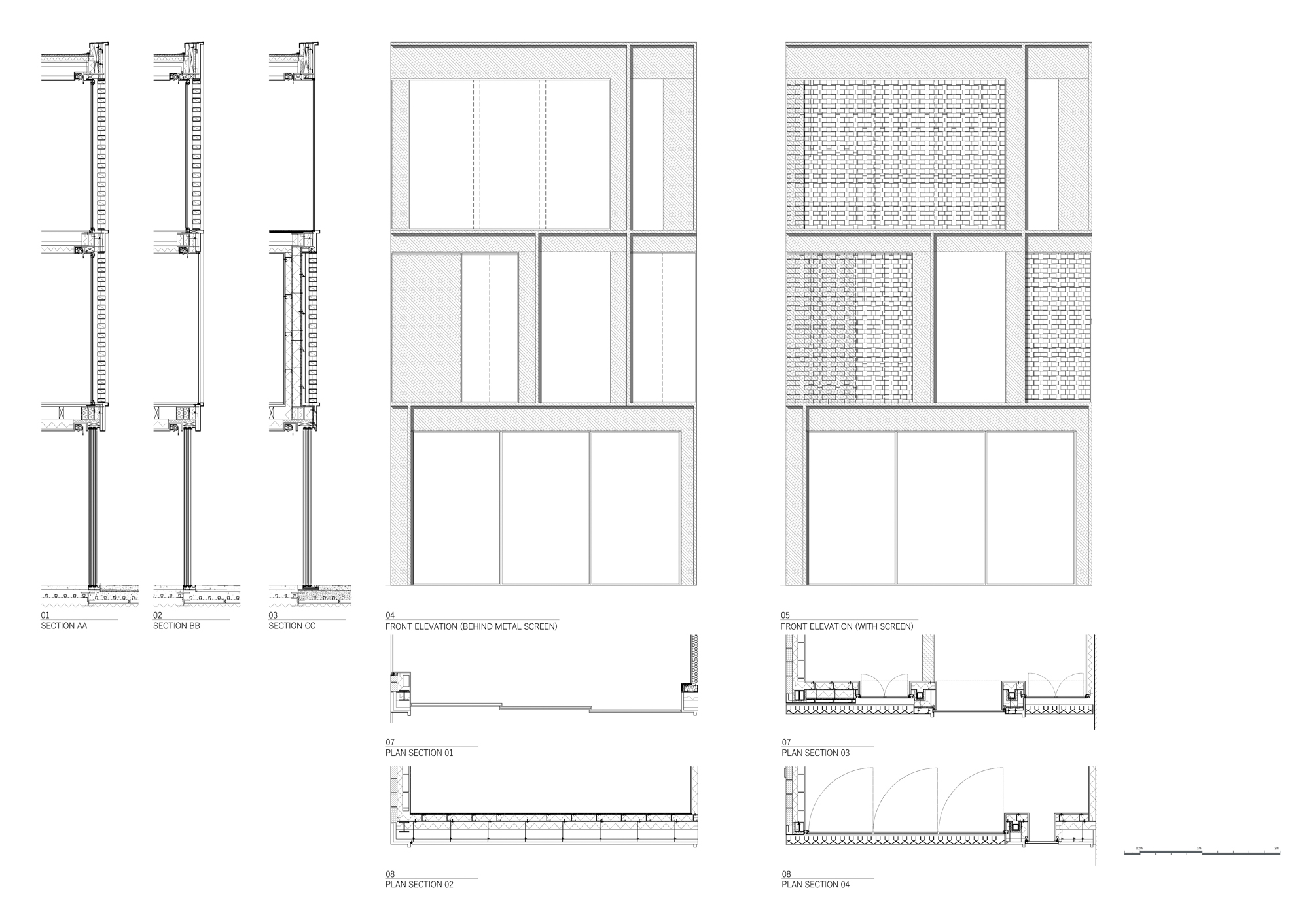
In der Fassadengestaltung greifen die Architekten Elemente der Nachbargebäude auf. In der mattschwarzen Fassadenfront etwa setzt sich nahtlos das Erdgeschoss des benachbarten „The Bull and Last“-Pubs fort, das The DHaus Company vor einigen Jahren ebenfalls aufwändig saniert haben. Die schmalen, hochrechteckigen Fenster und auskragenden Gesimse sind ebenfalls den historischen Nachbarn entlehnt. Um die großen Glasflächen im Erdgeschoss nicht zu sehr ins Auge fallen zu lassen, verdeckten die Architekten sie mit einem Brise-soleil aus kleinteilig gekantetem Metallblech, dessen Struktur an Ziegelmauerwerk erinnert.
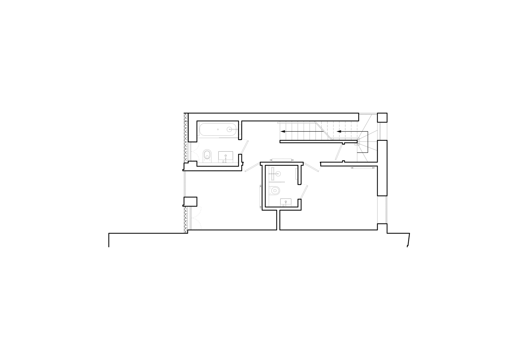
Das gleiche Prinzip, hier jedoch ganz in Weiß und auf insgesamt drei Etagen, praktizierten die Architekten auch auf der Gebäuderückseite im Norden. Alle drei Geschosse sind hier großflächig verglast; sichtbar wird dies jedoch nur im Erdgeschoss. Lediglich großformatige Glasschiebeelemente bilden hier eine Zäsur zwischen Wohnraum und dem ebenerdigen Hof. Durch eine minimale Absturzsicherung aus Sicherheitsglas fällt der Blick in den vierten, abgesenkten Innenhof, der die drei Schlafzimmer im Untergeschoss belichtet. In der oberen Wohnung ist die Raumabfolge umgekehrt: Die beiden Schlafzimmer liegen im 1. Obergeschoss. Auf der obersten, dank großer verglaster Dachflächen tageslichtdurchfluteten Ebene befindet sich ein Wohnraum mit offener Küche.































