Aufgelockerte Fassade mit Corten-Stahl: Troja-Museum bei Çanakkale
Foto: Emre Dorter
Die Ausgrabungsstätte von Troja im Nordwesten der Türkei wurde 1998 zum Unesco-Weltkulturerbe ernannt. Ob die Stadt nun überregional von Bedeutung war, oder diese Größe lediglich einer Fantasie Homers entsprang, spaltet die Wissenschaftler. Trotzdem lockt das Gelände mit Funden von vor 4000 Jahren zahlreiche Besucher an. Nun können im Troja-Museum des Istanbuler Büros Yalın Architectural Design archäologische Funde ausgestellt und die reiche Geschichte in einem chronologischen Erzählstrang dargestellt werden.
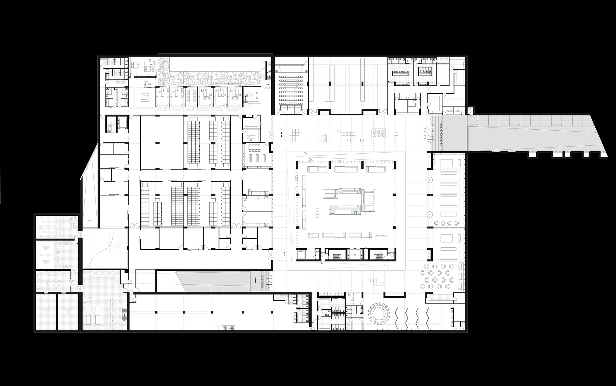
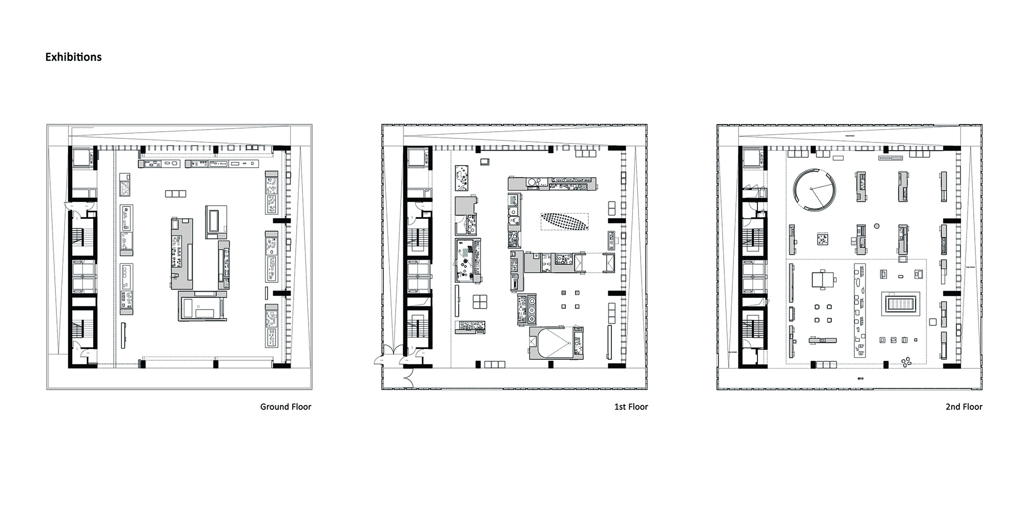
Konzeptionell umgesetzt wurde diese Erzählung in Form einer Rampe, die durch das Gebäude führt. Zunächst leitet sie Besucher wie Angestellte unter die Erde. Dort befinden sich die dienenden Funktionen sowie das Foyer des Museums. Die Ausstellungsräume im monolithischen Kubus prägen zwar das Erscheinungsbild von außen, machen aber mit 2000 m² nur einen kleinen Teil der insgesamt 11000 m² Gesamtfläche aus. Man kann im Untergeschoss bereits um den Sockel des Baukörpers herumlaufen, der durch die gläserne Decke emporwächst. Er ist mit vertikalen Corten-Stahlbändern verkleidet, die sich mit Streifen aus Glas abwechseln. Unterbrochen wir das Muster von wenigen horizontalen Fensterbändern, die zusätzlich den Blick auf die angrenzende Ausgrabungsstätte freigeben.
Auch von innen ist diese gestreifte Fassade erfahrbar. Auf dem Weg durch die Ausstellung sollen sich Besucher wie in einem „ausgegrabenen Artefakt“ fühlen, so Yalın Mimarlık. Die Entwicklung von Rost auf der Hülle stellt dabei eine Übersetzung der Zeitspanne, der Verbindung von Vergangenheit und Gegenwart in der Geschichte Trojas, dar. Der Weg durch den Kubus führt über die Rampe nach oben, durch die Ausstellung die von den frühen Kulturen der Troas und Troja in der Bronzezeit sowie vom heutigen Stand der Ausgrabungen berichtet. Oben angelangt lässt sich von der Dachterrasse das Gebiet Trojas und weiterer in der Ilias beschriebenen Landschaften bestaunen.




















