Back to school: Amos Grundschule von Soa Architekten
Foto: BoysPlayNice
Die Architekten passen den Bildungsbau in seinem Maßstab an die kleinteilige Bebauungsstruktur der Gemeinde südlich von Prag an. Anstatt eines monumentalen Gebäudes entwerfen sie vier doppelgeschossige Baukörper mit Satteldächern, die sich nach außen hin in schlichtem Weiß mit Lochfassade präsentieren. Die einzelnen Volumen sind L-förmig zueinander positioniert und werden zentral von einem großen Trakt mit Flachdach zusammengefasst. Dessen Ansichten sind ringsum bekleidet mit vertikalen, schmalen Fichtenholzlatten. Die Hölzer legen sich auch vor die Fenster und bieten je nach Funktion im Inneren variable Ein- und Ausblicke. Aufgrund der Neigung des Geländes sind die Bauten unterschiedlich tief in den Boden gegraben. Auch die Außenbereiche werden durch die leichte Hanglage gegliedert und zoniert. Sie dienen als Schulhof, Sportplatz und Erweiterung der Schulräume.
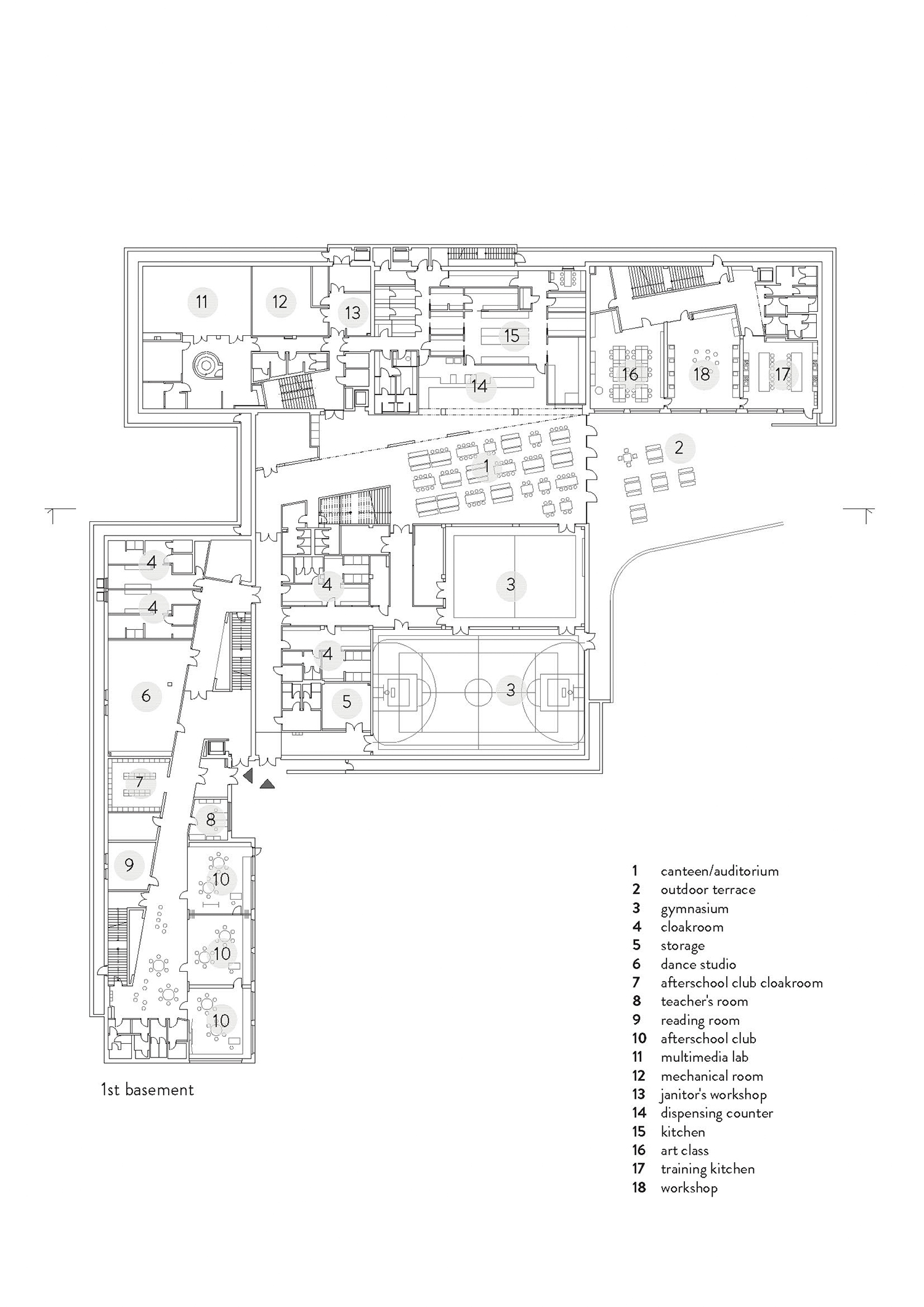
Das Herzstück der Grundschule bildet die Kantine. Sie befindet sich in dem flachen Bau, der die einzelnen Gebäude des Campus verbindet und stellt nicht nur den zentralen Treffpunkt, sondern auch den Haupteingang dar. Der Bereich mit dem Foyer ist doppelgeschossig ausgeführt und erscheint luftig und hell. Direkt im Anschluss befindet sich hier eine kleine Sporthalle. Dank einer ausgeklügelten Grundrisslösung und verschiebbarer Wände lassen sich die beiden Zonen in ein großes, zusammenhängendes Auditorium verwandeln.
Sämtliche Räume des Schulbaus beruhen auf einem offenen Gestaltungskonzept. Dazu gehören dynamische Lernbereiche, flexible Trennwände und gemeinschaftliche Sitzstufen. Die einzelnen Trakte organisieren sich anhand von Clustern, die jeweils aus zwei bis drei Klassen bestehen. Jedes Cluster besitzt eine eigene farbliche Identität, die den Kindern die Orientierung erleichtern soll. Holz dominiert neben den bunten Akzenten die Innenräume und sorgt in Form von Einbauten, Oberflächenverkleidungen und Fensterbänken für Wärme und Gemütlichkeit.
Die Konstruktion des Ensembles beruht auf Stahlbeton und Holz. Außen- und Innenwände sind in Kalksandstein-Ziegeln gefertigt. Mittels Nachtkühlung, Wärmepumpen und Regenwassernutzung machen Soa Architekten den Bildungsbau zu einem der wenigen öffentlichen Gebäude mit Passivhausstandard in Tschechien und die Grundschule damit zum Vorzeigeprojekt, das nicht nur durch sein modernes und funktionales Design sondern auch durch Nachhaltigkeit überzeugt.
Weitere Informationen:
Entwurf: Ondřej Píhrt, Štefan Šulek, Ondřej Laciga
Mitarbeiter: Irena Vojtová, Pavel Směták, Tereza Březovská
Kosten: 16.600.000 €
Statik: Projekt Centrum NOVA
Thermische Planung: Porsenna
Grafikdesign: Barbora Zachovalová
Gastroplanung: InGastro
Generalausrüster: PKS stavby
Innenausstattung: DVD Jaroměřice nad Rokytnou




















