// Check if the article Layout ?>
Blechschachtel am Stadtrand: Klinikverwaltung in Poitiers
Foto: Stefan Tuchila
Das Universitätsklinikum im westfranzösischen Poitiers liegt auf einem weitläufigen Campus am südöstlichen Stadtrand, dessen Bebauung größtenteils in den 50er- bis 80er-Jahren entstanden ist. Wie so oft, wenn etwas über die Jahrzehnte wächst, saß dabei nicht immer zusammen, was zusammen gehört - zum Beispiel die Klinikverwaltung, die zuletzt über zahlreiche Gebäude auf dem Campus verstreut war.
Um hier mehr Effizienz und bessere Synergien zu schaffen, schrieb die Klinikleitung 2011 einen Wettbewerb für einen Neubau aus, den die Pariser Architekten Brenac & Gonzalez gewannen. Das 11.000 Quadratmeter große Gebäude liegt mitten auf dem Campus und hat doch nach Südosten freien Blick auf ein kleines Waldstück. Es beherbergt vorwiegend Büro- und Konferenzräume für 350 Mitarbeiter. Hinzu kommen im Erdgeschoss eine Cafeteria samt Küche sowie das Klinikarchiv. Auch die Technikräume liegen zu ebener Erde, weil der Neubau nicht unterkellert ist.
Die Architekten verteilten das Raumprogramm auf zwei dreigeschossige, im Grundriss E-förmige Baukörper, die ein zentrales, gebäudehohes Atrium – die »Agora« - flankieren. Der Haupteingang liegt im Nordwesten und ist damit dem zentralen Gebäudekomplex der Uniklinik zugewandt. Auf der gegenüberliegenden Seite mündet das Atrium in die Freiterrasse der Cafeteria.
Im Maßstab orientieren sich die Baukörper an der bestehenden Campusbebauung: großformatige Volumina, die sich locker auf dem parkartigen Gelände verteilen. In der Detailbehandlung ihres Neubaus spielen Brenac & Gonzalez ein Wechselspiel aus Öffnung und Abschottung. Da sind zum einen die beiden Büroriegel: blechverkleidete, an den Ecken gerundete Röhren, die wie riesige Ufos nur temporär auf dem Klinikareal gelandet zu sein scheinen. Selbst die Erschließungswege, die auf das Gebäude zulaufen, wirken wie aus großen Betonplatten gefräst und auf den Grünflächen abgelegt. Auch die anthrazitfarbenen Wandscheiben, die die aufgeständerten Gebäudeteile stützen, setzen das Formgebungsprinzip der gerundeten Ecken fort.
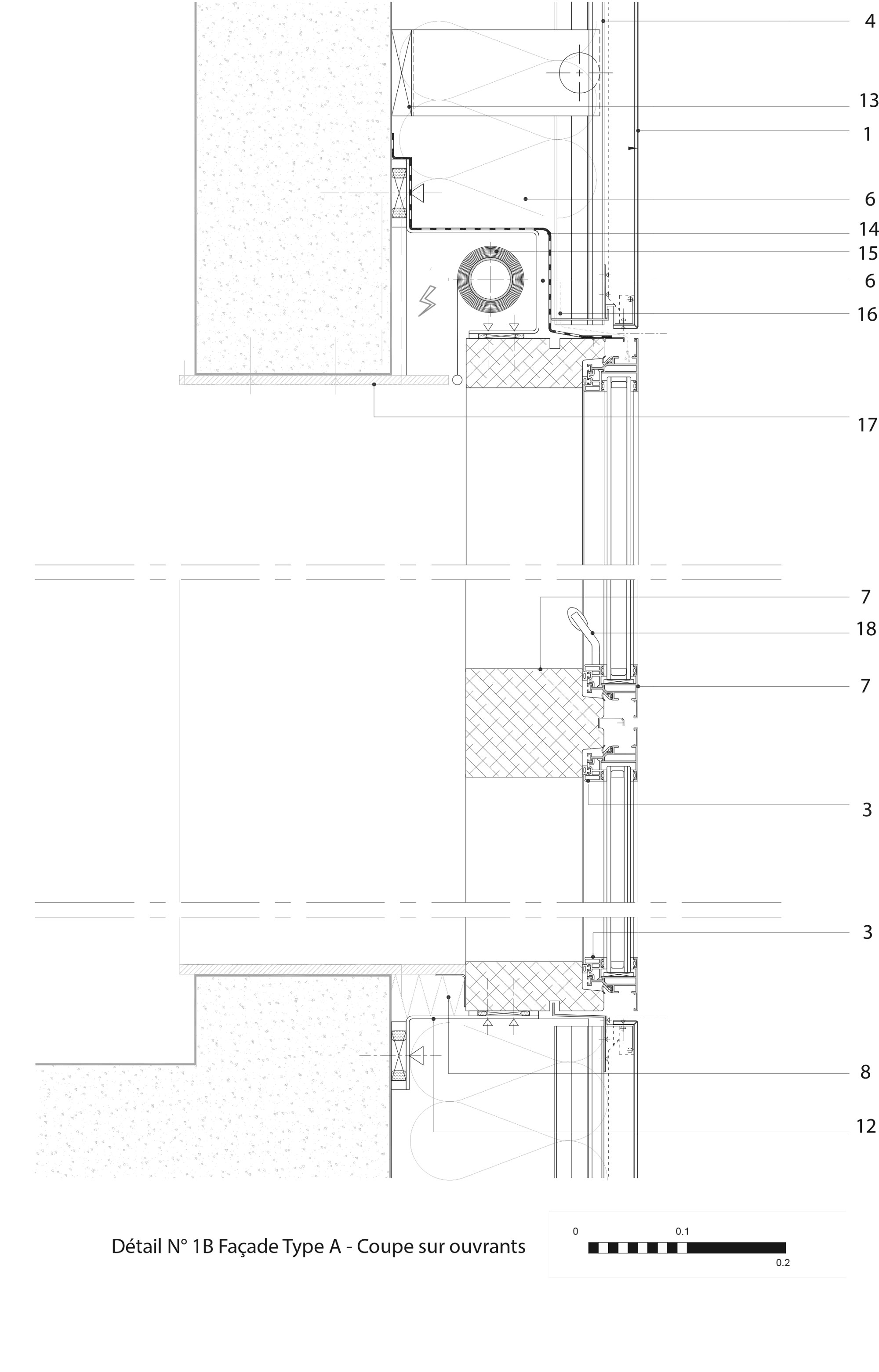
An den Stirnseiten öffnen sich die Büroriegel mit hochformatigen Fenstern, die von vertikalen Brise-soleils verschattet werden. Sowohl die Fassadenverkleidung als auch die Verschattungslamellen sind in einem Champagnerfarbton gehalten, den wir auch an den Fassaden rund um die Innenhöfe wiederfinden. Die Längsseiten der Riegel sind hingegen mit naturfarbenen Aluminiumpaneelen verkleidet, in deren kleinteiligem Modulraster sich auch die unregelmäßig angeordneten Fensteröffnungen einfügen.
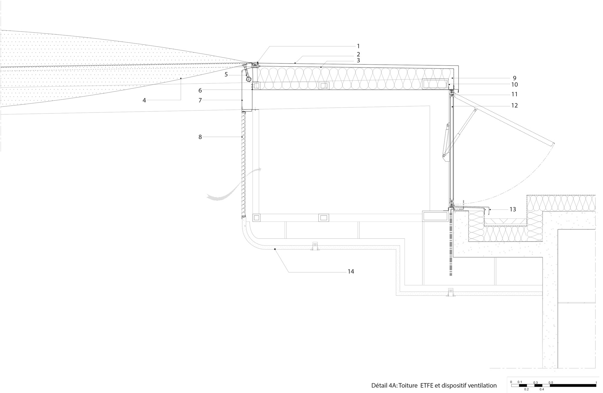
Für weitgehende Öffnung und Außenbezug steht andererseits das Atrium mit seinen Glasfassaden und dem leichten punktbedruckten ETFE-Foliendach. Mit Pflanzbeeten und einer Wasserwand suchten die Architekten hier die ansonsten etwas sterile Atmosphäre zu konterkarieren. Die Akustikpaneele in Hellgrau, Lindgrün und Oliv an den Längswänden greifen das Fassadenraster der Büroflügel auf. Ausgesprochen kräftige, sonnenblumengelbe Farbtupfer setzten die Architekten an den Türdurchgängen zu den Büroflügeln sowie den eingetieften Wandnischen, in denen sich Fenster zu den Innenhöfen öffnen.
Um hier mehr Effizienz und bessere Synergien zu schaffen, schrieb die Klinikleitung 2011 einen Wettbewerb für einen Neubau aus, den die Pariser Architekten Brenac & Gonzalez gewannen. Das 11.000 Quadratmeter große Gebäude liegt mitten auf dem Campus und hat doch nach Südosten freien Blick auf ein kleines Waldstück. Es beherbergt vorwiegend Büro- und Konferenzräume für 350 Mitarbeiter. Hinzu kommen im Erdgeschoss eine Cafeteria samt Küche sowie das Klinikarchiv. Auch die Technikräume liegen zu ebener Erde, weil der Neubau nicht unterkellert ist.
Die Architekten verteilten das Raumprogramm auf zwei dreigeschossige, im Grundriss E-förmige Baukörper, die ein zentrales, gebäudehohes Atrium – die »Agora« - flankieren. Der Haupteingang liegt im Nordwesten und ist damit dem zentralen Gebäudekomplex der Uniklinik zugewandt. Auf der gegenüberliegenden Seite mündet das Atrium in die Freiterrasse der Cafeteria.
Im Maßstab orientieren sich die Baukörper an der bestehenden Campusbebauung: großformatige Volumina, die sich locker auf dem parkartigen Gelände verteilen. In der Detailbehandlung ihres Neubaus spielen Brenac & Gonzalez ein Wechselspiel aus Öffnung und Abschottung. Da sind zum einen die beiden Büroriegel: blechverkleidete, an den Ecken gerundete Röhren, die wie riesige Ufos nur temporär auf dem Klinikareal gelandet zu sein scheinen. Selbst die Erschließungswege, die auf das Gebäude zulaufen, wirken wie aus großen Betonplatten gefräst und auf den Grünflächen abgelegt. Auch die anthrazitfarbenen Wandscheiben, die die aufgeständerten Gebäudeteile stützen, setzen das Formgebungsprinzip der gerundeten Ecken fort.
An den Stirnseiten öffnen sich die Büroriegel mit hochformatigen Fenstern, die von vertikalen Brise-soleils verschattet werden. Sowohl die Fassadenverkleidung als auch die Verschattungslamellen sind in einem Champagnerfarbton gehalten, den wir auch an den Fassaden rund um die Innenhöfe wiederfinden. Die Längsseiten der Riegel sind hingegen mit naturfarbenen Aluminiumpaneelen verkleidet, in deren kleinteiligem Modulraster sich auch die unregelmäßig angeordneten Fensteröffnungen einfügen.
Für weitgehende Öffnung und Außenbezug steht andererseits das Atrium mit seinen Glasfassaden und dem leichten punktbedruckten ETFE-Foliendach. Mit Pflanzbeeten und einer Wasserwand suchten die Architekten hier die ansonsten etwas sterile Atmosphäre zu konterkarieren. Die Akustikpaneele in Hellgrau, Lindgrün und Oliv an den Längswänden greifen das Fassadenraster der Büroflügel auf. Ausgesprochen kräftige, sonnenblumengelbe Farbtupfer setzten die Architekten an den Türdurchgängen zu den Büroflügeln sowie den eingetieften Wandnischen, in denen sich Fenster zu den Innenhöfen öffnen.
Weitere Informationen:
Projektleitung: Stefan Tuchila
Landschaftsarchitektur: Agence Hilaire
Tragwerksplanung, Kostenplanung: Oteis
TGA-Planung: ITF
Akustikplanung: Sigma Acoustique
Fassadenplanung: Van Santen
Lichtplanung: Lumesens
Landschaftsarchitektur: Agence Hilaire
Tragwerksplanung, Kostenplanung: Oteis
TGA-Planung: ITF
Akustikplanung: Sigma Acoustique
Fassadenplanung: Van Santen
Lichtplanung: Lumesens





































