Der Konzertsaal als Sofakissen: Kunstzentrum in Prag
Foto: Benedikt Markel, Jan Slavik
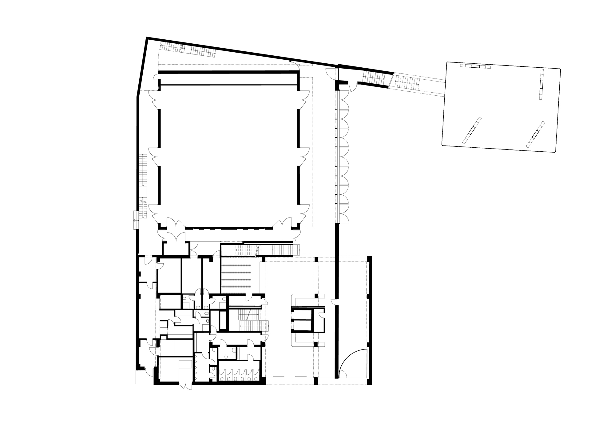
Ein flugunfähiger Zeppelin aus Holz und Stahl, der waghalsig auf den Dächern zweier Häuser balanciert, war bisher das Markenzeichen des Zentrums für zeitgenössische Kunst DOX im Prager Viertel Holešovice. Jetzt hat der Prager Architekt Petr Hájek das Zentrum um drei Neubauten ergänzt, von denen zumindest zwei einen ähnlichen Objektcharakter aufweisen. Der neue Konzertsaal, ein Tanzproberaum und eine Architekturschule erweitern das Raumprogramm des bisher vor allem auf bildende Kunst fokussierten Zentrums deutlich.
Die Architekturschule ARCHIP hat ihre Räume in einem umgebauten Gebäude aus den 1970er-Jahren an der Straße bezogen. Die beiden Baukörper für den Konzertsaal und den Tanzproberaum im Inneren des Baublocks sind hingegen neu. Um sie vor Frost und Wärme zu schützen und jeglichen Schallaustritt ins Freie zu unterbinden, umhüllten die Architekten die Stahlbetonkonstruktion mit Mineralwolle und einer elastischen grauen Kunststoff-Dachbahn. Mittels Punkthaltern ist diese in regelmäßigen Abständen im Beton rückverankert. An den Gebäudekanten verwendeten die Architekten statt Mineralwolle druckfesteren XPS-Dämmstoff. Die Verankerung der Membran ist so konzipiert, dass darin auch bei temperaturbedingten Längenänderungen keine Risse auftreten.
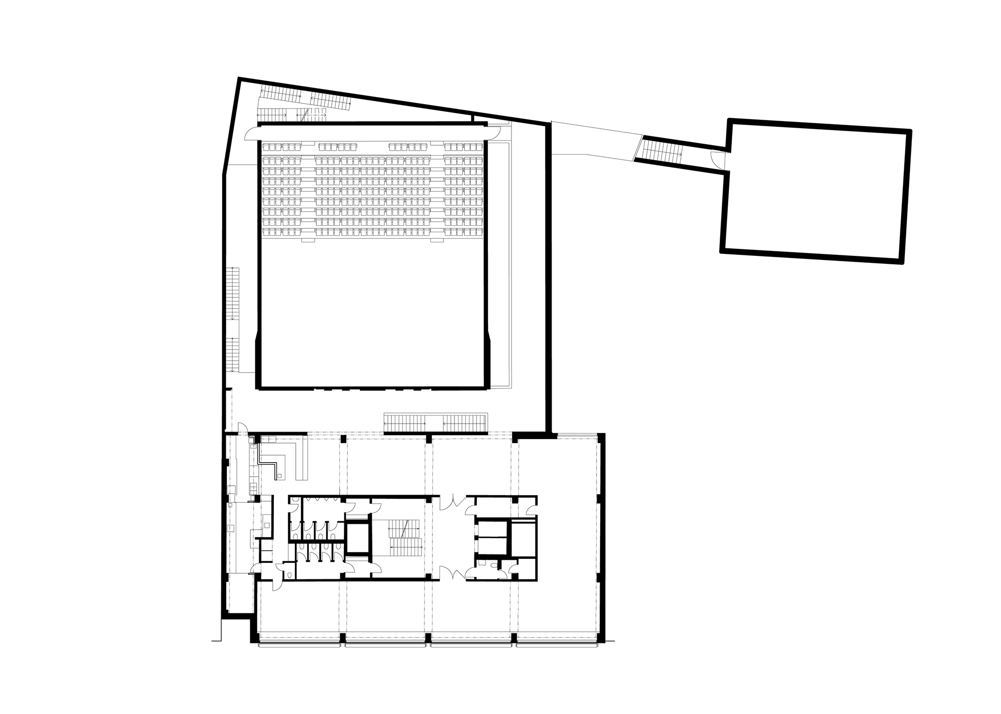
Die Akustik im Saal lässt sich der Art der Musik anpassen, die darin aufgeführt wird. Dazu dienen drehbaren, dreiseitige Paneele unter der Decke sowie die Foyers, die den Saal umgeben. Die Paneele sind auf je einer Seite mit einer schalldämpfenden, diffusen und reflektierenden Oberfläche versehen. Durch ihre Drehung lässt sich die Nachhallzeit im Raum zwischen 1 und 1,3 Sekunden variieren. Werden darüber hinaus die Türen zu den angrenzenden Foyers geöffnet, verlängert sich die Nachhallzeit auf 1,6 Sekunden.
Der Tanzproberaum ist ein Raum mit identischem Grundrissmaßen wie die Bühne im Hauptsaal. Über dem Innenhof steht er auf V-förmigen Betonstützen, die so angeordnet sind, dass sie den Verkehrswegen im Hof ausweichen und die Technikinstallationen unter der Hofoberfläche nicht beeinflussen.
Weitere Informationen:
Akustik: AVT Group a. s. (Martin Vondrášek)
Bauunternehmen: IMOS Brno, a.s.
Ausführung Folienfassade: IzoDol s.r.o.






















