Flexibilität vorprogrammiert: Krankenhaus in Machala
Foto: ©Bicubik
Vor einigen Jahren setzten sich die spanischen Architekten PMMT ein ambitioniertes Ziel: Planung und Bau eines Krankenhauses innerhalb von nur einem Jahr. Das geht nur, wenn Grundrisse, Raummaße und Konstruktion radikal standardisiert und die Bauelemente weitestgehend vorgefertigt werden. Mit dem »Parametric Hospital« entwickelten PMMT in der Folge ein Baukastensystem, das den Anspruch einlösen soll.
Mit dem »Fluid Hospital« gehen die Architekten nun noch einen Schritt weiter: Hier sollen auch Umnutzungen im Betrieb jederzeit ohne größere Eingriffe in die Bausubstanz möglich sein. Möglich wird dies, indem nur wenige Flächen a priori als intern oder öffentlich deklariert werden. Die meisten von ihnen können bedarfsgerecht dem internen oder dem Publikumsbereich zugeschlagen werden.
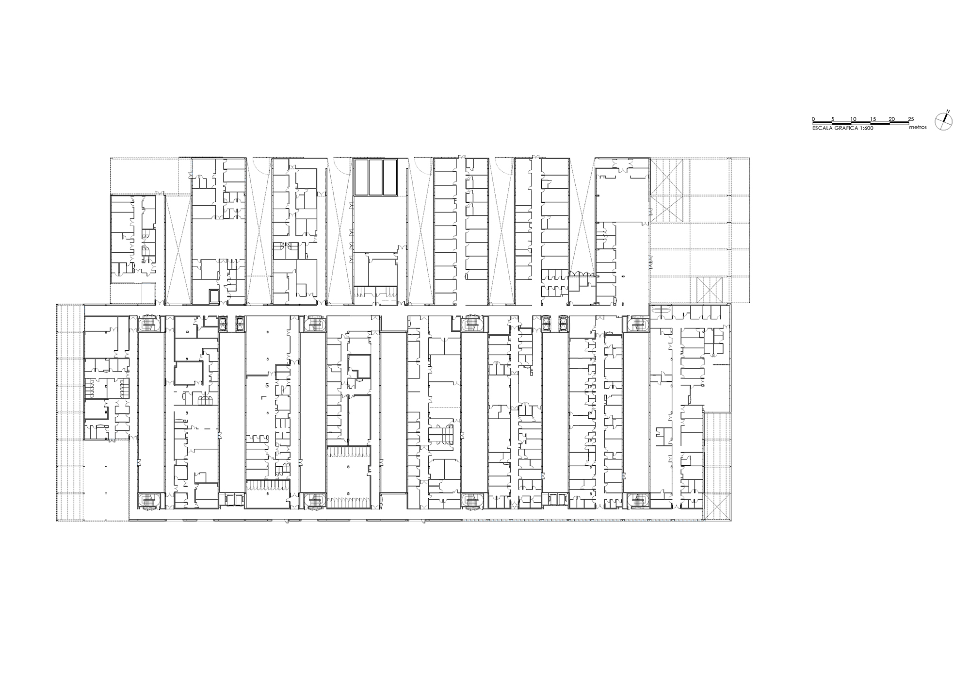
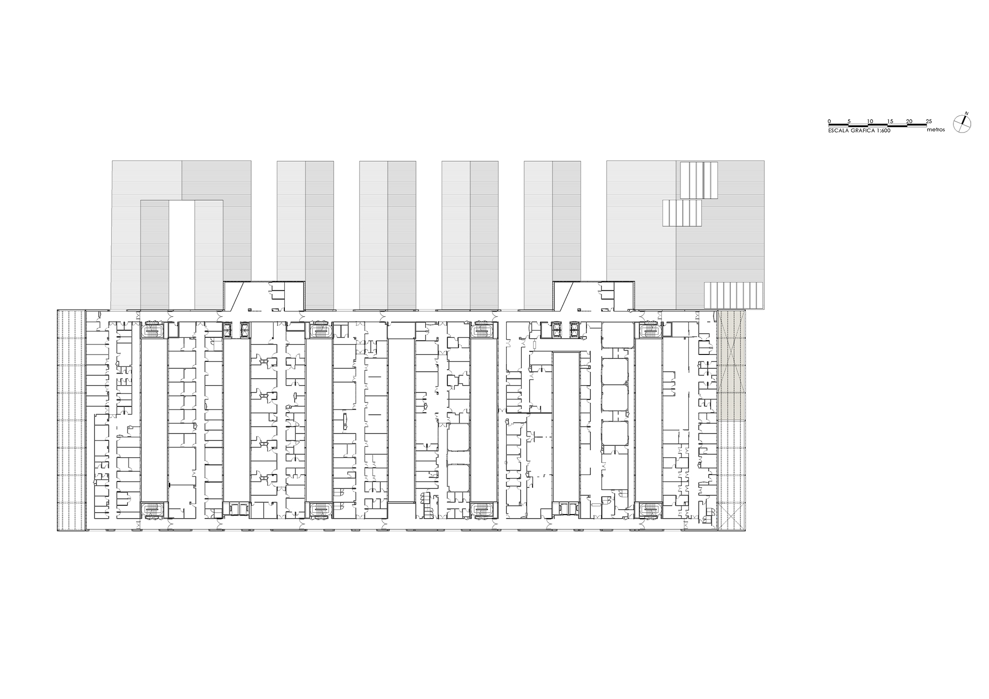
Bei dem Krankenhaus in Machala bildet der Haupteingang mit auskragendem Vordach im Osten den öffentlichen und der Personalparkplatz im Westen den internen Pol. Dazwischen verlaufen zwei viergeschossige Erschließungsspangen längs durch das Krankenhaus. Mit ihren sanft auf- und absteigenden Dächern bilden sie zugleich den höchsten Teil des Gebäudekomplexes. Zwischen ihnen ist eine Reihe zwei- bis dreigeschossiger Bettenhäuser mit dazwischen liegenden Höfen angeordnet. Weitere eingeschossige Betten- und Behandlungstrakte befinden sich im Nordteil des Gebäudes.
Der gesamte Komplex basiert auf einem einheitlichen Konstruktionsraster von 7x7 Metern und zeigt sich je nach Himmelsrichtung in radikal unterschiedlichen Gewändern. Die Nord- und Südfassaden erhielten ein Ziegelmauerwerk mit Lochfenstern. Im Westen und Osten hingegen ist die Dachhaut aus weißem Trapezblech tief herabgezogen, teils sogar in perforierter Form bis über die Fensterbänder. Auf diese Weise können die Patienten ins Freie blicken, ohne selbst gesehen zu werden.
Nach der Fertigstellung des Erstlings in Machala arbeiten PMMT derzeit an zwei weiteren »Fluid Hospitals«. Der eine soll in Ecuador entstehen, der andere in Bolivien.
Weitere Informationen:
Mitarbeiter PMMT: Joana Cornudella, Luis Gotor, Marta Gardeñes, Rita Barata, Marta Nafría
TGA-Planung: JG Ingenieros
Kostenplanung: Vinclament
Bauunternehmen: Makiber, SA
Bruttogrundfläche: 23,850 m2
Gesamtkosten: 60,5 Mio. €
















