11.05.2017 Maria Golz

Gebranntes Markenzeichen: Feuerwache Luckenwalde

Foto: Dietmar Strauß

Transparent und in kräftigem Rot zeigt sich der Haupteingang mit angrenzender Fahrzeughalle an der Dessauer Straße. Der U-förmige Neubau ist funktional untergliedert und staffelt sich dementsprechend in die Höhe: Angefangen mit den eingeschossigen Technikräumen im Rückgebäude, weiter mit den über zwei Geschosse hohen Werkstatt- und Lagerbereichen sowie der verbindenden Halle für die Einsatzfahrzeuge, bis hin zum dreigeschossigen Umkleide- und Personaltrakt. Die raumhohen Glastore der Fahrzeughalle gehen am Eingang sowie dem darüber liegenden Versammlungsraum fließend zu einer Glaswand über und bringen dadurch optisch die unterschiedlich genutzten Gebäudeteile zusammen. Zwei schmale Fensterbänder belichten die Aufenthaltsräume der Feuerwehrmänner im Erdgeschoss und im ersten Obergeschoss sowie die Schulungs- und Versammlungsräume im zweiten Obergeschoss.
Die »schmalformatigen«, roten Ziegel sind umlaufend als Vorsatzschale auf einer Edelstahlunterkonstruktion angebracht. Das dazu im Kontrast stehende, kühle Grau des Betonsteinpflasters bedeckt den Boden des vollständig umfahrbaren Feuerwehrgebäudes und ist zudem im Inneren der Fahrzeughalle wiederzufinden – ein fließender Übergang von Innen und Außen.
Die trichterförmige Zäsur entlang des Bahndamms fasst einen windgeschützten Hof, von dem aus alle Gebäudeteile gleichermaßen rückseitig erschlossen werden können. Das transparent gestaltete Foyer mit Treppenhaus und Kletterwand ist sowohl formal als auch funktional Dreh- und Angelpunkt des Feuerwehrgebäudes: Hier kommen Einsätze in die Zentrale, werden weitergegeben, die Feuerwehrler erreichen zügig die Umkleiden, egal wo sie sich zuvor aufgehalten haben, rein in die Halle zu den Einsatzfahrzeugen, Glastore geöffnet und los geht´s.
Dank der klaren räumlichen Aufteilung und den logistisch cleveren Übergängen ist ein reibungsloser Ablauf möglich.    Die betonte Horizontalität der Fassade, die abgerundeten Ecken und die homogene Materialwahl verleihen der neuen Feuerwache Luckenwalde ausdrucksstarke Eleganz.

Foto: Dietmar Strauß

Foto: Dietmar Strauß

Foto: Dietmar Strauß

Foto: Dietmar Strauß

Foto: Dietmar Strauß

Foto: Dietmar Strauß

Foto: Dietmar Strauß

Foto: Dietmar Strauß

Foto: Dietmar Strauß

Foto: Dietmar Strauß

Foto: Dietmar Strauß

Foto: Dietmar Strauß

Lageplan, Grafik: Pussert Kosch Architekten

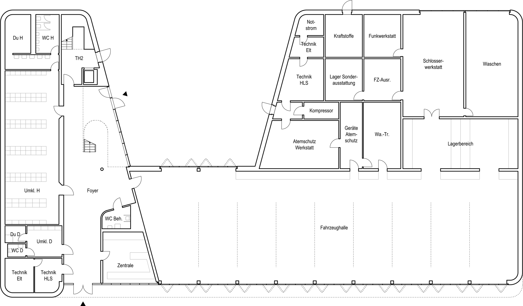
EG, Grafik: Pussert Kosch Architekten

OG, Grafik: Pussert Kosch Architekten

Weitere Informationen: Fotograf: Dietmar Strauß
https://detail-cdn.s3.eu-central-1.amazonaws.com/media/catalog/product/P/u/PussertKosch-FeuerwacheLuckenwalde-Teaserhome-1500.jpg?width=437&height=582&store=de_de&image-type=image https://detail-cdn.s3.eu-central-1.amazonaws.com/media/catalog/product/P/u/PussertKosch-FeuerwacheLuckenwalde-Teaserbox-735.jpg?width=437&height=582&store=de_de&image-type=image https://detail-cdn.s3.eu-central-1.amazonaws.com/media/catalog/product/P/u/PussertKosch-FeuerwacheLuckenwalde-1.jpg?width=437&height=582&store=de_de&image-type=image https://detail-cdn.s3.eu-central-1.amazonaws.com/media/catalog/product/P/u/PussertKosch-FeuerwacheLuckenwalde-2.jpg?width=437&height=582&store=de_de&image-type=image https://detail-cdn.s3.eu-central-1.amazonaws.com/media/catalog/product/P/u/PussertKosch-FeuerwacheLuckenwalde-3.jpg?width=437&height=582&store=de_de&image-type=image https://detail-cdn.s3.eu-central-1.amazonaws.com/media/catalog/product/P/u/PussertKosch-FeuerwacheLuckenwalde-4.jpg?width=437&height=582&store=de_de&image-type=image https://detail-cdn.s3.eu-central-1.amazonaws.com/media/catalog/product/P/u/PussertKosch-FeuerwacheLuckenwalde-5.jpg?width=437&height=582&store=de_de&image-type=image https://detail-cdn.s3.eu-central-1.amazonaws.com/media/catalog/product/P/u/PussertKosch-FeuerwacheLuckenwalde-6.jpg?width=437&height=582&store=de_de&image-type=image https://detail-cdn.s3.eu-central-1.amazonaws.com/media/catalog/product/P/u/PussertKosch-FeuerwacheLuckenwalde-7.jpg?width=437&height=582&store=de_de&image-type=image https://detail-cdn.s3.eu-central-1.amazonaws.com/media/catalog/product/P/u/PussertKosch-FeuerwacheLuckenwalde-8.jpg?width=437&height=582&store=de_de&image-type=image https://detail-cdn.s3.eu-central-1.amazonaws.com/media/catalog/product/P/u/PussertKosch-FeuerwacheLuckenwalde-9.jpg?width=437&height=582&store=de_de&image-type=image https://detail-cdn.s3.eu-central-1.amazonaws.com/media/catalog/product/P/u/PussertKosch-FeuerwacheLuckenwalde-10.jpg?width=437&height=582&store=de_de&image-type=image https://detail-cdn.s3.eu-central-1.amazonaws.com/media/catalog/product/P/u/PussertKosch-FeuerwacheLuckenwalde-11.jpg?width=437&height=582&store=de_de&image-type=image https://detail-cdn.s3.eu-central-1.amazonaws.com/media/catalog/product/P/u/PussertKosch-FeuerwacheLuckenwalde-12.jpg?width=437&height=582&store=de_de&image-type=image https://detail-cdn.s3.eu-central-1.amazonaws.com/media/catalog/product/P/u/PussertKosch-FeuerwacheLuckenwalde-Lageplan.jpg?width=437&height=582&store=de_de&image-type=image https://detail-cdn.s3.eu-central-1.amazonaws.com/media/catalog/product/P/u/PussertKosch-FeuerwacheLuckenwalde-EG.jpg?width=437&height=582&store=de_de&image-type=image https://detail-cdn.s3.eu-central-1.amazonaws.com/media/catalog/product/P/u/PussertKosch-FeuerwacheLuckenwalde-OG2.jpg?width=437&height=582&store=de_de&image-type=image
Copyright © 2024 DETAIL. Alle Rechte vorbehalten.