Im Dialog: Lycée Français von b720 Fermín Vázquez Architects
Foto: Simón García
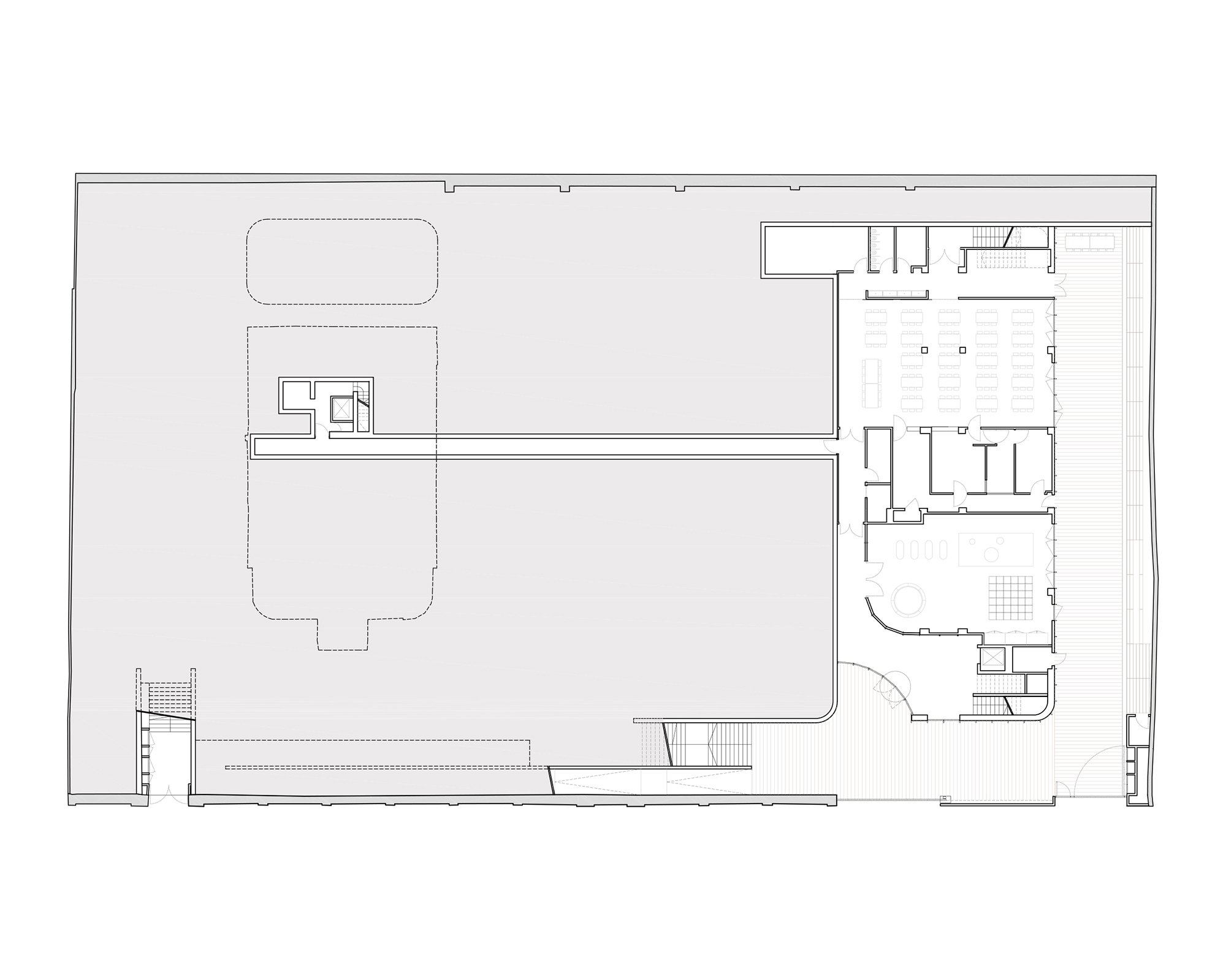
Zwei rechteckige Baukörper prägen das leicht erhabene Grundstück des Lycée Français de Barcelona. Sie sind längsseitig parallel zueinander positioniert und spannen einen gemeinsamen Innenhof miteinander auf. Die südlichen Querfassaden orientieren sich zur südöstlich anschließenden Straße hin. Hier gibt es eine Treppe, über die man direkt auf den Hof gelangt, der als kleiner Spielplatz gestaltet ist.
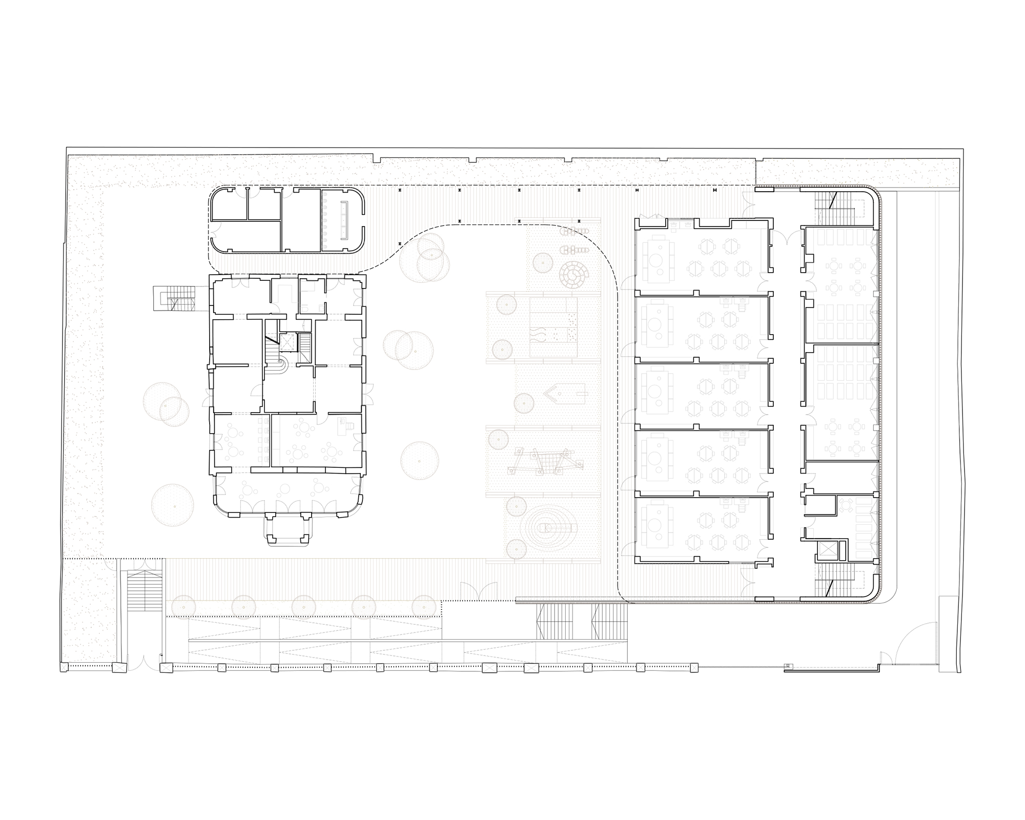
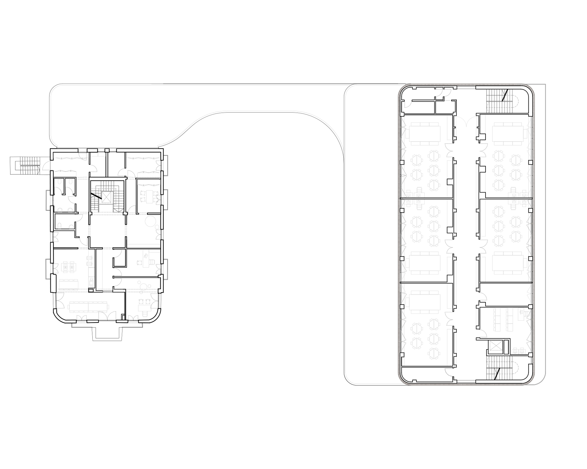
Linker Hand befindet sich die bestehende, zweigeschossige Villa. b720 Fermín Vázquez Architects restaurieren sie mit Bedacht und erhalten ihren Charakter. Die Fassaden erscheinen in dezentem Beige und rücken die Säulen und historischen Details in den Vordergrund. Ihr gegenüber steht der neue Schultrakt. Er ist größer und mit drei Stockwerken auch höher als der Bestandsbau. Das Kellergeschoss öffnet sich in östlicher Richtung zur Straße und fungiert als direkter Zugang des Erweiterungsbaus. Eine Brücke im ersten Obergeschoss verbindet die beiden Gebäude. Sie ist freiliegend und geht am Anschlusspunkt zum Neubau in eine Terrasse über.
Die Gestaltung des neuen Teils und der Villa könnten auf den ersten Blick unterschiedlicher nicht sein. Nur bei genauerem Hinsehen entdeckt man die abgerundeten Ecken, mit der b720 Fermín Vázquez Architects die historischen Ansichten referenzieren und mit einfließen lassen. Ansonsten kleidet die Fassaden der Erweiterung eine Hülle aus vertikalen Lamellen. In unterschiedlichen Breiten, Höhen und Farben zaubern sie ein lebendiges Bild. Je nach Position und Ausrichtung sind sie in verschiedenen Abständen zueinander montiert und unterstreichen den graduellen Verlauf der weißen, gelben und orangen Elemente.
Programmatisch gliedern b720 Fermín Vázquez Architects die Funktionsbereiche des Lycée Français in die beiden Gebäude auf. Während sich die bestehende Villa mit Administration, Mediathek und Musikzimmer den repräsentativen und gemeinschaftlichen Aktivitäten widmet, befinden sich im neuen Trakt die Klassenräume, wobei die Geschosse jeweils den einzelnen Schulstufen entsprechen.
Die Innenräume sind hell und bunt gestaltet. Sie folgen in ihrem Farbcode den Fassaden und werden von Sichtbetonoberflächen und warmen Holzelementen in Form von Einbauten und Deckenschalungen ergänzt.















