// Check if the article Layout ?>
Investition mit Augenmaß
Nachhaltig in jeder Hinsicht sollte der Bürobau werden, den Ganzer Hajek Unterholzer und Thierry Louvieaux für den französischen Projektentwickler Icade am Münchner Arnulfpark planten. Mit dem Bau wurde erst begonnen, als der Mieter – eine Unternehmensprüfungsgesellschaft – feststand. Das ermöglichte es, das Gebäude inklusive Innenarchitektur (entworfen von Landau Kindelbacher) genau auf die Kundenbedürfnisse abzustimmen.
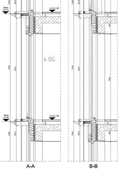
Flexibilität war dennoch gefordert: Jedes der rund 2500 m² großen Bürogeschosse lässt sich in acht Nutzungseinheiten unterteilen. Das sechsgeschossige Gebäude hat einen parallelogrammförmigen Grundriss mit Innenhof, in den ein Auditorium eingestellt wurde. Zur Straße hin erhielten die vier obersten Geschosse eine markante Schachbrettfassade aus Glas, an der sich öffenbare Kastenfenster und einfache Festverglasungen abwechseln.
Der berechnete Gesamt-Primärenergiebedarf des Neubaus liegt bei 120 kWh/m²a. Er war jedoch nur ein kleiner Baustein im umfassenden Nachhaltigkeitskonzept, für das der Neubau Anfang 2011 das DGNB Zertifikat in Gold erhielt.
Der berechnete Gesamt-Primärenergiebedarf des Neubaus liegt bei 120 kWh/m²a. Er war jedoch nur ein kleiner Baustein im umfassenden Nachhaltigkeitskonzept, für das der Neubau Anfang 2011 das DGNB Zertifikat in Gold erhielt.
