// Check if the article Layout ?>
Kraftakt elegant verpackt: Jesus College in Cambridge
Foto: Nick Kane
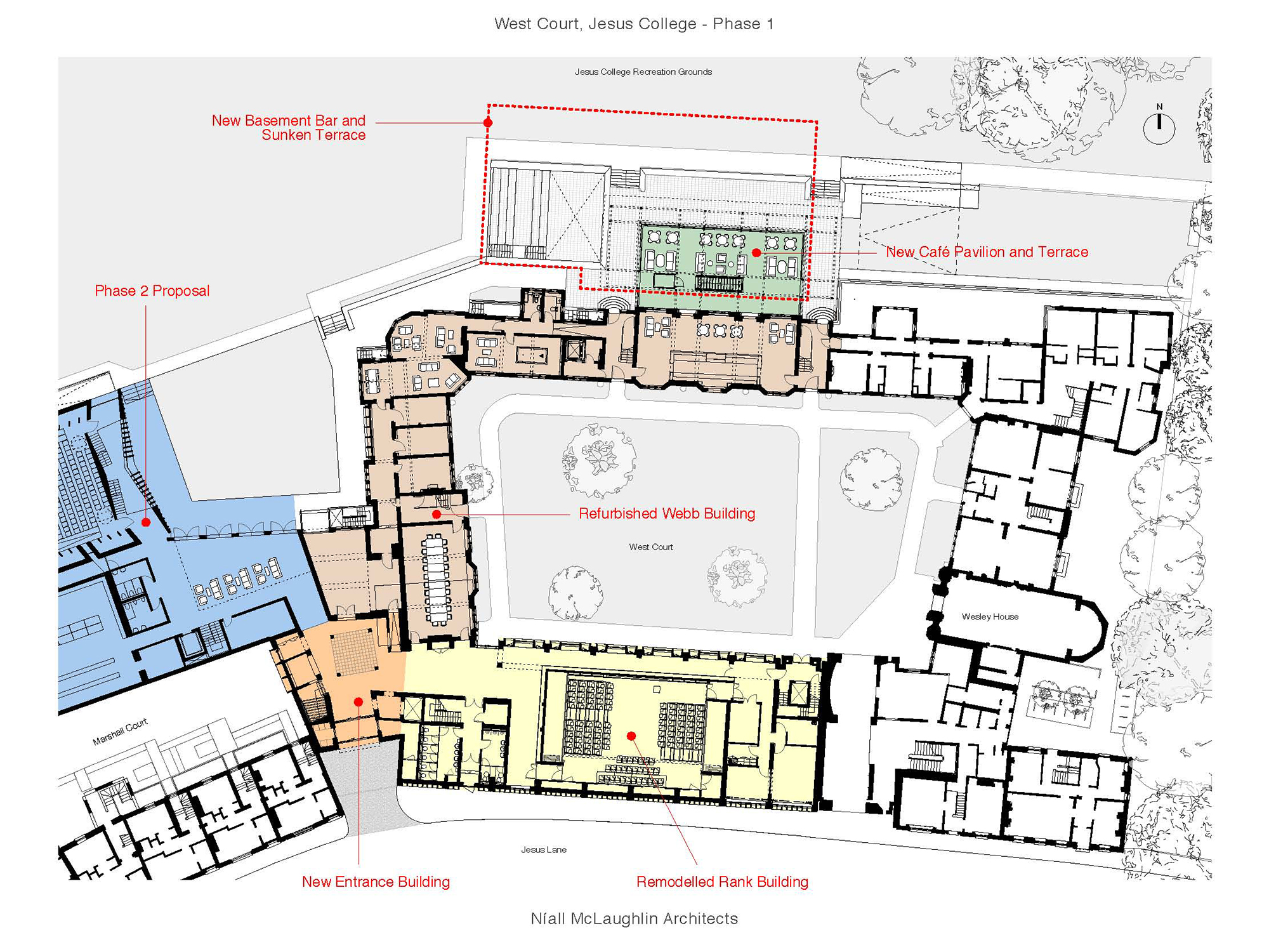
Mit dem Umbau bekommt das Rank Building des Jesus College in Cambridge einen neuen repräsentativen Auftritt zur Straße. Schlanke Eichenholzprofile verleihen dem Bau eine neue Eleganz und lassen die schwerfälligen Proportionen des Originalbaus vergessen. Westlich angrenzend markiert nun ein Turm den neu geschaffenen Eingang zum historischen West Court.
Zur Straße und zum Hof bilden Stahlbetonpfeiler mit einer Verkleidung aus braunem Ziegel die primäre Tragstruktur ab. Zwischen den tiefen Holzrahmen sind sie die einzigen noch sichtbaren Elemente des Bestandes und geben der Gebäudehülle eine vertikale Gliederung. Dabei haben beide Seiten ein ganz unterschiedliches Erscheinungsbild. Die südliche Fassade erscheint durch die Pergolen der oberen Balkone höher als zuvor und betont die Präsenz des Neubaus im Straßenraum.
Die Nordseite öffnet sich zum grünen West Court mit zweigeschossigen Rahmenelementen, jedes mit zwei geschlossenen Lüftungsflügeln und einer großflächigen Verglasung dazwischen. Für den Einbau eines zweigeschossigen Auditoriums mit 180 Sitzen musste die gesamte Decke über dem Erdgeschoss abgebrochen werden. Der neue Mittelgang, der die Gästezimmer in den Obergeschossen erschließt, durchschneidet die gebäudetiefen Schotten. Sie werden über dem Auditorium durch 84 cm hohe Stahlträger abgefangen − ein statischer Kraftakt, der von keiner Seite des Gebäudes zu erahnen ist.
Zur Straße und zum Hof bilden Stahlbetonpfeiler mit einer Verkleidung aus braunem Ziegel die primäre Tragstruktur ab. Zwischen den tiefen Holzrahmen sind sie die einzigen noch sichtbaren Elemente des Bestandes und geben der Gebäudehülle eine vertikale Gliederung. Dabei haben beide Seiten ein ganz unterschiedliches Erscheinungsbild. Die südliche Fassade erscheint durch die Pergolen der oberen Balkone höher als zuvor und betont die Präsenz des Neubaus im Straßenraum.
Die Nordseite öffnet sich zum grünen West Court mit zweigeschossigen Rahmenelementen, jedes mit zwei geschlossenen Lüftungsflügeln und einer großflächigen Verglasung dazwischen. Für den Einbau eines zweigeschossigen Auditoriums mit 180 Sitzen musste die gesamte Decke über dem Erdgeschoss abgebrochen werden. Der neue Mittelgang, der die Gästezimmer in den Obergeschossen erschließt, durchschneidet die gebäudetiefen Schotten. Sie werden über dem Auditorium durch 84 cm hohe Stahlträger abgefangen − ein statischer Kraftakt, der von keiner Seite des Gebäudes zu erahnen ist.
Weitere Informationen:
Tragwerksplanung: Peter Brett Associates, Reading (GB)
Haustechnikplaner: David Bedwell & Partners, Royston (GB)
Kostenplanung und Projektmanagement: Edmond Shipway, London (GB)
Akustikplaner: Gillieron Scott Acoustic Design, London (GB)
Innenarchitektur: Eve Waldron Design, Cambridge (GB)
Generalunternehmer: Cocksedge Building Contractors, Bury Saint Edmunds (GB)
Tragwerksplanung: Peter Brett Associates, Reading (GB)
Haustechnikplaner: David Bedwell & Partners, Royston (GB)
Kostenplanung und Projektmanagement: Edmond Shipway, London (GB)
Akustikplaner: Gillieron Scott Acoustic Design, London (GB)
Innenarchitektur: Eve Waldron Design, Cambridge (GB)
Generalunternehmer: Cocksedge Building Contractors, Bury Saint Edmunds (GB)











