// Check if the article Layout ?>
Kreative Freiräume: Von der Garnfabrik zur Kunsthochschule
Foto: Filip Dujardin
In Emmenbrücke, wenige Kilometer nördlich von Luzern, entsteht auf dem einstmals abgeschlossenen Industrieareal einer Garnfabrik in den nächsten Jahren ein durchmischtes neues Quartier – die Viscosistadt. Den Masterplan für die künftige Entwicklung des Areals erstellten die Züricher Architekten EM2N, die das ehemalige Produktionsgebäude Bau 745 zum neuen Standort der Hochschule Luzern – Design & Kunst transformierten.
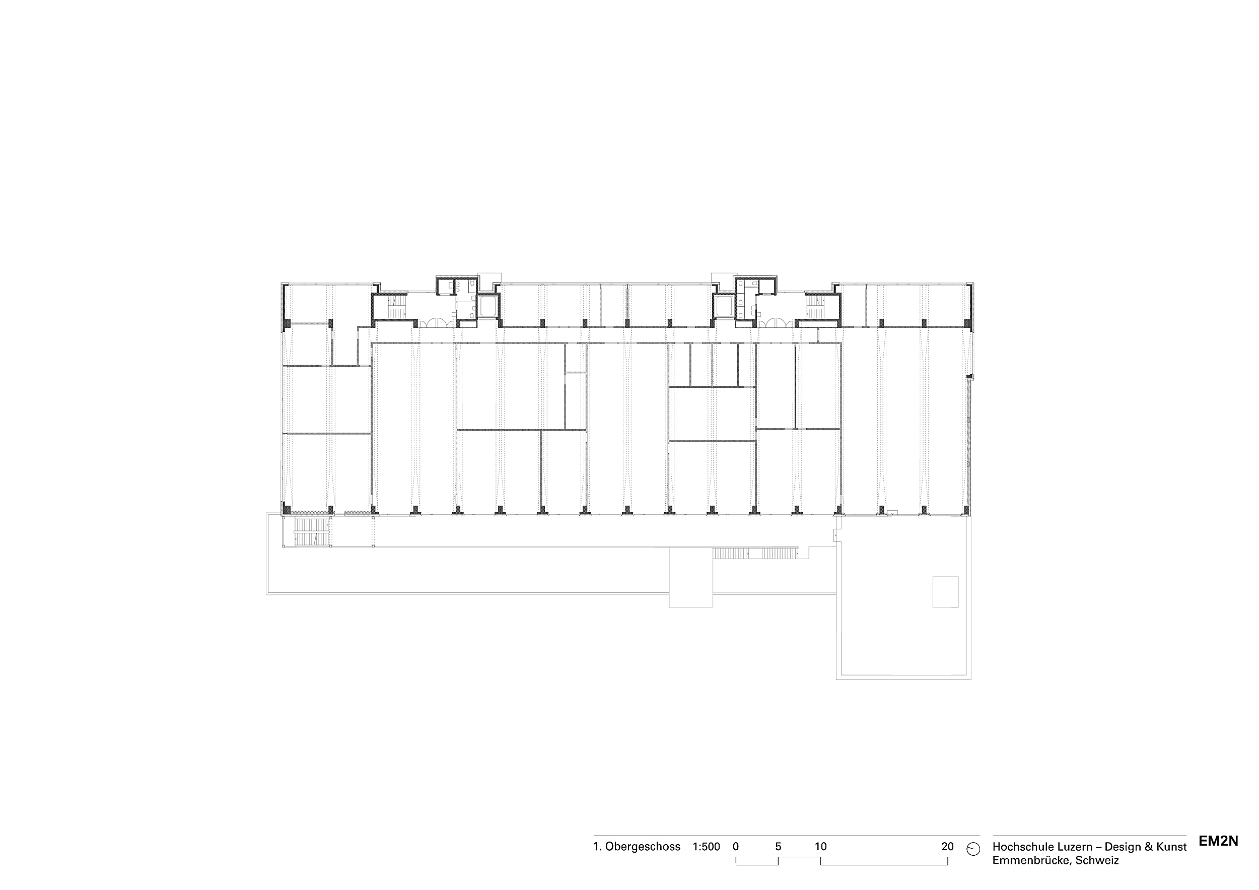
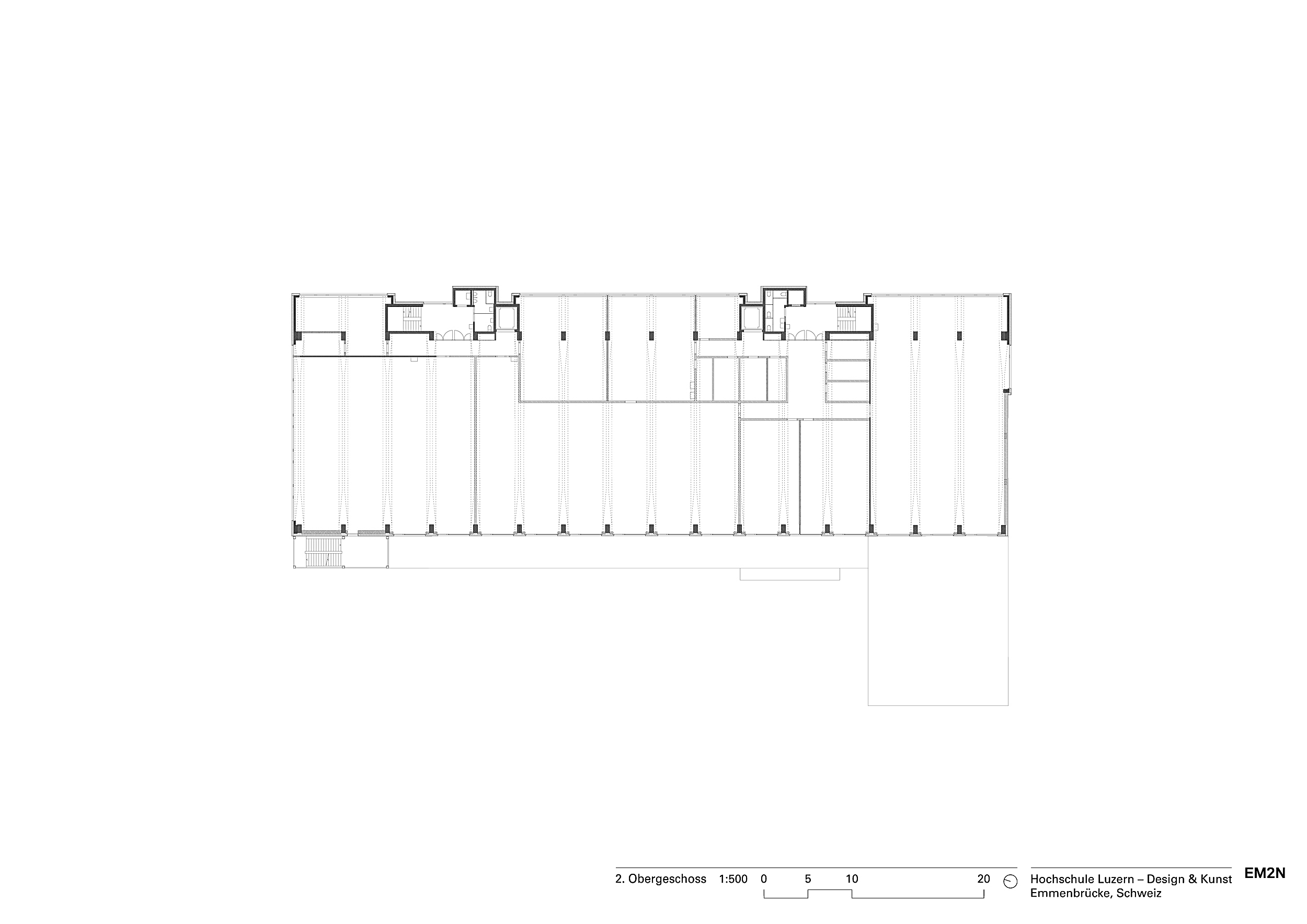
Der 1970 errichtete, großvolumige Baukörper bietet durch sein weitgespanntes Tragwerk großzügige, lichte Innenräume. Um die Qualitäten der Ingenieurarchitektur und den Charakter der Räume zu erhalten, sind die baulichen Eingriffe minimiert. So wurde an der Grundstruktur nichts verändert; die Bestandsfassaden erhielten einen Vollwärmeschutz und neue Fenster. Als einzige wesentliche Veränderung wurde das Hochregallager der Westseite rückgebaut und die Fassade großflächig aufgeglast.
Das offen gestaltete Erdgeschoss ist mit Veranstaltungssaal, Kino, Ausstellungsbereichen, Cafeteria und Bibliothek als Begegnungsort für Studenten und Besucher konzipiert. Die drei darüberliegenden Etagen bieten große, flexibel nutzbare Ateliers, Werkstätten, Soundstudios und Unterrichtsräume. Im Untergeschoss sind schallgeschützte Tonstudios und Schnittplätze platziert, belichtet über einen abgegrabenen Hof. Im 4. Obergeschoss befindet sich die Verwaltung in der weitgehend unveränderten Raumstruktur.
Auf der Westseite wurde mit der Stahlkonstruktion von Fluchttreppe und Fluchtbalkon ein sonniger, informell nutzbarer Freiraum geschaffen: als luftige Pergolen sind sie ebenso mit Leben erfüllt wie die Dachterrasse über der vorgelagerten Bibliothek und machen die besondere Atmosphäre des Kreativquartiers nach außen erlebbar.
Der 1970 errichtete, großvolumige Baukörper bietet durch sein weitgespanntes Tragwerk großzügige, lichte Innenräume. Um die Qualitäten der Ingenieurarchitektur und den Charakter der Räume zu erhalten, sind die baulichen Eingriffe minimiert. So wurde an der Grundstruktur nichts verändert; die Bestandsfassaden erhielten einen Vollwärmeschutz und neue Fenster. Als einzige wesentliche Veränderung wurde das Hochregallager der Westseite rückgebaut und die Fassade großflächig aufgeglast.
Das offen gestaltete Erdgeschoss ist mit Veranstaltungssaal, Kino, Ausstellungsbereichen, Cafeteria und Bibliothek als Begegnungsort für Studenten und Besucher konzipiert. Die drei darüberliegenden Etagen bieten große, flexibel nutzbare Ateliers, Werkstätten, Soundstudios und Unterrichtsräume. Im Untergeschoss sind schallgeschützte Tonstudios und Schnittplätze platziert, belichtet über einen abgegrabenen Hof. Im 4. Obergeschoss befindet sich die Verwaltung in der weitgehend unveränderten Raumstruktur.
Auf der Westseite wurde mit der Stahlkonstruktion von Fluchttreppe und Fluchtbalkon ein sonniger, informell nutzbarer Freiraum geschaffen: als luftige Pergolen sind sie ebenso mit Leben erfüllt wie die Dachterrasse über der vorgelagerten Bibliothek und machen die besondere Atmosphäre des Kreativquartiers nach außen erlebbar.
Weitere Informationen:
Projektleiter: Christoph Abächerli, Bernd Druffel (Associate), Marc Holle (Associate)
Mitarbeiter: Dorothee Burkert, Niklas Erlewein, Margarida Fonseca, Giulia Giardini, Olivia Kossak, Ana Olalquiaga Cubillo, Gabriela Popa, Claudia Soppelsa-Peter, Tomoko Suzuki, Jonas Rindlisbacher
Mieter und Nutzer:
Hochschule Luzern – Design & Kunst:
· Bachelor-Studiengang ‘Kunst & Vermittlung’
· Bachelor-Studiengang ‘Animation’
· Bachelor-Studiengang ‘Video’
· Bachelor-Studienrichtung ‘Camera Arts’
· Master-Studiengänge ‘Fine Arts’, ‘Design’ und ‘Film’
Raumprogramm: Ateliers, Werkstätten, Soundstudios, Unterrichtsräume, Büros
Grundstücksfläche: 5000 m2
Geschossfläche: 13000 m2
Hauptnutzfläche: 10600 m2
Gebäudevolumen: 66000 m3
Gebäudedimensionen: 81 m Länge, 32 m Breite, 27 m Höhe
Fotografen: Filip Dujardin, Randy Tischler, Claudia Fuchs
Eine ausführliche Print-Dokumentation zum Thema finden Sie in unserer Ausgabe DETAIL 2017/1-2 mit dem Themenschwerpunkt »Sanierung«.
Projektleiter: Christoph Abächerli, Bernd Druffel (Associate), Marc Holle (Associate)
Mitarbeiter: Dorothee Burkert, Niklas Erlewein, Margarida Fonseca, Giulia Giardini, Olivia Kossak, Ana Olalquiaga Cubillo, Gabriela Popa, Claudia Soppelsa-Peter, Tomoko Suzuki, Jonas Rindlisbacher
Mieter und Nutzer:
Hochschule Luzern – Design & Kunst:
· Bachelor-Studiengang ‘Kunst & Vermittlung’
· Bachelor-Studiengang ‘Animation’
· Bachelor-Studiengang ‘Video’
· Bachelor-Studienrichtung ‘Camera Arts’
· Master-Studiengänge ‘Fine Arts’, ‘Design’ und ‘Film’
Raumprogramm: Ateliers, Werkstätten, Soundstudios, Unterrichtsräume, Büros
Grundstücksfläche: 5000 m2
Geschossfläche: 13000 m2
Hauptnutzfläche: 10600 m2
Gebäudevolumen: 66000 m3
Gebäudedimensionen: 81 m Länge, 32 m Breite, 27 m Höhe
Fotografen: Filip Dujardin, Randy Tischler, Claudia Fuchs
Eine ausführliche Print-Dokumentation zum Thema finden Sie in unserer Ausgabe DETAIL 2017/1-2 mit dem Themenschwerpunkt »Sanierung«.
Weitere Informationen:
Projektleiter: Christoph Abächerli, Bernd Druffel (Associate), Marc Holle (Associate)
Mitarbeiter: Dorothee Burkert, Niklas Erlewein, Margarida Fonseca, Giulia Giardini, Olivia Kossak, Ana Olalquiaga Cubillo, Gabriela Popa, Claudia Soppelsa-Peter, Tomoko Suzuki, Jonas Rindlisbacher
Projektleiter: Christoph Abächerli, Bernd Druffel (Associate), Marc Holle (Associate)
Mitarbeiter: Dorothee Burkert, Niklas Erlewein, Margarida Fonseca, Giulia Giardini, Olivia Kossak, Ana Olalquiaga Cubillo, Gabriela Popa, Claudia Soppelsa-Peter, Tomoko Suzuki, Jonas Rindlisbacher






















