14.02.2017 Jakob Schoof

Kultur schlägt Kommerz: Stadtteilbibliothek in Guiyang

Foto: Van Wang Architects

Kein größeres Investorenprojekt kommt ohne sie aus: jene oft temporären Vermarktungspavillons mit Modellen, bunten Renderings und Separées für Verkaufsgespräche, die potenzielle Wohnungskäufer oder Büromieter davon überzeugen sollen, sich hier und nirgends sonst eine Bleibe zu suchen.

Bei dem Stadtentwicklungsprojekt, das die China Railway Group (CREC) am Rande der südwestchinesischen Stadt Guiyang initiiert hat, wurde zu diesem Zweck sogar ein stattliches zweigeschossiges Gebäude errichtet. Bei dem Bauherrn handelt es sich, anders als sein Name nahelegt, nicht um eine Eisenbahngesellschaft, sondern um einen großen staatseigenen Baukonzern in China.

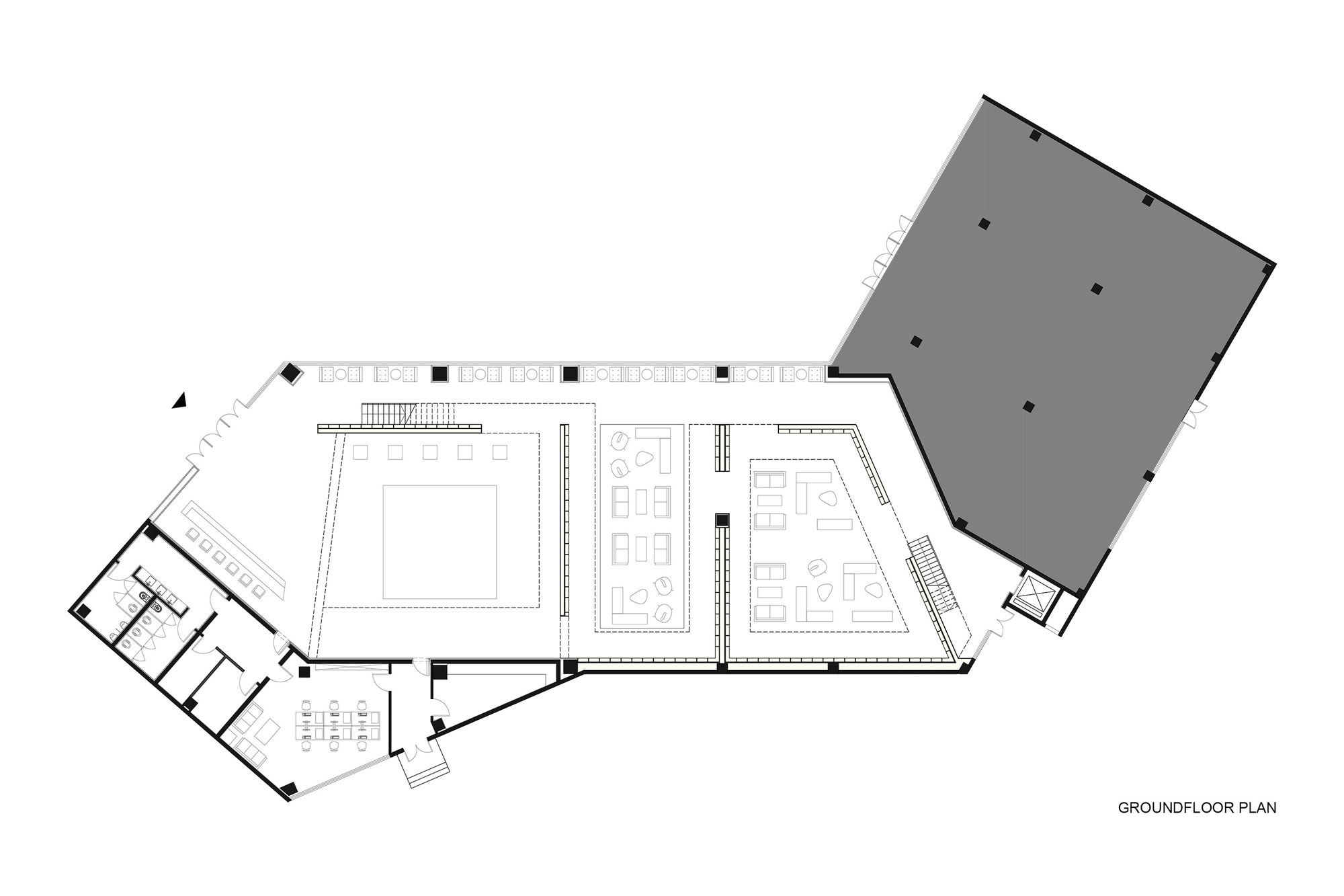
Ein ortsansässiges Architekturbüro hatte die Planungen für den Showroom im Prinzip schon abgeschlossen. Van Wang Architects aus Hong Kong schlugen jedoch vor, einen Teil des Neubaus zur Bibliothek für den Stadtteil umzuwidmen. Sie fügten zwischen Erd- und Obergeschoss ein zusätzliches Mezzanin ein und gliederten den zur Verfügung stehenden Raum in vier Abschnitte: die Eingangshalle, zwei Lesesäle sowie einen langgestreckten Erschließungsbereich entlang der Fassade.

Der Eingangsbereich sowie ein Lesesaal reichen jeweils über die volle Gebäudehöhe und erhalten Tageslicht durch die hoch liegenden Obergeschossfenster. Der zweite Lesesaal umfasst nur das Erdgeschoss und das Mezzanin und schließt oben mit einer mit Holzlamellen verkleideten Decke ab. Auch sonst dominieren an den neuen Einbauten Holzoberflächen. Gemeinsam mit dem dunklen Steinfußboden verleihen sie der Bibliothek einen edlen, wohnlichen Charakter.

Die beiden Lesesäle sind rundum mit Bücherregalen umgeben. Von einer Stahlkonstruktion in ihrem Inneren kragen Stahltreppen und –galerien aus, die sich zu einem abwechslungsreichen Parcours durch die gesamte Bibliothek ergänzen. Während die Lesesäle einen eher introvertierten Charakter besitzen, bieten die Leseplätze entlang der Fassade im Obergeschoss einen Ausblick auf das Stadtviertel, das draußen vor dem Fenster in den kommenden Jahren entstehen wird.

Foto: Van Wang Architects

Foto: Van Wang Architects

Foto: Van Wang Architects

Foto: Van Wang Architects

Foto: Van Wang Architects

Foto: Van Wang Architects

Foto: Van Wang Architects

Foto: Van Wang Architects

Foto: Van Wang Architects

Foto: Van Wang Architects

Foto: Van Wang Architects

Foto: Van Wang Architects

Foto: Van Wang Architects

Foto: Van Wang Architects

Foto: Van Wang Architects

Foto: Van Wang Architects

Foto: Van Wang Architects

Foto: Van Wang Architects

Foto: Van Wang Architects

Axonometrisches Diagramm - Grafik: Van Wang Architects

Grundriss Erdgeschoss - Grafik: Van Wang Architects

Grundriss 1. Stock - Grafik: Van Wang Architects

Grundriss - Grafik: Van Wang Architects

Schnitt - Grafik: Van Wang Architects

https://detail-cdn.s3.eu-central-1.amazonaws.com/media/catalog/product/K/u/Kultur-schlagt-Kommerz-teaser735.jpg?width=437&height=582&store=de_de&image-type=image https://detail-cdn.s3.eu-central-1.amazonaws.com/media/catalog/product/K/u/Kultur-schlagt-Kommerz-teaser1500.jpg?width=437&height=582&store=de_de&image-type=image https://detail-cdn.s3.eu-central-1.amazonaws.com/media/catalog/product/K/u/Kultur-schlagt-Kommerz-1.jpg?width=437&height=582&store=de_de&image-type=image https://detail-cdn.s3.eu-central-1.amazonaws.com/media/catalog/product/K/u/Kultur-schlagt-Kommerz-1a.jpg?width=437&height=582&store=de_de&image-type=image https://detail-cdn.s3.eu-central-1.amazonaws.com/media/catalog/product/K/u/Kultur-schlagt-Kommerz-2.jpg?width=437&height=582&store=de_de&image-type=image https://detail-cdn.s3.eu-central-1.amazonaws.com/media/catalog/product/K/u/Kultur-schlagt-Kommerz-3.jpg?width=437&height=582&store=de_de&image-type=image https://detail-cdn.s3.eu-central-1.amazonaws.com/media/catalog/product/K/u/Kultur-schlagt-Kommerz-4.jpg?width=437&height=582&store=de_de&image-type=image https://detail-cdn.s3.eu-central-1.amazonaws.com/media/catalog/product/K/u/Kultur-schlagt-Kommerz-5.jpg?width=437&height=582&store=de_de&image-type=image https://detail-cdn.s3.eu-central-1.amazonaws.com/media/catalog/product/K/u/Kultur-schlagt-Kommerz-6.jpg?width=437&height=582&store=de_de&image-type=image https://detail-cdn.s3.eu-central-1.amazonaws.com/media/catalog/product/K/u/Kultur-schlagt-Kommerz-8.jpg?width=437&height=582&store=de_de&image-type=image https://detail-cdn.s3.eu-central-1.amazonaws.com/media/catalog/product/K/u/Kultur-schlagt-Kommerz-9.jpg?width=437&height=582&store=de_de&image-type=image https://detail-cdn.s3.eu-central-1.amazonaws.com/media/catalog/product/K/u/Kultur-schlagt-Kommerz-10.jpg?width=437&height=582&store=de_de&image-type=image https://detail-cdn.s3.eu-central-1.amazonaws.com/media/catalog/product/K/u/Kultur-schlagt-Kommerz-11.jpg?width=437&height=582&store=de_de&image-type=image https://detail-cdn.s3.eu-central-1.amazonaws.com/media/catalog/product/K/u/Kultur-schlagt-Kommerz-12.jpg?width=437&height=582&store=de_de&image-type=image https://detail-cdn.s3.eu-central-1.amazonaws.com/media/catalog/product/K/u/Kultur-schlagt-Kommerz-13.jpg?width=437&height=582&store=de_de&image-type=image https://detail-cdn.s3.eu-central-1.amazonaws.com/media/catalog/product/K/u/Kultur-schlagt-Kommerz-14.jpg?width=437&height=582&store=de_de&image-type=image https://detail-cdn.s3.eu-central-1.amazonaws.com/media/catalog/product/K/u/Kultur-schlagt-Kommerz-16.jpg?width=437&height=582&store=de_de&image-type=image https://detail-cdn.s3.eu-central-1.amazonaws.com/media/catalog/product/K/u/Kultur-schlagt-Kommerz-17.jpg?width=437&height=582&store=de_de&image-type=image https://detail-cdn.s3.eu-central-1.amazonaws.com/media/catalog/product/K/u/Kultur-schlagt-Kommerz-18.jpg?width=437&height=582&store=de_de&image-type=image https://detail-cdn.s3.eu-central-1.amazonaws.com/media/catalog/product/K/u/Kultur-schlagt-Kommerz-19.jpg?width=437&height=582&store=de_de&image-type=image https://detail-cdn.s3.eu-central-1.amazonaws.com/media/catalog/product/K/u/Kultur-schlagt-Kommerz-Axonometric_diagram.jpg?width=437&height=582&store=de_de&image-type=image https://detail-cdn.s3.eu-central-1.amazonaws.com/media/catalog/product/K/u/Kultur-schlagt-Kommerz-Grounfloor.jpg?width=437&height=582&store=de_de&image-type=image https://detail-cdn.s3.eu-central-1.amazonaws.com/media/catalog/product/K/u/Kultur-schlagt-Kommerz-first-floor.jpg?width=437&height=582&store=de_de&image-type=image https://detail-cdn.s3.eu-central-1.amazonaws.com/media/catalog/product/K/u/Kultur-schlagt-Kommerz-Mezzanine-floor.jpg?width=437&height=582&store=de_de&image-type=image https://detail-cdn.s3.eu-central-1.amazonaws.com/media/catalog/product/K/u/Kultur-schlagt-Kommerz-Section.jpg?width=437&height=582&store=de_de&image-type=image
Copyright © 2024 DETAIL. Alle Rechte vorbehalten.