Lernen in der Großstadt: Beacon School in São Paulo

Foto: Pedro Vannucchi

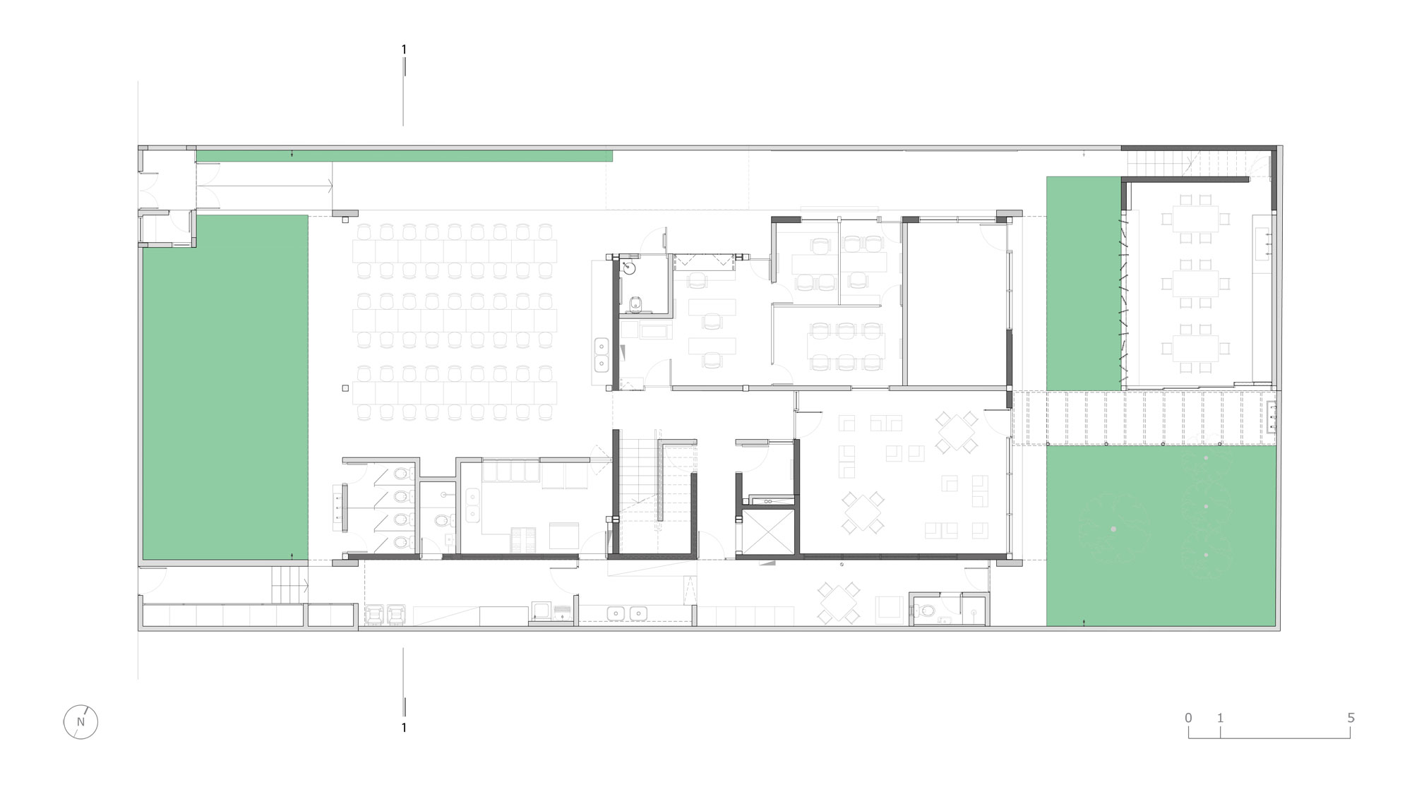
Die drei Geschosse des Schulgebäudes könnten unterschiedlicher nicht sein: Im Erdgeschoss ist nur ein Teil der Räume von Wänden umgeben. Der Speisesaal liegt zwar auch in der Grundrissfläche des Gebäudes, geht aber nahtlos in den Außenbereich über. Beton- und Holzsäulen tragen die darüber liegenden Geschosse, wobei vor allem das rötliche Holztragwerk in Kombination mit dem orangefarbenen Bodenbelag das Bild prägt.
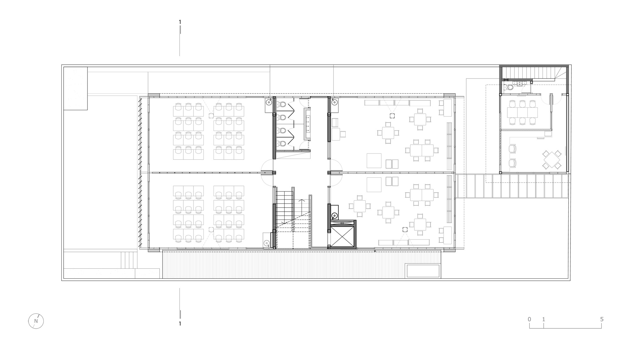
Eine Etage höher wird konzentriertes Lernen gefordert. Vier Klassenräume finden dort Platz, wobei die beiden zur Straße orientierten Zimmer mit dem gestaltgebenden Sonnenschutz versehen sind. Die Lamellen sind jeweils mittig auf einer Achse montiert, sodass sie sich individuell einstellen lassen.
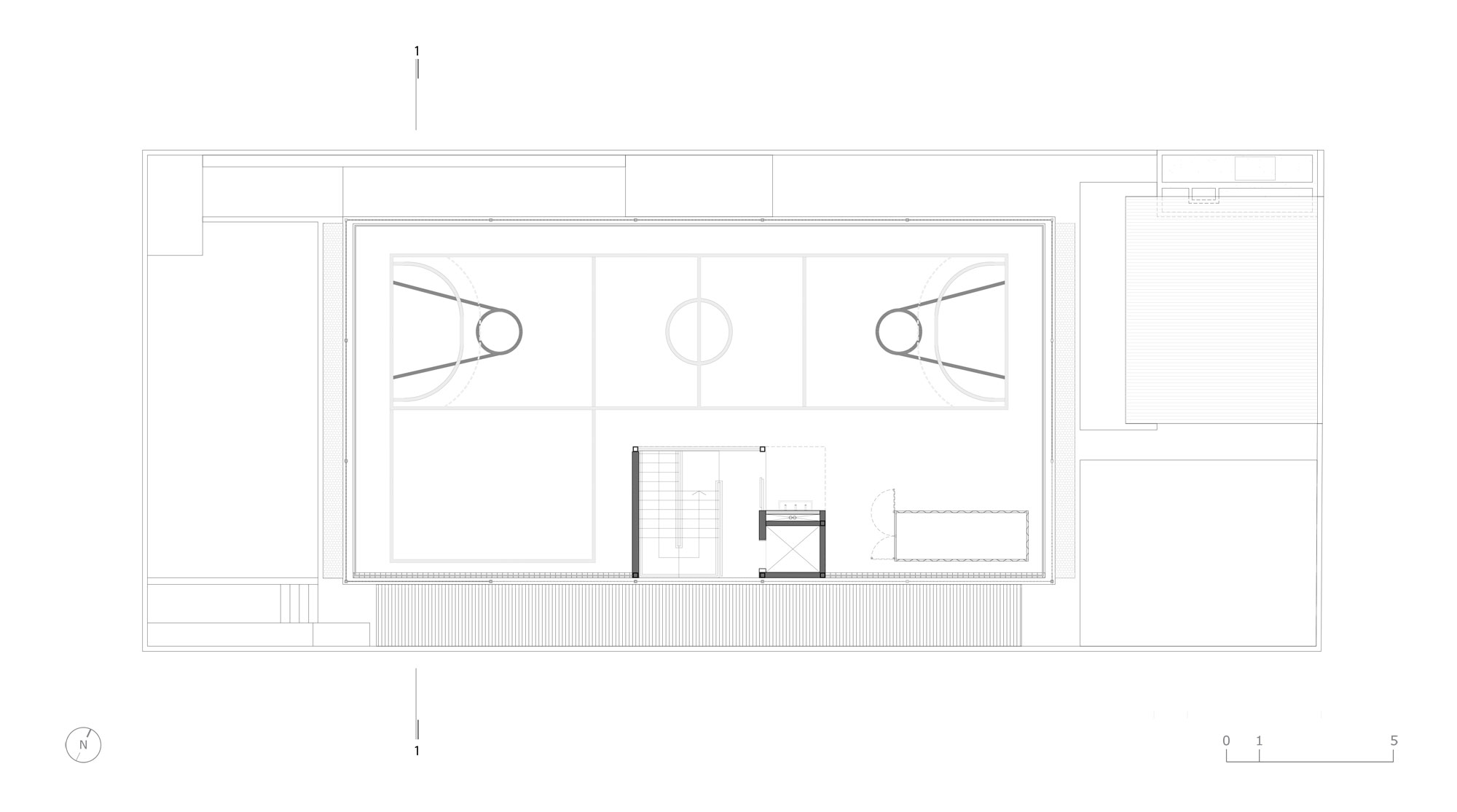
Noch eine Etage höher liegt der Sportplatz der Beacon School. Eine umlaufende Gitterkonstruktion hält die Bälle vom Ausbüxen ab und trägt außerdem den textilen Sonnenschutz, der über die gesamte Fläche gespannt ist. Die Farben der einzelnen Bestandteile sind zwar kräftig, doch durch die Wahl von Komplementärfarben und dem hellen Grau des Sichtbetons als Vermittler, entsteht ein fröhliches aber harmonisches Gesamtbild.
Im hinteren Bereich des Geländes findet noch ein kleiner, zweigeschossiger Baukörper Platz. Durch eine mit Glas gedeckte Pergola ist er mit dem großen Partner verbunden. Das Erdgeschoss ist ganz dem freien Spiel gewidmet. Die gleiche Lamellenfassade in einem breiteren Farbspektrum ist hier für die Kinder erreichbar und lädt zum Gestalten ein.
Um die 790 m² der Schule fertigzustellen, blieben nur 150 Tage, um den Schulalltag nicht zu beeinträchtigen. Das verlangte nach kreativen Lösungen, insbesondere bei der Konstruktion. Zum Warten auf die Druckfestigkeit von Ortbeton war keine Zeit, weswegen die Bodenplatten aus Fertigteilen zusammengesetzt wurden. In die Tragstruktur aus Beton wurde dann eine zweite Struktur aus Holz eingefügt, die den Körper des Schulgebäudes ausbildet. Dieses Vorgehen verlangte von allen Beteiligten maximale Präzision, machte aber überhaupt erst die pünktliche Fertigstellung möglich.

Foto: Pedro Vannucchi

Foto: Pedro Vannucchi

Foto: Pedro Vannucchi

Foto: Pedro Vanucchi

Foto: Pedro Vannucchi

Foto: Pedro Vannucchi

Foto: Pedro Vannucchi

Foto: Pedro Vannucchi

Foto: Pedro Vannucchi

Foto: Pedro Vannucchi

Foto: Pedro Vannucchi

Foto: Pedro Vannucchi

Foto: Pedro Vannucchi

Grundriss EG - Grafik: Pessoa Arquitetos, Base Urbana

Grundriss 1. OG - Grafik: Pessoa Arquitetos, Base Urbana

Grundriss Dachgeschoss - Grafik: Pessoa Arquitetos, Base Urbana

Schnitt - Grafik: Pessoa Arquitetos, Base Urbana

Weiter Informationen: Architekten: Catherine Otondo, Marina Grinover (Base Urbana), Jorge Pessoa (Pessoa Arquitetos)
Team:
 Florencia Testa, Leandro Leão, Lívia Marquez, Luisa Fecchio, Matheus Tonelli, Tânia Helou, Tiago Testa, Patricia Mieko
Fotograf: Pedro Vannucchi
Management und Konstruktion: Marcondes Ferraz Engenharia
https://detail-cdn.s3.eu-central-1.amazonaws.com/media/catalog/product/P/e/Pessoa-Beacon-T735.jpg?width=437&height=582&store=de_de&image-type=image https://detail-cdn.s3.eu-central-1.amazonaws.com/media/catalog/product/P/e/Pessoa-Beacon-T1500.jpg?width=437&height=582&store=de_de&image-type=image https://detail-cdn.s3.eu-central-1.amazonaws.com/media/catalog/product/P/e/Pessoa-Beacon-01.jpg?width=437&height=582&store=de_de&image-type=image https://detail-cdn.s3.eu-central-1.amazonaws.com/media/catalog/product/P/e/Pessoa-Beacon-02.jpg?width=437&height=582&store=de_de&image-type=image https://detail-cdn.s3.eu-central-1.amazonaws.com/media/catalog/product/P/e/Pessoa-Beacon-09.jpg?width=437&height=582&store=de_de&image-type=image https://detail-cdn.s3.eu-central-1.amazonaws.com/media/catalog/product/P/e/Pessoa-Beacon-30.jpg?width=437&height=582&store=de_de&image-type=image https://detail-cdn.s3.eu-central-1.amazonaws.com/media/catalog/product/P/e/Pessoa-Beacon-31.jpg?width=437&height=582&store=de_de&image-type=image https://detail-cdn.s3.eu-central-1.amazonaws.com/media/catalog/product/P/e/Pessoa-Beacon-39.jpg?width=437&height=582&store=de_de&image-type=image https://detail-cdn.s3.eu-central-1.amazonaws.com/media/catalog/product/P/e/Pessoa-Beacon-41.jpg?width=437&height=582&store=de_de&image-type=image https://detail-cdn.s3.eu-central-1.amazonaws.com/media/catalog/product/P/e/Pessoa-Beacon-45.jpg?width=437&height=582&store=de_de&image-type=image https://detail-cdn.s3.eu-central-1.amazonaws.com/media/catalog/product/P/e/Pessoa-Beacon-49.jpg?width=437&height=582&store=de_de&image-type=image https://detail-cdn.s3.eu-central-1.amazonaws.com/media/catalog/product/P/e/Pessoa-Beacon-100.jpg?width=437&height=582&store=de_de&image-type=image https://detail-cdn.s3.eu-central-1.amazonaws.com/media/catalog/product/P/e/Pessoa-Beacon-101.jpg?width=437&height=582&store=de_de&image-type=image https://detail-cdn.s3.eu-central-1.amazonaws.com/media/catalog/product/P/e/Pessoa-Beacon-201.jpg?width=437&height=582&store=de_de&image-type=image https://detail-cdn.s3.eu-central-1.amazonaws.com/media/catalog/product/P/e/Pessoa-Beacon-300.jpg?width=437&height=582&store=de_de&image-type=image https://detail-cdn.s3.eu-central-1.amazonaws.com/media/catalog/product/P/e/Pessoa-Beacon-GrundEG.jpg?width=437&height=582&store=de_de&image-type=image https://detail-cdn.s3.eu-central-1.amazonaws.com/media/catalog/product/P/e/Pessoa-Beacon-OG.jpg?width=437&height=582&store=de_de&image-type=image https://detail-cdn.s3.eu-central-1.amazonaws.com/media/catalog/product/P/e/Pessoa-Beacon-GrundDG.jpg?width=437&height=582&store=de_de&image-type=image https://detail-cdn.s3.eu-central-1.amazonaws.com/media/catalog/product/P/e/Pessoa-Beacon-Schnitt.jpg?width=437&height=582&store=de_de&image-type=image
Copyright © 2024 DETAIL. Alle Rechte vorbehalten.