24.09.2021 Jakob Schoof

Modulbau einmal anders: Six Square House in Bridgehampton

Foto: Lifestyle Production Group

Sechs quadratische Baukörper mit Satteldach, jeder mit rund 7 m Seitenlänge, bilden die Grundstruktur des Six Square House von Bryan Young mit seinem New Yorker Architekturbüro Young Projects in Bridgehampton. Der Ort rund 150 km östlich von Manhattan ist wie seine Nachbarorte am östlichen Ende von Long Island als Sommerfrische der wohlhabenden New Yorker bekannt.

Der Neubau ist bereits das dritte Gebäude auf dem knapp 1 Hektar großen Anwesen. An der Straße steht ein historisches Bauerngehöft aus dem Jahr 1850, das die Bauherren künftig als Gästehaus nutzen wollen. Weiter hinten auf dem Grundstück gibt es einen Pool mit Gartenhaus. Das Six Square House besetzt die Mitte des langgestreckten Grundstücks.
Das kleinste der Quadratmodule mit der Garage steht losgelöst vom Rest des Hauses an der südöstlichen Gebäudeecke. Gemeinsam mit dem Wohnzimmer flankiert es einen kleinen Eingangshof. In den übrigen fünf Modulen bilden die offene Küche, der Wohnbereich, ein separater „Family Room“ und ein überdachter Sitzplatz im Freien ein Raumkontinuum rund um einen dreieckigen Innenhof. Hinzu kommen, auf den vom Hof abgewandten Seiten, die Garderobe, das Schlafzimmer der Hausherren samt Bad und Ankleide und ein weiteres Schlafzimmer mit Bad.

Eine bewegte, holzverkleidete Dachlandschaft bindet die Module zu einem gemeinsamen Ganzen zusammen. Dach und Außenfassaden sind einheitlich mit geflammtem und acetyliertem Accoya-Holz verschalt. Für die Fassaden zum Hof, die Dachunterseite über der Terrasse und die Fensterrahmen wählten die Architekten rötliches Riesen-Lebensbaumholz (Western Red Cedar). Die Plattform, auf der sich das Haus erhebt, besteht aus poliertem Beton. Innen erhielten Wände und Decken einen weißen Gipsputz, auf dem Fußboden der Wohnräume liegt Eichenholz. Der Badfußboden, die Küchenarbeitsplatte und einige Regalböden bestehen aus weißem Marmor.

Foto: Lifestyle Production Group

Foto: Lifestyle Production Group

Foto: Alan Tansey

Foto: Alan Tansey

Foto: Alan Tansey

Foto: Alan Tansey

Foto: Alan Tansey

Foto: Alan Tansey

Foto: Alan Tansey

Foto: Alan Tansey

Foto: Alan Tansey

Foto: Lifestyle Production Group

Foto: Alan Tansey

Foto: Alan Tansey

Foto: Alan Tansey

Foto: Alan Tansey

Foto: Alan Tansey

Foto: Alan Tansey

Foto: Alan Tansey

Foto: Alan Tansey

Foto: Alan Tansey

Lageplan, Grafik: Young Projects

Grundriss, Grafik: Young Projects

Grafik: Young Projects

Grafik: Young Projects

Grafik: Young Projects

Grafik: Young Projects

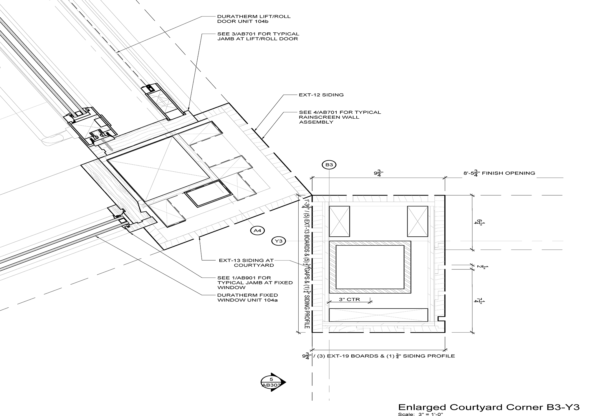
Detail, Grafik: Young Projects

Detail, Grafik: Young Projects

Detail, Grafik: Young Projects

Weitere Informationen:

Landschaftsarchitektur: Coen + Partners
Bauunternehmen: Taconic Builders

https://detail-cdn.s3.eu-central-1.amazonaws.com/media/catalog/product/0/0/00-youg-projects-Six-Square-House-00-T1500.jpg?width=437&height=582&store=de_de&image-type=image https://detail-cdn.s3.eu-central-1.amazonaws.com/media/catalog/product/0/0/00-youg-projects-Six-Square-House-00-T735_1.jpg?width=437&height=582&store=de_de&image-type=image https://detail-cdn.s3.eu-central-1.amazonaws.com/media/catalog/product/0/1/01-youg-projects-Six-Square-House-01.jpg?width=437&height=582&store=de_de&image-type=image https://detail-cdn.s3.eu-central-1.amazonaws.com/media/catalog/product/0/2/02-youg-projects-Six-Square-House-02.jpg?width=437&height=582&store=de_de&image-type=image https://detail-cdn.s3.eu-central-1.amazonaws.com/media/catalog/product/0/3/03-youg-projects-Six-Square-House-16.jpg?width=437&height=582&store=de_de&image-type=image https://detail-cdn.s3.eu-central-1.amazonaws.com/media/catalog/product/0/4/04-youg-projects-Six-Square-House-20.jpg?width=437&height=582&store=de_de&image-type=image https://detail-cdn.s3.eu-central-1.amazonaws.com/media/catalog/product/0/5/05-youg-projects-Six-Square-House-06.jpg?width=437&height=582&store=de_de&image-type=image https://detail-cdn.s3.eu-central-1.amazonaws.com/media/catalog/product/0/6/06-youg-projects-Six-Square-House-14.jpg?width=437&height=582&store=de_de&image-type=image https://detail-cdn.s3.eu-central-1.amazonaws.com/media/catalog/product/0/7/07-youg-projects-Six-Square-House-15.jpg?width=437&height=582&store=de_de&image-type=image https://detail-cdn.s3.eu-central-1.amazonaws.com/media/catalog/product/0/8/08-youg-projects-Six-Square-House-17.jpg?width=437&height=582&store=de_de&image-type=image https://detail-cdn.s3.eu-central-1.amazonaws.com/media/catalog/product/0/8/08a-youg-projects-Six-Square-House-04.jpg?width=437&height=582&store=de_de&image-type=image https://detail-cdn.s3.eu-central-1.amazonaws.com/media/catalog/product/0/9/09-youg-projects-Six-Square-House-18.jpg?width=437&height=582&store=de_de&image-type=image https://detail-cdn.s3.eu-central-1.amazonaws.com/media/catalog/product/1/0/10-youg-projects-Six-Square-House-21.jpg?width=437&height=582&store=de_de&image-type=image https://detail-cdn.s3.eu-central-1.amazonaws.com/media/catalog/product/1/1/11-youg-projects-Six-Square-House-03.jpg?width=437&height=582&store=de_de&image-type=image https://detail-cdn.s3.eu-central-1.amazonaws.com/media/catalog/product/1/1/11a-youg-projects-Six-Square-House-13.jpg?width=437&height=582&store=de_de&image-type=image https://detail-cdn.s3.eu-central-1.amazonaws.com/media/catalog/product/1/2/12-youg-projects-Six-Square-House-05.jpg?width=437&height=582&store=de_de&image-type=image https://detail-cdn.s3.eu-central-1.amazonaws.com/media/catalog/product/1/3/13-youg-projects-Six-Square-House-19.jpg?width=437&height=582&store=de_de&image-type=image https://detail-cdn.s3.eu-central-1.amazonaws.com/media/catalog/product/1/4/14-youg-projects-Six-Square-House-07.jpg?width=437&height=582&store=de_de&image-type=image https://detail-cdn.s3.eu-central-1.amazonaws.com/media/catalog/product/1/5/15-youg-projects-Six-Square-House-08.jpg?width=437&height=582&store=de_de&image-type=image https://detail-cdn.s3.eu-central-1.amazonaws.com/media/catalog/product/1/6/16-youg-projects-Six-Square-House-09.jpg?width=437&height=582&store=de_de&image-type=image https://detail-cdn.s3.eu-central-1.amazonaws.com/media/catalog/product/1/7/17-youg-projects-Six-Square-House-10.jpg?width=437&height=582&store=de_de&image-type=image https://detail-cdn.s3.eu-central-1.amazonaws.com/media/catalog/product/1/8/18-youg-projects-Six-Square-House-11.jpg?width=437&height=582&store=de_de&image-type=image https://detail-cdn.s3.eu-central-1.amazonaws.com/media/catalog/product/1/9/19-youg-projects-Six-Square-House-12.jpg?width=437&height=582&store=de_de&image-type=image https://detail-cdn.s3.eu-central-1.amazonaws.com/media/catalog/product/2/0/20-youg-projects-Six-Square-House-24.jpg?width=437&height=582&store=de_de&image-type=image https://detail-cdn.s3.eu-central-1.amazonaws.com/media/catalog/product/2/0/20-youg-projects-Six-Square-House-25.jpg?width=437&height=582&store=de_de&image-type=image https://detail-cdn.s3.eu-central-1.amazonaws.com/media/catalog/product/2/0/20-youg-projects-Six-Square-House-26.jpg?width=437&height=582&store=de_de&image-type=image https://detail-cdn.s3.eu-central-1.amazonaws.com/media/catalog/product/2/0/20-youg-projects-Six-Square-House-27.jpg?width=437&height=582&store=de_de&image-type=image https://detail-cdn.s3.eu-central-1.amazonaws.com/media/catalog/product/2/0/20-youg-projects-Six-Square-House-28.jpg?width=437&height=582&store=de_de&image-type=image https://detail-cdn.s3.eu-central-1.amazonaws.com/media/catalog/product/2/0/20-youg-projects-Six-Square-House-29.jpg?width=437&height=582&store=de_de&image-type=image https://detail-cdn.s3.eu-central-1.amazonaws.com/media/catalog/product/2/0/20-youg-projects-Six-Square-House-30.jpg?width=437&height=582&store=de_de&image-type=image https://detail-cdn.s3.eu-central-1.amazonaws.com/media/catalog/product/2/0/20-youg-projects-Six-Square-House-31.jpg?width=437&height=582&store=de_de&image-type=image https://detail-cdn.s3.eu-central-1.amazonaws.com/media/catalog/product/2/0/20-youg-projects-Six-Square-House-32.jpg?width=437&height=582&store=de_de&image-type=image
Copyright © 2024 DETAIL. Alle Rechte vorbehalten.