21.07.2016 Annika Schröck

Sanfte Wellen: Stall und Wohnhaus von Casey Brown Architecture

Foto: Rhys Holland

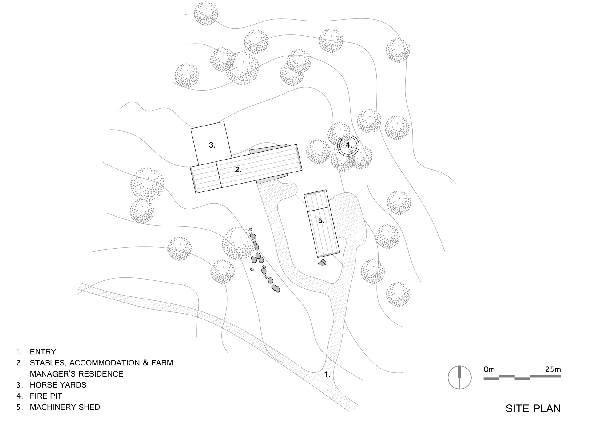
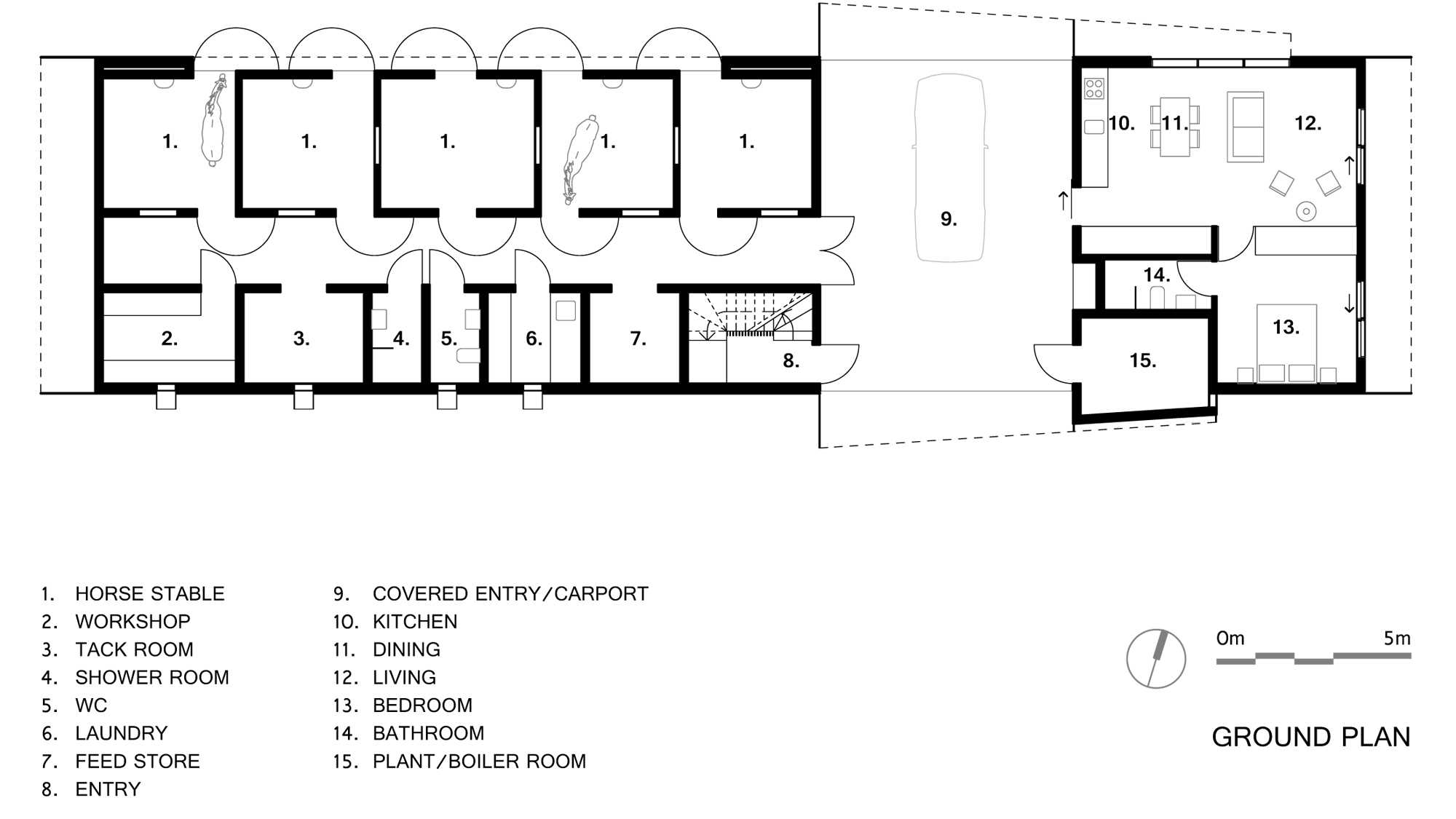
Nicht weit von der Stadt Thredbo in den Snowy Mountains setzt sich das Farmensemble aus zwei Baukörpern zusammen: Das langgezogene Ost-West ausgerichtete Hauptgebäude wird östlich von einem kleineren Maschinenhaus begrenzt, welches die kalten winterlichen Winde von dieser Seite abhalten soll. Das Wohn- und Stallgebäude wird im Erdgeschoss von einem großen Einschnitt durchbrochen, der die einzelnen Funktionen innerhalb des Baukörpers voneinander trennt. Der Durchgang dient gleichzeitig als überdachter Stellplatz für Fahrzeuge und Pferde, als praktische Lagerfläche oder als großzügiger Eingangsbereich.

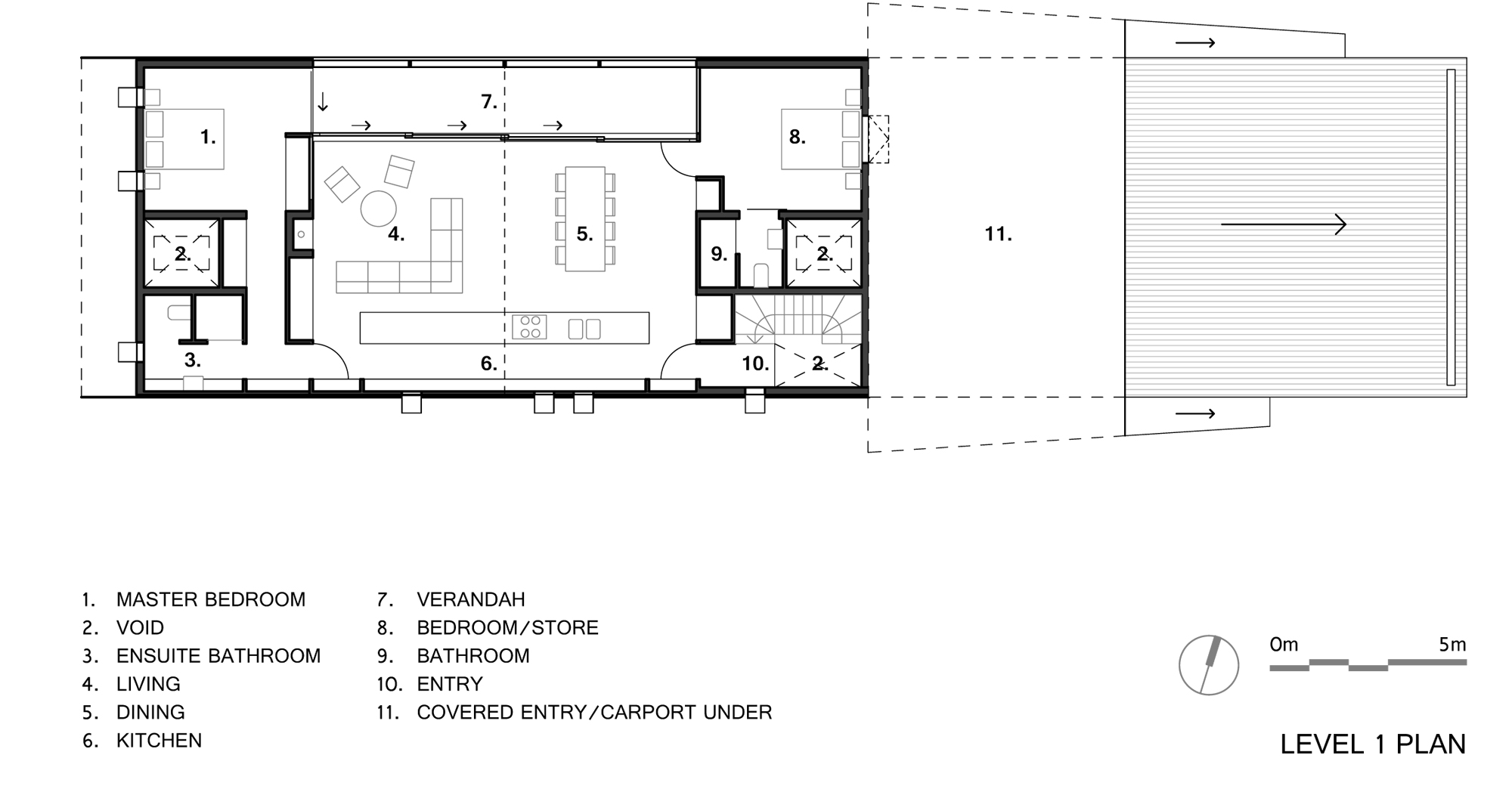
Während sich auf der rechten Seite des Eingangsbereichs die Wohnung des Farmmanagers befindet, liegen auf der linken Seite die Ställe für die Pferde sowie die dazugehörigen Funktionsräume. Oberhalb davon gibt es eine weitere Wohnung mit zwei Schlafzimmern, die nordseitig von einer großzügigen Loggia dominiert wird. Von hier aus eröffnet sich ein weitläufiger Ausblick in die hügelige Landschaft des Buschlandes. Die Südseite des Baukörpers wird lediglich von einer Vielzahl kleiner, quadratischer Öffnungen durchbrochen, die der Fassade eine spielerische Note verleihen.

Die beiden Farmgebäude werden vollständig von einer Hülle aus silbernem Wellblech umgeben, die den Baukörper optimal in Szene setzt und ihm ein homogenes Äußeres verleiht. An ausgesuchten Stellen wird die Fassade mit einer Verkleidung aus Cortenstahl unterbrochen, die nicht nur einen optischen Akzent setzt, sondern gleichzeitig Schutz vor Buschbränden bieten soll. Im Inneren unterstreichen raue Materialien wie Stahl und Beton den landwirtschaftlichen Charakter der Anlage. Hölzerne Einbauten in den Wohnbereichen sorgen für Wärme und Behaglichkeit.

Die spezifische Form der Farmgebäude bildet nicht nur eine Anlehnung an die typischen landwirtschaftlichen Bauten der Region, sondern ist auch Teil eines passiven Energiekonzepts. Die Form der Baukörper und das flach geneigte Dach bilden eine Antwort auf extreme Wetterbedingungen wie Schnee und Wind. Zurückversetzte Freiflächen und tiefe Öffnungen bieten konstruktiven Sonnenschutz, eine Regenwassersammelanlage versorgt das Farmgelände mit ausreichend Wasser. So wird der regionaltypischen Bauweise des Landes und der Typologie »Stall« mit einer modernen Formensprache und langlebigen Materialien neues Leben eingehaucht – es entsteht eine außergewöhnliche Unterkunft für Mensch und Tier.

Foto: Rhys Holland

Foto: Rhys Holland

Foto: Rhys Holland

Foto: Rhys Holland

Foto: Rhys Holland

Foto: Rhys Holland

Foto: Rhys Holland

Foto: Rhys Holland

Foto: Rhys Holland

Foto: Rhys Holland

Foto: Rhys Holland

Foto: Rhys Holland

Foto: Rhys Holland

Foto: Rhys Holland

Foto: Rhys Holland

Foto: Rhys Holland

Foto: Rhys Holland

Foto: Rhys Holland

Foto: Rhys Holland

Foto: Rhys Holland

Grundriss EG, Grafik: Casey Brown Architecture

Grundriss 1. OG, Grafik: Casey Brown Architecture

Lageplan, Grafik: Casey Brown Architecture

Schnitt, Grafik: Casey Brown Architecture

weitere Informationen: Entwurf: Rob Brown
Ausführung: Vince Myson und Siobhan Berkery, Myson and Berkery Architects
Ingenieur: Ken Murtagh, Murtagh Bond
Bauunternehmer: Bellevarde Constructions
https://detail-cdn.s3.eu-central-1.amazonaws.com/media/catalog/product/C/a/CaseyBrown-CrackenbackStables-teaser-gross-v3.jpg?width=437&height=582&store=de_de&image-type=image https://detail-cdn.s3.eu-central-1.amazonaws.com/media/catalog/product/C/a/CaseyBrown-CrackenbackStables-teaser-klein-v3.jpg?width=437&height=582&store=de_de&image-type=image https://detail-cdn.s3.eu-central-1.amazonaws.com/media/catalog/product/C/a/CaseyBrown-CrackenbackStables-abb1.jpg?width=437&height=582&store=de_de&image-type=image https://detail-cdn.s3.eu-central-1.amazonaws.com/media/catalog/product/C/a/CaseyBrown-CrackenbackStables-abb2.jpg?width=437&height=582&store=de_de&image-type=image https://detail-cdn.s3.eu-central-1.amazonaws.com/media/catalog/product/C/a/CaseyBrown-CrackenbackStables-abb3.jpg?width=437&height=582&store=de_de&image-type=image https://detail-cdn.s3.eu-central-1.amazonaws.com/media/catalog/product/C/a/CaseyBrown-CrackenbackStables-abb4.jpg?width=437&height=582&store=de_de&image-type=image https://detail-cdn.s3.eu-central-1.amazonaws.com/media/catalog/product/C/a/CaseyBrown-CrackenbackStables-abb5.jpg?width=437&height=582&store=de_de&image-type=image https://detail-cdn.s3.eu-central-1.amazonaws.com/media/catalog/product/C/a/CaseyBrown-CrackenbackStables-abb6.jpg?width=437&height=582&store=de_de&image-type=image https://detail-cdn.s3.eu-central-1.amazonaws.com/media/catalog/product/C/a/CaseyBrown-CrackenbackStables-abb7.jpg?width=437&height=582&store=de_de&image-type=image https://detail-cdn.s3.eu-central-1.amazonaws.com/media/catalog/product/C/a/CaseyBrown-CrackenbackStables-abb8.jpg?width=437&height=582&store=de_de&image-type=image https://detail-cdn.s3.eu-central-1.amazonaws.com/media/catalog/product/C/a/CaseyBrown-CrackenbackStables-abb9.jpg?width=437&height=582&store=de_de&image-type=image https://detail-cdn.s3.eu-central-1.amazonaws.com/media/catalog/product/C/a/CaseyBrown-CrackenbackStables-abb10.jpg?width=437&height=582&store=de_de&image-type=image https://detail-cdn.s3.eu-central-1.amazonaws.com/media/catalog/product/C/a/CaseyBrown-CrackenbackStables-abb11.jpg?width=437&height=582&store=de_de&image-type=image https://detail-cdn.s3.eu-central-1.amazonaws.com/media/catalog/product/C/a/CaseyBrown-CrackenbackStables-abb12.jpg?width=437&height=582&store=de_de&image-type=image https://detail-cdn.s3.eu-central-1.amazonaws.com/media/catalog/product/C/a/CaseyBrown-CrackenbackStables-abb13.jpg?width=437&height=582&store=de_de&image-type=image https://detail-cdn.s3.eu-central-1.amazonaws.com/media/catalog/product/C/a/CaseyBrown-CrackenbackStables-abb14.jpg?width=437&height=582&store=de_de&image-type=image https://detail-cdn.s3.eu-central-1.amazonaws.com/media/catalog/product/C/a/CaseyBrown-CrackenbackStables-abb15.jpg?width=437&height=582&store=de_de&image-type=image https://detail-cdn.s3.eu-central-1.amazonaws.com/media/catalog/product/C/a/CaseyBrown-CrackenbackStables-abb16.jpg?width=437&height=582&store=de_de&image-type=image https://detail-cdn.s3.eu-central-1.amazonaws.com/media/catalog/product/C/a/CaseyBrown-CrackenbackStables-abb17.jpg?width=437&height=582&store=de_de&image-type=image https://detail-cdn.s3.eu-central-1.amazonaws.com/media/catalog/product/C/a/CaseyBrown-CrackenbackStables-abb18.jpg?width=437&height=582&store=de_de&image-type=image https://detail-cdn.s3.eu-central-1.amazonaws.com/media/catalog/product/C/a/CaseyBrown-CrackenbackStables-abb19.jpg?width=437&height=582&store=de_de&image-type=image https://detail-cdn.s3.eu-central-1.amazonaws.com/media/catalog/product/C/a/CaseyBrown-CrackenbackStables-abb20.jpg?width=437&height=582&store=de_de&image-type=image https://detail-cdn.s3.eu-central-1.amazonaws.com/media/catalog/product/C/a/CaseyBrown-CrackenbackStables-gr-eg.jpg?width=437&height=582&store=de_de&image-type=image https://detail-cdn.s3.eu-central-1.amazonaws.com/media/catalog/product/C/a/CaseyBrown-CrackenbackStables-gr-og1.jpg?width=437&height=582&store=de_de&image-type=image https://detail-cdn.s3.eu-central-1.amazonaws.com/media/catalog/product/C/a/CaseyBrown-CrackenbackStables-lageplan.jpg?width=437&height=582&store=de_de&image-type=image https://detail-cdn.s3.eu-central-1.amazonaws.com/media/catalog/product/C/a/CaseyBrown-CrackenbackStables-sc.jpg?width=437&height=582&store=de_de&image-type=image
Copyright © 2024 DETAIL. Alle Rechte vorbehalten.