Trügerische Hülle: Altes Geschäftshaus mit neuem Kern in Peking

Foto: CreatAR Images(Luo Juncai)

Der eingeschossige Bau mit seinen gemauerten Rundbögen und abgewetzten, roten Türen hat Patina angesetzt. Die Collage, die sich zur Straßenseite präsentiert, wird mit Stromzählern, Feuerlöschern und Straßenbeleuchtung im Vordergrund sowie Dachaufbauten und Wohnblöcken im Hintergrund vervollständigt. Doch die Fassade ist nach dem Umbau nur noch Kulisse. Es fehlen die Fenster und auch das Dach wurde entfernt. Alles was bleibt ist eine Wandscheibe, deren Patina von den Architekten ganz bewusst nicht entfernt wurde. Stattdessen geben moderne Details aus transparenten Ziegelsteinen einen ersten Hinweis darauf, dass sich hinter der Fassade neues Leben angesiedelt hat.
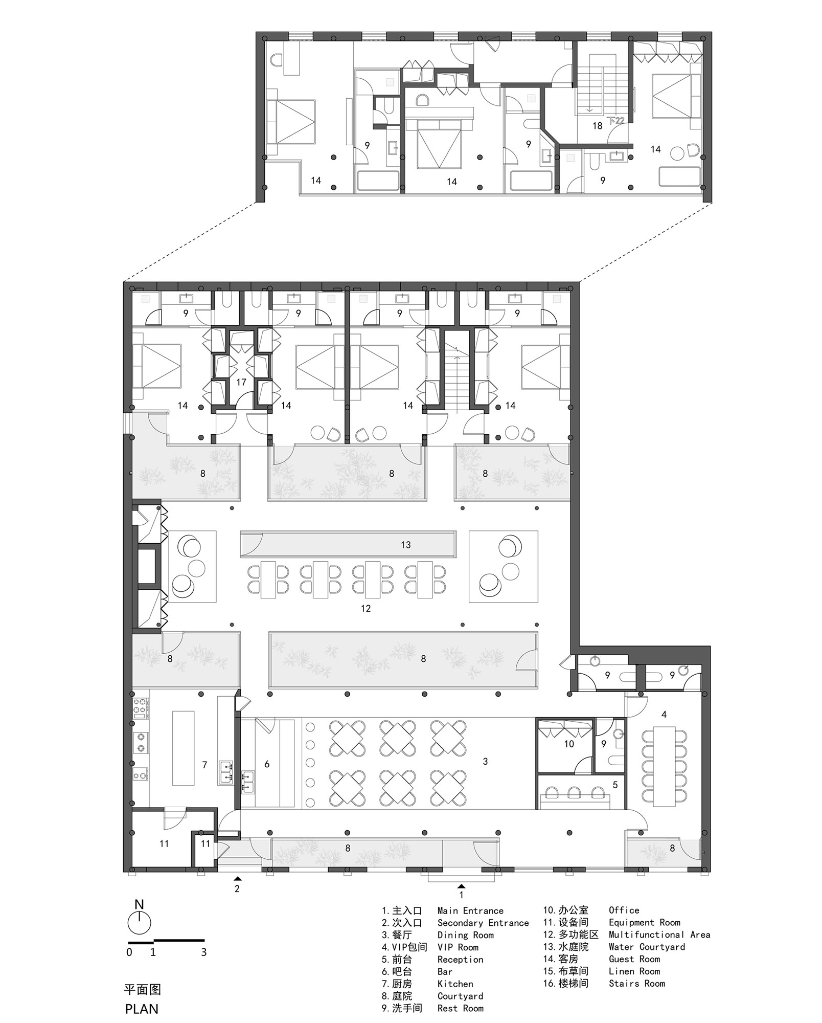
Einst bestand das Geschäftshaus aus einem rechteckigen Hof, vorne und seitlich von eingeschossigen Volumen begrenzt. Hinten schließt damals wie heute ein zweigeschossiger Riegel das Grundstück. Nach dem Umbau durch Archstudio ist der Raum in mehrere Zonen gegliedert, die beim Durchqueren zunehmend privater werden. Vier schmale, verglaste Höfe, die parallel zur Straße liegen, filtern den Verkehr durch das Gebäude, wodurch das Projekt zu seinem Namen «Layering Courtyard« kam. Sie sind mit Bambus bepflanzt, rundherum verglast und versorgen die Innenräume mit Tageslicht. Im Süden, direkt hinter der Fassade, liegt die Rezeption für sieben Gästezimmer. In der gleichen Schicht reihen sich – von Westen nach Osten gelesen – Küche, Bar, ein öffentlicher Versammlungsraum und ganz im Osten ein Zimmer für private Veranstaltungen aneinander. Ein Hof schließt diese Schicht räumlich ab. Transluzente Möbel und polierter Edelstahl geben dem darauf folgenden Mehrzweckraum eine sehr leichte, geradezu flüchtige Erscheinung. Er liegt zwischen zwei Höfen und verfügt über ein Wasserbassin, das von Glaswänden umgeben ist. Die Vielfalt der spiegelnden und durchlässigen Materialien lässt die Konturen des Raumes verschwimmen.  Durch den letzten Hof hindurch gelangt man in die mit Eiche ausgekleideten Flure und Treppenräume vor den Gästezimmern. Jedes der vier Zimmer im Erdgeschoss hat einen eigenen Zugang zu den davor liegenden Höfen. Die drei Zimmer im Obergeschoss gewähren mittels raumhoher Fenster einen Ausblick über die Dächer der Nachbarschaft. Die Architekten haben außerdem die Holzstruktur des Bestands so gut es ging bewahrt, sodass die Gäste nun unter dem kunstvoll gefügten Dachstuhl schlafen.
Das Haus mit den Höfen soll ein Ruhepol im belebten Hutong-Viertel sein. Der Versammlungsraum im Süden wird als öffentlicher Raum für Ausstellungen oder andere Veranstaltungen zur freien Verfügung gestellt.

Foto: CreatAR Images(Luo Juncai)

Foto: CreatAR Images(Luo Juncai)

Foto: CreatAR Images(Luo Juncai)

Foto: CreatAR Images(Luo Juncai)

Foto: CreatAR Images(Luo Juncai)

Foto: CreatAR Images(Luo Juncai)

Foto: Jin Weiqi

Foto: CreatAR Images(Luo Juncai)

Foto: CreatAR Images(Luo Juncai)

Foto: CreatAR Images(Luo Juncai)

Foto: CreatAR Images(Luo Juncai)

Foto: CreatAR Images(Luo Juncai)

Foto: Jin Weiqi

Foto: CreatAR Images(Luo Juncai)

Foto: CreatAR Images(Luo Juncai)

Foto: CreatAR Images(Luo Juncai)

Foto: CreatAR Images(Luo Juncai)

Foto: CreatAR Images(Luo Juncai)

Foto: CreatAR Images(Luo Juncai)

Foto: CreatAR Images(Luo Juncai)

Foto: CreatAR Images(Luo Juncai)

Bestandsfoto: ARCHSTUDIO

Grafik: ARCHSTUDIO

Grundriss - Grafik: ARCHSTUDIO

Schnitt - Grafik: ARCHSTUDIO

Detailschnitt - Grafik: ARCHSTUDIO

Modellfoto: ARCHSTUDIO

Foto: CreatAR Images(Luo Juncai)

Foto: CreatAR Images(Luo Juncai)

Foto: CreatAR Images(Luo Juncai)

Foto: CreatAR Images(Luo Juncai)

Foto: CreatAR Images(Luo Juncai)

Foto: CreatAR Images(Luo Juncai)

Foto: Jin Weiqi

Foto: CreatAR Images(Luo Juncai)

Foto: CreatAR Images(Luo Juncai)

Foto: CreatAR Images(Luo Juncai)

Foto: CreatAR Images(Luo Juncai)

Foto: CreatAR Images(Luo Juncai)

Foto: Jin Weiqi

Foto: CreatAR Images(Luo Juncai)

Foto: CreatAR Images(Luo Juncai)

Foto: CreatAR Images(Luo Juncai)

Foto: CreatAR Images(Luo Juncai)

Foto: CreatAR Images(Luo Juncai)

Foto: CreatAR Images(Luo Juncai)

Foto: CreatAR Images(Luo Juncai)

Foto: CreatAR Images(Luo Juncai)

Bestandsfoto: ARCHSTUDIO

Grafik: ARCHSTUDIO

Grundriss - Grafik: ARCHSTUDIO

Schnitt - Grafik: ARCHSTUDIO

Detailschnitt - Grafik: ARCHSTUDIO

Modellfoto: ARCHSTUDIO

Foto: CreatAR Images(Luo Juncai)

Foto: CreatAR Images(Luo Juncai)

Foto: CreatAR Images(Luo Juncai)

Foto: CreatAR Images(Luo Juncai)

Foto: CreatAR Images(Luo Juncai)

Foto: CreatAR Images(Luo Juncai)

Foto: Jin Weiqi

Foto: CreatAR Images(Luo Juncai)

Foto: CreatAR Images(Luo Juncai)

Foto: CreatAR Images(Luo Juncai)

Foto: CreatAR Images(Luo Juncai)

Foto: CreatAR Images(Luo Juncai)

Foto: Jin Weiqi

Foto: CreatAR Images(Luo Juncai)

Foto: CreatAR Images(Luo Juncai)

Foto: CreatAR Images(Luo Juncai)

Foto: CreatAR Images(Luo Juncai)

Foto: CreatAR Images(Luo Juncai)

Foto: CreatAR Images(Luo Juncai)

Foto: CreatAR Images(Luo Juncai)

Foto: CreatAR Images(Luo Juncai)

Bestandsfoto: ARCHSTUDIO

Grafik: ARCHSTUDIO

Grundriss - Grafik: ARCHSTUDIO

Schnitt - Grafik: ARCHSTUDIO

Detailschnitt - Grafik: ARCHSTUDIO

Modellfoto: ARCHSTUDIO

Foto: CreatAR Images(Luo Juncai)

Foto: CreatAR Images(Luo Juncai)

Foto: CreatAR Images(Luo Juncai)

Foto: CreatAR Images(Luo Juncai)

Foto: CreatAR Images(Luo Juncai)

Foto: CreatAR Images(Luo Juncai)

Foto: Jin Weiqi

Foto: CreatAR Images(Luo Juncai)

Foto: CreatAR Images(Luo Juncai)

Foto: CreatAR Images(Luo Juncai)

Foto: CreatAR Images(Luo Juncai)

Foto: CreatAR Images(Luo Juncai)

Foto: Jin Weiqi

Foto: CreatAR Images(Luo Juncai)

Foto: CreatAR Images(Luo Juncai)

Foto: CreatAR Images(Luo Juncai)

Foto: CreatAR Images(Luo Juncai)

Foto: CreatAR Images(Luo Juncai)

Foto: CreatAR Images(Luo Juncai)

Foto: CreatAR Images(Luo Juncai)

Foto: CreatAR Images(Luo Juncai)

Bestandsfoto: ARCHSTUDIO

Grafik: ARCHSTUDIO

Grundriss - Grafik: ARCHSTUDIO

Schnitt - Grafik: ARCHSTUDIO

Detailschnitt - Grafik: ARCHSTUDIO

Modellfoto: ARCHSTUDIO

Foto: CreatAR Images(Luo Juncai)

Foto: CreatAR Images(Luo Juncai)

Foto: CreatAR Images(Luo Juncai)

Foto: CreatAR Images(Luo Juncai)

Foto: CreatAR Images(Luo Juncai)

Foto: CreatAR Images(Luo Juncai)

Foto: Jin Weiqi

Foto: CreatAR Images(Luo Juncai)

Foto: CreatAR Images(Luo Juncai)

Foto: CreatAR Images(Luo Juncai)

Foto: CreatAR Images(Luo Juncai)

Foto: CreatAR Images(Luo Juncai)

Foto: Jin Weiqi

Foto: CreatAR Images(Luo Juncai)

Foto: CreatAR Images(Luo Juncai)

Foto: CreatAR Images(Luo Juncai)

Foto: CreatAR Images(Luo Juncai)

Foto: CreatAR Images(Luo Juncai)

Foto: CreatAR Images(Luo Juncai)

Foto: CreatAR Images(Luo Juncai)

Foto: CreatAR Images(Luo Juncai)

Bestandsfoto: ARCHSTUDIO

Grafik: ARCHSTUDIO

Grundriss - Grafik: ARCHSTUDIO

Schnitt - Grafik: ARCHSTUDIO

Detailschnitt - Grafik: ARCHSTUDIO

Modellfoto: ARCHSTUDIO

https://detail-cdn.s3.eu-central-1.amazonaws.com/media/catalog/product/A/r/Archstudio-Layering-Courtyard-T735.jpg?width=437&height=582&store=de_de&image-type=image https://detail-cdn.s3.eu-central-1.amazonaws.com/media/catalog/product/A/r/Archstudio-Layering-Courtyard-T1500.jpg?width=437&height=582&store=de_de&image-type=image https://detail-cdn.s3.eu-central-1.amazonaws.com/media/catalog/product/A/r/Archstudio-Layering-Courtyard-1.jpg?width=437&height=582&store=de_de&image-type=image https://detail-cdn.s3.eu-central-1.amazonaws.com/media/catalog/product/A/r/Archstudio-Layering-Courtyard-2.jpg?width=437&height=582&store=de_de&image-type=image https://detail-cdn.s3.eu-central-1.amazonaws.com/media/catalog/product/A/r/Archstudio-Layering-Courtyard-3.jpg?width=437&height=582&store=de_de&image-type=image https://detail-cdn.s3.eu-central-1.amazonaws.com/media/catalog/product/A/r/Archstudio-Layering-Courtyard-4.jpg?width=437&height=582&store=de_de&image-type=image https://detail-cdn.s3.eu-central-1.amazonaws.com/media/catalog/product/A/r/Archstudio-Layering-Courtyard-5.jpg?width=437&height=582&store=de_de&image-type=image https://detail-cdn.s3.eu-central-1.amazonaws.com/media/catalog/product/A/r/Archstudio-Layering-Courtyard-6.jpg?width=437&height=582&store=de_de&image-type=image https://detail-cdn.s3.eu-central-1.amazonaws.com/media/catalog/product/A/r/Archstudio-Layering-Courtyard-7.jpg?width=437&height=582&store=de_de&image-type=image https://detail-cdn.s3.eu-central-1.amazonaws.com/media/catalog/product/A/r/Archstudio-Layering-Courtyard-8.jpg?width=437&height=582&store=de_de&image-type=image https://detail-cdn.s3.eu-central-1.amazonaws.com/media/catalog/product/A/r/Archstudio-Layering-Courtyard-9.jpg?width=437&height=582&store=de_de&image-type=image https://detail-cdn.s3.eu-central-1.amazonaws.com/media/catalog/product/A/r/Archstudio-Layering-Courtyard-10.jpg?width=437&height=582&store=de_de&image-type=image https://detail-cdn.s3.eu-central-1.amazonaws.com/media/catalog/product/A/r/Archstudio-Layering-Courtyard-11.jpg?width=437&height=582&store=de_de&image-type=image https://detail-cdn.s3.eu-central-1.amazonaws.com/media/catalog/product/A/r/Archstudio-Layering-Courtyard-12.jpg?width=437&height=582&store=de_de&image-type=image https://detail-cdn.s3.eu-central-1.amazonaws.com/media/catalog/product/A/r/Archstudio-Layering-Courtyard-13.jpg?width=437&height=582&store=de_de&image-type=image https://detail-cdn.s3.eu-central-1.amazonaws.com/media/catalog/product/A/r/Archstudio-Layering-Courtyard-14.jpg?width=437&height=582&store=de_de&image-type=image https://detail-cdn.s3.eu-central-1.amazonaws.com/media/catalog/product/A/r/Archstudio-Layering-Courtyard-15.jpg?width=437&height=582&store=de_de&image-type=image https://detail-cdn.s3.eu-central-1.amazonaws.com/media/catalog/product/A/r/Archstudio-Layering-Courtyard-16.jpg?width=437&height=582&store=de_de&image-type=image https://detail-cdn.s3.eu-central-1.amazonaws.com/media/catalog/product/A/r/Archstudio-Layering-Courtyard-17.jpg?width=437&height=582&store=de_de&image-type=image https://detail-cdn.s3.eu-central-1.amazonaws.com/media/catalog/product/A/r/Archstudio-Layering-Courtyard-18.jpg?width=437&height=582&store=de_de&image-type=image https://detail-cdn.s3.eu-central-1.amazonaws.com/media/catalog/product/A/r/Archstudio-Layering-Courtyard-19.jpg?width=437&height=582&store=de_de&image-type=image https://detail-cdn.s3.eu-central-1.amazonaws.com/media/catalog/product/A/r/Archstudio-Layering-Courtyard-20.jpg?width=437&height=582&store=de_de&image-type=image https://detail-cdn.s3.eu-central-1.amazonaws.com/media/catalog/product/A/r/Archstudio-Layering-Courtyard-21.jpg?width=437&height=582&store=de_de&image-type=image https://detail-cdn.s3.eu-central-1.amazonaws.com/media/catalog/product/A/r/Archstudio-Layering-Courtyard-22.jpg?width=437&height=582&store=de_de&image-type=image https://detail-cdn.s3.eu-central-1.amazonaws.com/media/catalog/product/A/r/Archstudio-Layering-Courtyard-23.jpg?width=437&height=582&store=de_de&image-type=image https://detail-cdn.s3.eu-central-1.amazonaws.com/media/catalog/product/A/r/Archstudio-Layering-Courtyard-24.jpg?width=437&height=582&store=de_de&image-type=image https://detail-cdn.s3.eu-central-1.amazonaws.com/media/catalog/product/A/r/Archstudio-Layering-Courtyard-25.jpg?width=437&height=582&store=de_de&image-type=image https://detail-cdn.s3.eu-central-1.amazonaws.com/media/catalog/product/A/r/Archstudio-Layering-Courtyard-26.jpg?width=437&height=582&store=de_de&image-type=image https://detail-cdn.s3.eu-central-1.amazonaws.com/media/catalog/product/A/r/Archstudio-Layering-Courtyard-27.jpg?width=437&height=582&store=de_de&image-type=image
Copyright © 2024 DETAIL. Alle Rechte vorbehalten.