Von der Rolle: Wohnhaus mit zweiter Haut auf Zypern

Foto: Maria Efthymiou

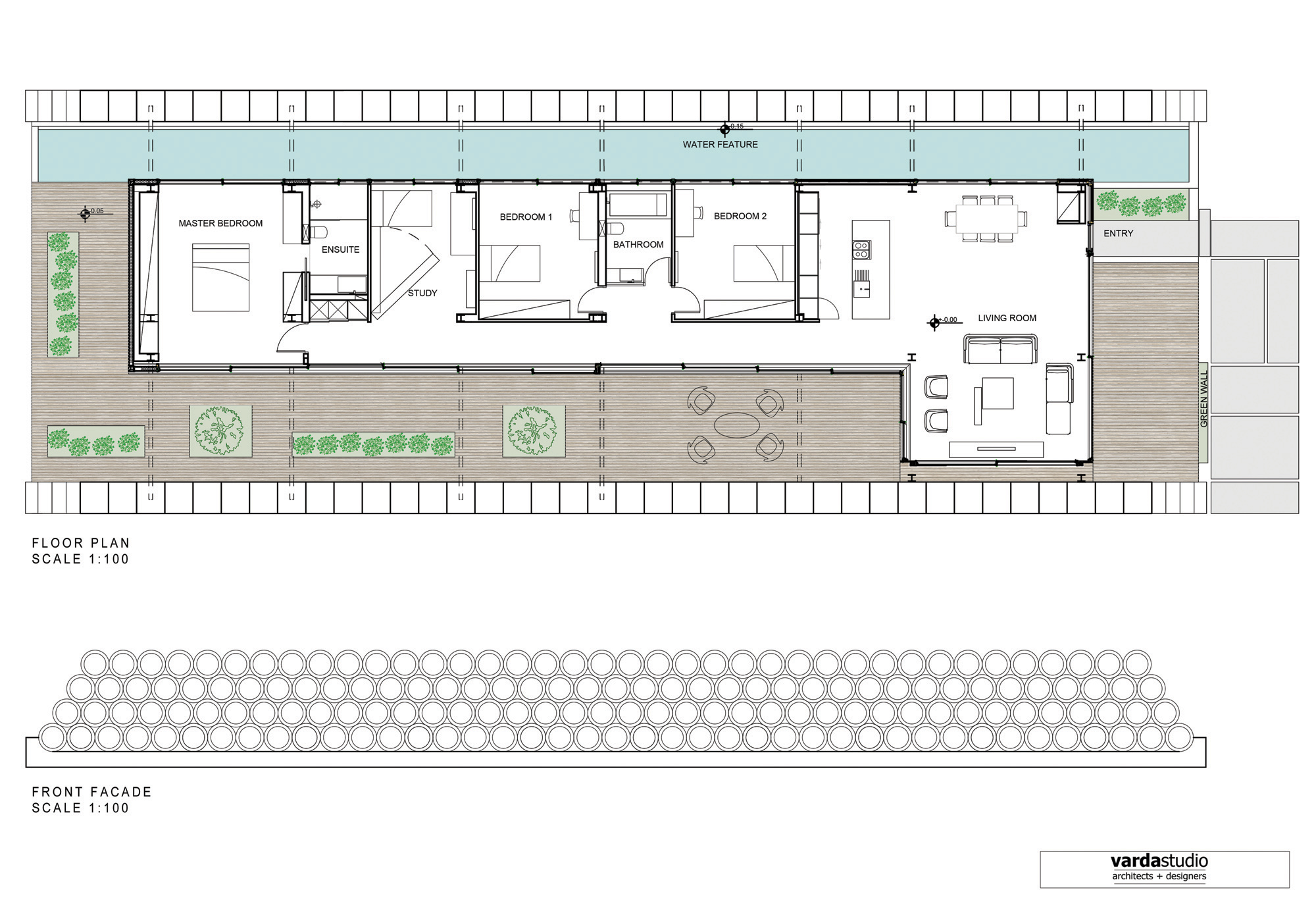
Allein auf weiter Flur steht das Wohnhaus von Vardastudio. Nur ein Nachbar im Norden leistet ihm Gesellschaft, weshalb seine Extravaganz voll zur Geltung kommt. Dabei sind die Materialien, aus denen das Haus entstanden ist, keineswegs außergewöhnlich. Es handelt sich um Betonrohre, wie sie für Abwasserkanäle verlegt werden, Stahlträger mit gewöhnlichem Doppel-T-Profil und Glas, das nun seit mehr als hundert Jahren auch kein überraschendes Baumaterial mehr ist.
Was irritiert, und bei näherem Hinsehen fasziniert, ist die Anwendung dieser Baustoffe. Das Haus selbst hat die Form eines Riegels, dessen lange Seiten vollständig verglast sind. Doch auch die intransparenten Wände sind außen mit weißem Glas verkleidet. Das tragende Stahlgerüst kommt auf dem Dach zum Vorschein, wo einige der Träger über die umliegende Terrasse auskragen. Der Clou jedoch ist die zweite Hülle aus gestapelten Betonrohren. Wie im Lager liegt jeweils eine haushohe Schicht vor der Nord- und eine vor der Südfassade. Diese dicke, perforierte Schicht filtert die Blicke in beide Richtungen, schützt das Haus vor der Witterung und bekleidet es in gewisser Weise. Die auskragenden Stahlträger liegen zudem auf diesen Scheiben auf, wodurch das ohnehin filigrane Haus an ihnen zu hängen scheint.
Der Raum zwischen den Röhren und dem Haus bietet außerdem Platz für eine Terrasse auf der Südseite, die mit Beeten und kleinen Bäumen durchzogen ist. Dank der raumhohen Glastüren lässt sich im Sommer der Wohnbereich nach Außen ausweiten. Aufgereiht an der Nordseite liegen die drei Schlafzimmer des Hauses. Sie grenzen an ein langes Wasserbassin im Außenraum, das zusätzlich Kühlung verschafft.
Das Haus steht durch die Verwendung der Baumaterialien im Spannungsfeld der Lowtech-Hülle aus Betonfertigteilen und der rahmenlos wirkenden, leichten Konstruktion der Glasfassade.

Foto: Maria Efthymiou

Foto: Maria Efthymiou

Foto: Maria Efthymiou

Foto: Maria Efthymiou

Foto: Maria Efthymiou

Foto: Maria Efthymiou

Foto: Maria Efthymiou

Foto: Maria Efthymiou

Foto: Maria Efthymiou

Foto: Maria Efthymiou

Foto: Maria Efthymiou

Foto: Maria Efthymiou

Grundriss, Ansicht - Grafik: Vardastudio

Weitere Informationen: Fertigstellung: 2016
Fotografin: Maria Efthymiou
https://detail-cdn.s3.eu-central-1.amazonaws.com/media/catalog/product/V/a/VardaAB-T735.jpg?width=437&height=582&store=de_de&image-type=image https://detail-cdn.s3.eu-central-1.amazonaws.com/media/catalog/product/V/a/VardaAB-T1500.jpg?width=437&height=582&store=de_de&image-type=image https://detail-cdn.s3.eu-central-1.amazonaws.com/media/catalog/product/V/a/VardaAB-1.jpg?width=437&height=582&store=de_de&image-type=image https://detail-cdn.s3.eu-central-1.amazonaws.com/media/catalog/product/V/a/VardaAB-2.jpg?width=437&height=582&store=de_de&image-type=image https://detail-cdn.s3.eu-central-1.amazonaws.com/media/catalog/product/V/a/VardaAB-3.jpg?width=437&height=582&store=de_de&image-type=image https://detail-cdn.s3.eu-central-1.amazonaws.com/media/catalog/product/V/a/VardaAB-4.jpg?width=437&height=582&store=de_de&image-type=image https://detail-cdn.s3.eu-central-1.amazonaws.com/media/catalog/product/V/a/VardaAB-6.jpg?width=437&height=582&store=de_de&image-type=image https://detail-cdn.s3.eu-central-1.amazonaws.com/media/catalog/product/V/a/VardaAB-7.jpg?width=437&height=582&store=de_de&image-type=image https://detail-cdn.s3.eu-central-1.amazonaws.com/media/catalog/product/V/a/VardaAB-8.jpg?width=437&height=582&store=de_de&image-type=image https://detail-cdn.s3.eu-central-1.amazonaws.com/media/catalog/product/V/a/VardaAB-9.jpg?width=437&height=582&store=de_de&image-type=image https://detail-cdn.s3.eu-central-1.amazonaws.com/media/catalog/product/V/a/VardaAB-11.jpg?width=437&height=582&store=de_de&image-type=image https://detail-cdn.s3.eu-central-1.amazonaws.com/media/catalog/product/V/a/VardaAB-14.jpg?width=437&height=582&store=de_de&image-type=image https://detail-cdn.s3.eu-central-1.amazonaws.com/media/catalog/product/V/a/VardaAB-15.jpg?width=437&height=582&store=de_de&image-type=image https://detail-cdn.s3.eu-central-1.amazonaws.com/media/catalog/product/V/a/VardaAB-16.jpg?width=437&height=582&store=de_de&image-type=image https://detail-cdn.s3.eu-central-1.amazonaws.com/media/catalog/product/V/a/VardaAB-GrundAnsicht.jpg?width=437&height=582&store=de_de&image-type=image
Copyright © 2024 DETAIL. Alle Rechte vorbehalten.