// Check if the article Layout ?>
Vorwärts strebend: Testcenter von Tchoban Voss Architekten
Foto: Hans Jürgen Landes
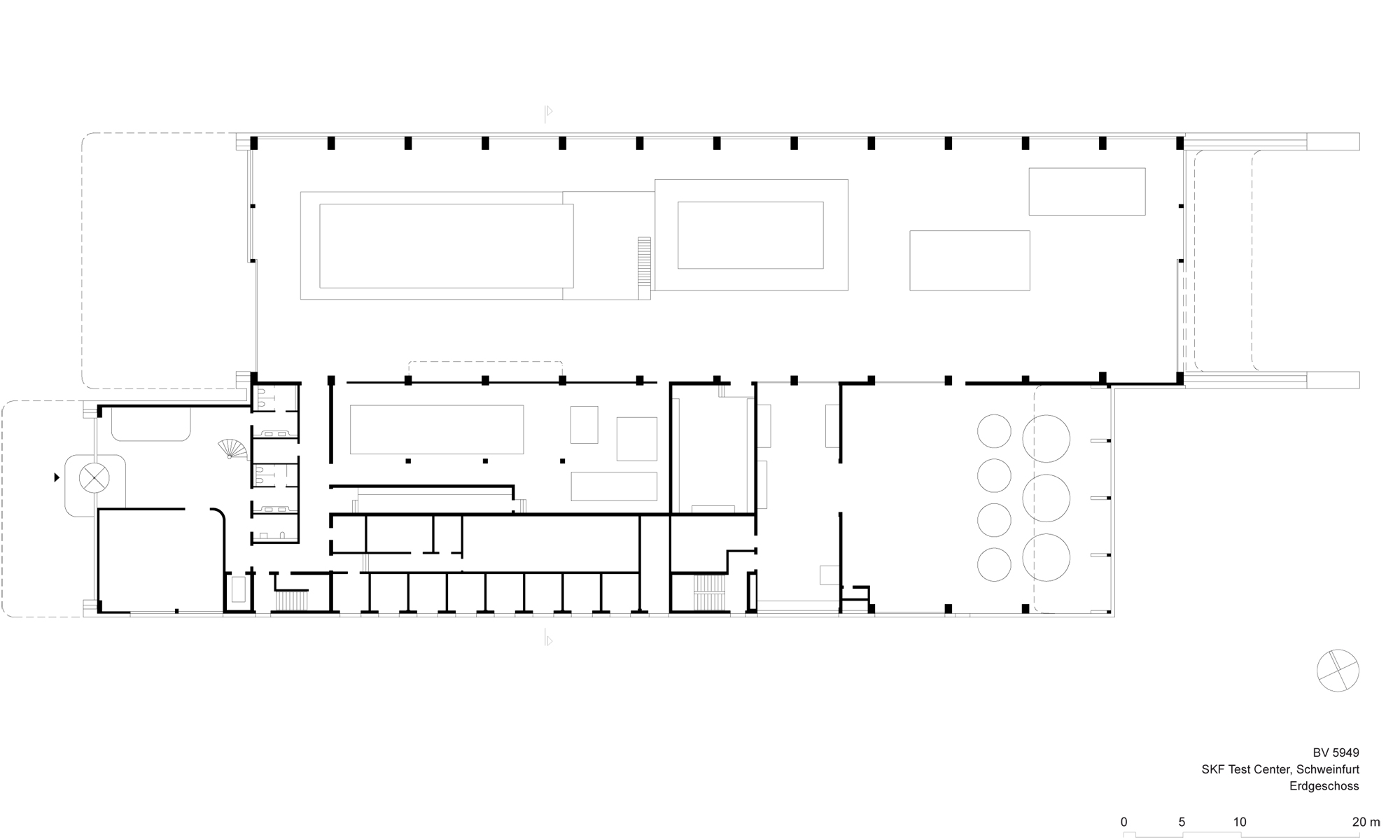
Im Süden von Schweinfurt wurde mit dem Großlager Testcenter die neuste und letzte Ergänzung auf dem SKF-Gelände fertiggestellt. Im Innenraum können Großlager für Windkraftanlagen, Schiff- und Bergbau, sowie für die Papierindustrie, den Zement- und den Stahlsektor getestet werden.
Dazu haben Tchoban Voss Architekten zwei parallel zueinander stehende Baukörper entworfen, die sich in ihrer Form gleichen. Der Niedrigere schiebt sich hinter dem zweiten und größeren Pendant hervor. Sowohl die dynamische Kubatur mit abgeschrägten Enden, als auch die Fassadenpaneele aus Weißaluminium beziehen sich auf das technische Know-how, das die Prozesse im Inneren ausmacht. Die Architekten sprechen von einer »Corporate Architecture«, die vom Unternehmen selbst, seinem Logo und seinen Werten inspiriert ist und das nun nach außen trägt. Abends, wenn warmes Licht durch die verglasten Gebäudeseiten dringt, tritt der Bau mit dem SKF-Hochhaus einige Hundert Meter mainaufwärts in den Dialog. Spätestens dann ist er von der benachbarten Schnellstraße nicht mehr zu übersehen.
Den beiden Baukörpern werden unterschiedliche Funktionen zugeordnet. In der höheren, eingeschossigen Halle befinden sich zwei Prüfstände für Großlager und weitere kleine Prüfstände. Ein 110 Tonnen tragender Brückenkran fährt die Maschinenbauteile präzise an ihren Platz. Der zweite Riegel ist niedriger, dafür aber zweigeschossig. Dort kommen die Technikräume, Lagerflächen, Büros und Konferenzräume unter. Stromlinienförmiges Interieur erinnert immer wieder an den architektonischen Ausdruck der Kubatur und betont dadurch die Firmenidentität.
Auch wenn die äußere Erscheinung eher an Flugzeuge, Luftströme, und eine damit einhergehende Leichtigkeit denken lässt, ist das Gebäude doch sehr fest verankert. Köcherfundamente nehmen die Stahlbetonstützen des Massivbaus auf. Eine Sohlplatte aus Stahlfaserbeton hält dem Gewicht der Maschinen stand. Neben den bereits erwähnten leicht spiegelnden Aluminiumpaneelen kam an der Fassade außerdem zweischaliges Bauprofilglas zum Einsatz.
Die Neubauten nehmen in Bezug auf regenerative Energien und energieeffiziente Technologien eine Vorreiterrolle ein. Deswegen wurden sie sowohl vom Bayrischen als auch vom Bundesministerium für Umwelt, Naturschutz, Bau und Reaktorsicherheit mit 1,9 Millionen beziehungsweise 1,6 Millionen Euro gefördert. Die LEED-Gold-Zertifizierung wird angestrebt.
Weitere Informationen:
Architekt: Ekkehard Voss
Projektpartner und –leiter: Frank Focke
Team: Stephan Müller, Martina Clasen, Johannes Galandi, Annett Neitzel, Ramon Otte, Daniel Schnettka
Projektpartner und –leiter: Frank Focke
Team: Stephan Müller, Martina Clasen, Johannes Galandi, Annett Neitzel, Ramon Otte, Daniel Schnettka

















