Jahresrückblick 2022
15 Jahre Leerstand, und nun?
© Ruben Felberbaum & Jonathan Hoff
Lorem Ipsum: Zwischenüberschrift
Im Rahmen meiner diesjährigen Bachelorthesis durfte ich zusammen mit meinem Projektpartner Jonathan Hoff die ehemalige Maschinenhalle des alten Heizkraftwerks auf dem Innenstadtcampus der Technischen Universität München behandeln. Seit über 15 Jahren befindet sich das Gebäude im Leerstand und wartet auf seine Reaktivierung.


© Ruben Felberbaum & Jonathan Hoff
Lorem Ipsum: Zwischenüberschrift
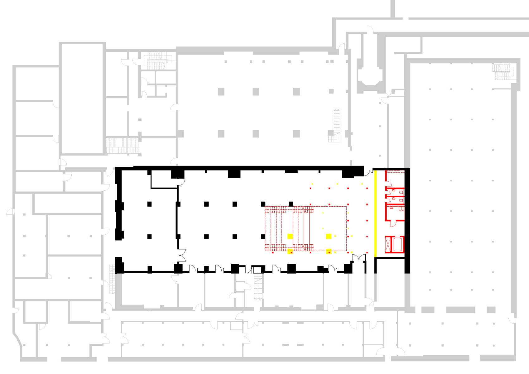
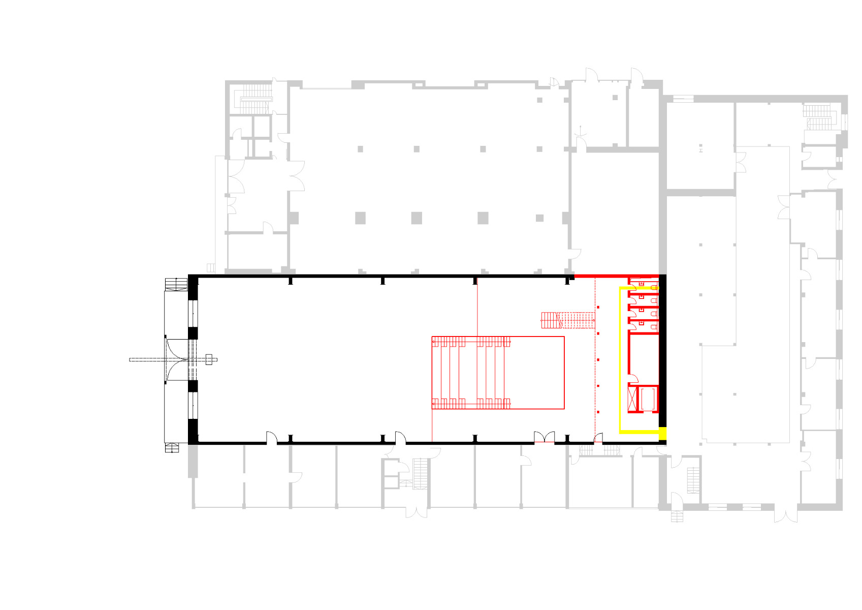
Zwischen 1910 und 1913 erbaut, gehört die Maschinenhalle zu einem der ältesten, noch intakten Gebäude der Universität. Mit einer auf 6 m Höhe eingebauten Galerie wird sie von einem Zweigelenkbogen aus genieteten Blechträgern 15,5 m frei überspannt. Neben einer überaus hohen räumlichen Qualität birgt die hervorragende Innenstadtlage des Campus sowie eine unmittelbare Anbindung an die öffentlichen Verkehrsmittel Münchens das Potenzial, den Ort als interdisziplinäre Begegnungsstätte Studierender aller Fachrichtungen zu nutzen.
Lorem Ipsum: Zwischenüberschrift
Über eine Regelstudienzeit von acht Semestern Bachelor wurde uns bewusst, dass es an unserer Universität für einen ganzheitlichen Austausch unter Studierenden verschiedener Fachrichtungen keinen geeigneten, niederschwelligen Ort des Zusammenkommens gibt. Dies galt es zu ändern, weshalb wir unsere Arbeit der Interdisziplinarität sowie der studentischen Partizipation gewidmet haben. Unser Anliegen lag darin, sowohl ein nachhaltiges Bewusstsein für das Gebäude zu entwickeln als auch die Potenziale aufzudecken, die der Ort in sich trägt.


© Matthias Faul
Lorem Ipsum: Zwischenüberschrift
Durch verschiedene Veranstaltungen traten wir an unsere Mitstudierenden heran und ließen sie in Form von partizipativen Formaten an unserem Entwurf teilhaben. Über eine umfangreiche Aufzeichnung in Form informativer Plakate und Pläne verdeutlichten wir die Vorgehensweise und den Prozess unserer Arbeit, sowie die Grundlagen unseres Entwurfs. Es bestätigte sich, dass wir mit unserem Interesse nicht alleine waren.


© Ruben Felberbaum & Jonathan Hoff


© Ruben Felberbaum & Jonathan Hoff


© Ruben Felberbaum & Jonathan Hoff
Lorem Ipsum: Zwischenüberschrift
Unser Entwurf strebt eine Entwicklung des Raumes als andauernden Prozess der Überformung durch die gesamte Hochschulgemeinde an. Der entworfene Raum dient der Interdisziplinarität, der Aneignung, sowie der Schaffung neuer Synergien. Hier werden Wissensvermittlung, kollektiver Austausch und die individuelle Entfaltung gefördert. Im Sinne der Transformationsforschung soll das Alte Heizkraftwerk fortan ein Reallabor sein, an dem wir als Universität gemeinsam an der Lösung der drängenden Probleme unserer Zeit arbeiten. Zudem soll unser Ansatz als Beispiel für den Umgang mit Leerständen in unserer gebauten Umwelt aufgefasst werden.


© Ruben Felberbaum & Jonathan Hoff
Lorem Ipsum: Zwischenüberschrift
Jeder Kommentar, jedes Gesuch, jedes Gespräch über die Zukunft des alten Kraftwerks ist ein Schritt in Richtung Reaktivierung. Auch ihr könnt euch beteiligen. Über die Email-Adresse: interventionkepos@gmail.com gibt es die Möglichkeit weitere Umsetzungsmöglichkeiten oder Ideen zu unserem Projekt zu äußern.
Weitere Jahresrückblicke aus der Redaktion finden Sie in Detail 12.2022.
Verfolgt das Projekt über Instagram: instagram.com/intervention_kepos
Informationen zur freien Bachelor-Thesis: arc.ed.tum.de/ud/archiv/thesis-ba
































