26.02.2020 Anja Wiegel

Vertikale Dynamik: Comcast Technology Center von Foster + Partners

Foto: Nigel Young/ Foster + Partners

In direkter Nachbarschaft zum bereits bestehenden Comcast Center erhebt sich nun das Comcast Technology Center in die Höhe. Mit seinen 341 m ist es zurzeit das höchste Gebäude Philadelphias.

Das Gelände in der Arch Street liegt zwischen dem Wohngebiet des Rittenhouse Square und dem kulturellen Zentrum um den Benjamin Franklin Parkway. Es war den Architekten und dem Bauherrn ein wesentliches Anliegen, ihren neuen Wolkenkratzer ins urbane Leben einzubinden.

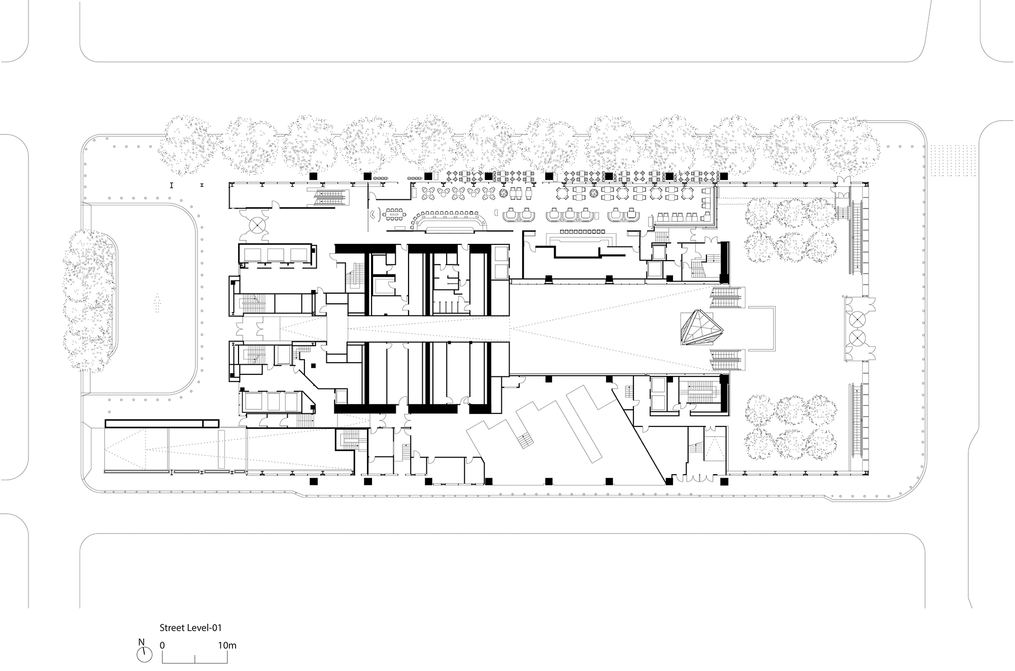
Am Haupteingang wird der Besucher von einer riesigen Lobby mit hoher Glasfassade empfangen, die als Tor zur Stadt fungiert. Moderne Kunstobjekte von Jenny Holzer und Conrad Shawcross beleben den Raum; diverse Läden, Cafés und Restaurants bieten kulinarische Verführungen. Doch nicht nur gelangt man von der Straße aus in das Gebäude, sondern auch durch unterirdische Verbindungen zum U-Bahn-Netz. Über 80% der Angestellten können so schnell und unkompliziert Zugang zu ihrem Arbeitsplatz erlangen.

Im Inneren des Gebäudes schichten sich die weitläufigen Ebenen übereinander. Viele Räume sind nach oben offen und besitzen einen loftähnlichen Charakter. Daher sind die Bereiche trotz ihrer enormen Fläche von über zwölf Tennisplätzen pro Ebene lichtdurchflutet. Sogenannte Himmelsgärten über drei Geschosse bieten großzügige Aufenthaltsräume mit Sitzgelegenheiten und Tischtennisplatten zwischen grünen Topfpflanzen.

Die Organisation des komplexen Netzwerks obliegt einem zentralen Verwaltungsbereich, den die Architekten „Rathaus“ nennen. Der Begriff passt zur entwurfsprägenden Vorstellung einer Stadt innerhalb der Stadt.

In den obersten Geschossen präsentiert sich das Four Seasons Hotel in vollem Luxus: Von Wasserfällen flankierte Treppen führen über Marmorböden zur Skybar und zum dreiseitig verglasten Restaurant. Stetiger Begleiter beim Weg durch das Hotel ist der Panoramablick über Philadelphia.

Foto: Jeffrey Totaro

Foto: Nigel Young/ Foster + Partners

Foto: Nigel Young/ Foster + Partners

Foto: Nigel Young/ Foster + Partners

Foto: Nigel Young/ Foster + Partners

Foto: Nigel Young/ Foster + Partners

Foto: Nigel Young/ Foster + Partners

Foto: Nigel Young/ Foster + Partners

Grundriss, Grafik: Foster + Partners

Schnitt, Grafik: Foster + Partners

Weitere Informationen:

Bauingenieur: Thornton Tomasetti
Innenarchitekt Hotel: Rottet Studio Innenarchitekt Büros: Daroff Design
Ingenieure: BALA Consulting

https://detail-cdn.s3.eu-central-1.amazonaws.com/media/catalog/product/1/2/1277762400_238_500_186.jpg?width=437&height=582&store=de_de&image-type=image https://detail-cdn.s3.eu-central-1.amazonaws.com/media/catalog/product/K/U/KURZTEASER_Foster_CTC_.jpg?width=437&height=582&store=de_de&image-type=image https://detail-cdn.s3.eu-central-1.amazonaws.com/media/catalog/product/L/A/LANGTEASER_Foster_CTC_.jpg?width=437&height=582&store=de_de&image-type=image https://detail-cdn.s3.eu-central-1.amazonaws.com/media/catalog/product/0/1/01_Foster_CTC_.jpeg?width=437&height=582&store=de_de&image-type=image https://detail-cdn.s3.eu-central-1.amazonaws.com/media/catalog/product/0/2/02_Foster_CTC_.jpg?width=437&height=582&store=de_de&image-type=image https://detail-cdn.s3.eu-central-1.amazonaws.com/media/catalog/product/0/3/03_Foster_CTC_.jpg?width=437&height=582&store=de_de&image-type=image https://detail-cdn.s3.eu-central-1.amazonaws.com/media/catalog/product/0/4/04_Foster_CTC_.jpg?width=437&height=582&store=de_de&image-type=image https://detail-cdn.s3.eu-central-1.amazonaws.com/media/catalog/product/0/5/05_Foster_CTC_.jpeg?width=437&height=582&store=de_de&image-type=image https://detail-cdn.s3.eu-central-1.amazonaws.com/media/catalog/product/0/6/06_Foster_CTC_.jpeg?width=437&height=582&store=de_de&image-type=image https://detail-cdn.s3.eu-central-1.amazonaws.com/media/catalog/product/0/7/07_Foster_CTC_.jpeg?width=437&height=582&store=de_de&image-type=image https://detail-cdn.s3.eu-central-1.amazonaws.com/media/catalog/product/0/9/09_Foster_CTC_.jpeg?width=437&height=582&store=de_de&image-type=image https://detail-cdn.s3.eu-central-1.amazonaws.com/media/catalog/product/1/0/10_Foster_CTC_Foster___Partners.jpg?width=437&height=582&store=de_de&image-type=image https://detail-cdn.s3.eu-central-1.amazonaws.com/media/catalog/product/1/1/11_Foster_CTC_Foster___Partners.jpeg?width=437&height=582&store=de_de&image-type=image
Copyright © 2024 DETAIL. Alle Rechte vorbehalten.