Update für eine Ikone
Der sanierte Bücherturm in Gent und die Baukultur in Flandern
© Stad Gent - Dienst Toerisme
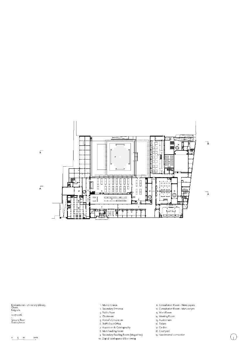
Wie lässt sich eine historische Bibliothek auf heutige Nutzungen adaptieren? Die Universitätsbibliothek in Gent ist ein Spätwerk von Henry van de Velde. 1933 wurde der belgische Architekt und Künstler mit dem Neubau des Gebäudes auf einem hochgelegenen Innenstadtgrundstück der flämischen Universitätsstadt beauftragt. Er konzipierte einen großzügigen Betonbau mit drei Geschossen, der Lesesäle und Verwaltungsräume aufnimmt und sich um einen Innenhof gruppiert.


© Stad Gent - Dienst Toerisme
Das weithin sichtbare Wahrzeichen der Bibliothek ist der Bücherturm – der „Boekentoren“. Er schiebt sich mit 64 m Höhe in die Innenstadt von Gent und ist den Büchern vorbehalten. Das stolze Zeichen für das Wissen der Universitätsstadt schließt mit einem lichten Belvedere ab, der Raum für Vorträge und Versammlungen bietet. Die Bildung wacht also hoch oben im Bücherturm über die gesamte Stadt.
Sanierung
„Dieses Projekt ist Teil meines Lebens“, sagt der belgische Architekt Paul Robbrecht von Robbrecht en Daem. Seit bald zwei Jahrzehnten ist er mit der Sanierung der ikonischen Bibliothek betraut. Eine Lebensaufgabe also. Die sorgfältig geplanten Interventionen der Architekten sind heute kaum sichtbar, dafür aber umso wirkungsvoller.


© Stad Gent - Dienst Toerisme
Das Bücherdepot wurde durch unterirdische Räume erweitert, die Gebäudetechnik grundlegend erneuert und die poröse Betonschicht der Fassaden ausgetauscht. Außerdem entstand ein neuer Eingangspavillon, der die Besucherströme entzerrt und sich in das Gebäudeensemble einfügt, ohne sich aufzudrängen. Der Bücherturm in Gent ist heute wieder eine beliebte und belebte Anlaufstelle für Studierende und Forscherteams.


Alliances with the Real, Flanders Architectural Review N°15, Vlaams Architectuurinstituut (Hg.), Texte von Livia de Bethune, Sofie De Caigny, Maarten Desmet, Hülya Ertas, Marleen Goethals, Petrus Kemme, Marc Martens, Mark Pimlott, Martino Tattara, Kiki Verbeeck, Fotoessays von Sepideh Farvardin und Miles Fischler, 300 Seiten, ISBN: 9789492567284, Gent 2022. © Detail


Alliances with the Real, Flanders Architectural Review N°15, Vlaams Architectuurinstituut (Hg.), Texte von Livia de Bethune, Sofie De Caigny, Maarten Desmet, Hülya Ertas, Marleen Goethals, Petrus Kemme, Marc Martens, Mark Pimlott, Martino Tattara, Kiki Verbeeck, Fotoessays von Sepideh Farvardin und Miles Fischler, 300 Seiten, ISBN: 9789492567284, Gent 2022. © Detail
Baukultur in Flandern
„Allianzen mit dem Realen“ – „Alliances with the Real“ ist der Titel eines Resümees zur aktuellen Architektur in Flandern, den das flämische Architekturinstitut unter der Leitung von Sofie de Caigny in einem englischsprachigen Buch vorlegt – als Flanders Architectural Review N°15. Der Bücherturm ist einer der viel diskutierten Projekte der letzten Jahre, die in dem 300 Seiten starken Paperback dokumentiert sind. Das Buch zieht ein sorgfältiges Resümee der Baukultur in Flandern – mit einem beachtlichen Ergebnis. Denn die Fülle und Qualität der zahlreichen Sanierungen und Erweiterungen, Schulen und Wohnungsbauten überzeugt rundherum, besonders wenn sie mit anderen Regionen in Europa verglichen wird. Ergänzende Essays runden den Einblick in Flanderns aktuelle Architektur ab und reflektieren den kulturellen Kontext. Nicht zu vergessen sind auch die Fotoessays von Sepideh Farvardin und Miles Fischler – sie machen aus dem beachtenswerten Band auch ein Handbuch zum Staunen und Schmökern. Wer dieses Buch liest, der will unbedingt nach Flandern reisen!
Mehr dazu in Detail 4.2023 und in unserer Datenbank Detail Inspiration.
Sanierung: Robbrecht en Daem architecten, SumProject, Baro, Barbara Van der Wee Architects
Standort: Universitätsbibliothek Boekentoren, Rozier 9, 9000 Gent, BE
Fertigstellung: 2021
Alliances with the Real, Flanders Architectural Review N°15, Vlaams Architectuurinstituut (Hg.), Texte von Livia de Bethune, Sofie De Caigny, Maarten Desmet, Hülya Ertas, Marleen Goethals, Petrus Kemme, Marc Martens, Mark Pimlott, Martino Tattara, Kiki Verbeeck, Fotoessays von Sepideh Farvardin und Miles Fischler, 300 Seiten, ISBN: 9789492567284, Gent 2022.















