Update for an icon
Restored Book Tower in Ghent and Building Culture in Flanders
© Stad Gent - Dienst Toerisme
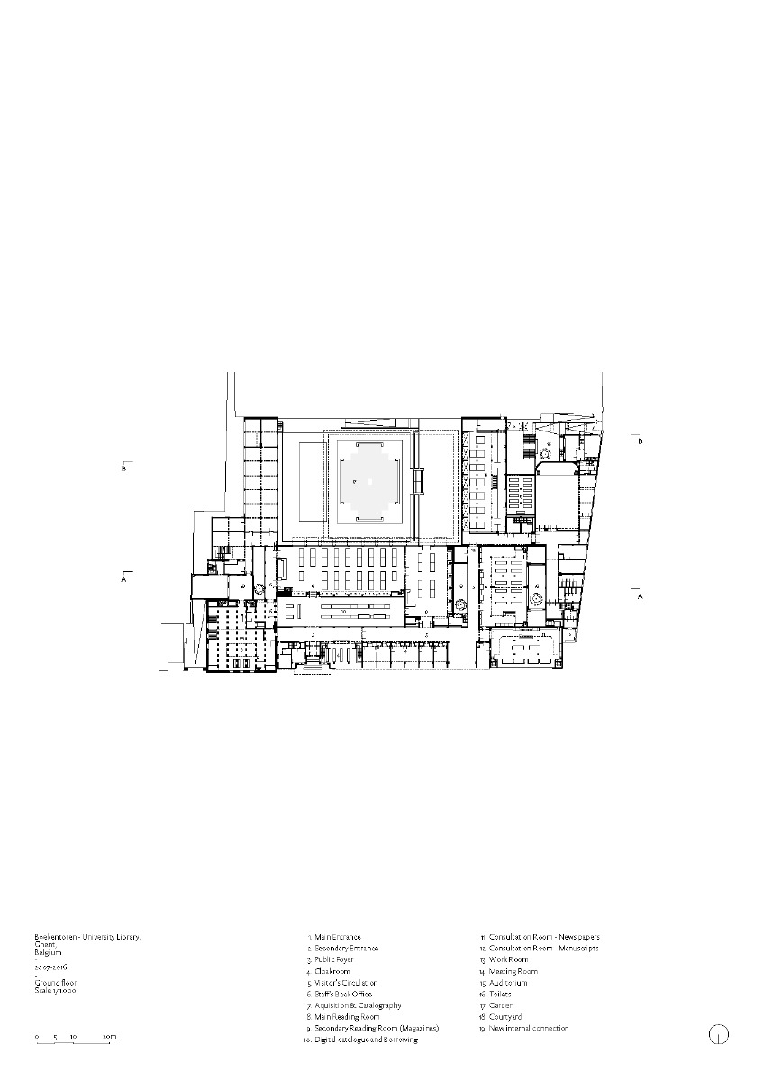
How can an historical library be adapted to modern uses? The university library in Ghent is a late work by Henry van de Velde. In 1933, the Belgian architect and artist was commissioned with building a new structure on a high inner-city lot in the Flemish university town. He conceived a spacious concrete building with three storeys that feature lecture halls and administrative spaces grouped around an inner courtyard.


© Stad Gent - Dienst Toerisme
The Boekentoren, which is the trademark of the library, can be seen from afar. Its 64 m of height nestle into the inner city of Ghent and are devoted to books. This proud symbol of knowledge in the university town is topped by a belvedere offering space for presentations and assemblies. One could say that from the Book Tower, Education watches over the entire city.
Refurbishment
“This project is part of my life”, says Belgian architect Paul Robbrecht of Robbrecht en Daem. For nearly two decades, he has been entrusted with the refurbishment of the iconic library: a true life’s work. Today, the architect’s painstakingly planned interventions are hardly visible, yet are all the more effective due to this fact.


© Stad Gent - Dienst Toerisme
The book depository has been expanded by subterranean spaces, the technical installations completely overhauled and the porous concrete layer on the facades replaced. Moreover, a new entrance pavilion has been created; it guides the streams of visitors and fits into the building ensemble without seeming too pushy. The Boekentoren is Ghent has again become a popular, lively destination for students and research teams.


Alliances with the Real, Flanders Architectural Review N°15, Vlaams Architectuurinstituut (Hg.), Texts by Livia de Bethune, Sofie De Caigny, Maarten Desmet, Hülya Ertas, Marleen Goethals, Petrus Kemme, Marc Martens, Mark Pimlott, Martino Tattara, Kiki Verbeeck, Photoessays by Sepideh Farvardin und Miles Fischler, 300 pages, ISBN: 9789492567284, Gent 2022. © Detail


Alliances with the Real, Flanders Architectural Review N°15, Vlaams Architectuurinstituut (Hg.), Texts by Livia de Bethune, Sofie De Caigny, Maarten Desmet, Hülya Ertas, Marleen Goethals, Petrus Kemme, Marc Martens, Mark Pimlott, Martino Tattara, Kiki Verbeeck, Photoessays by Sepideh Farvardin und Miles Fischler, 300 pages, ISBN: 9789492567284, Gent 2022. © Detail
Building culture in Flanders
“Alliances with the Real” is the title of a summary of contemporary Flemish architecture published in Flanders Architectural Review No 15 as an English-language book by the Flanders Architecture Institute under the direction of Sofie de Caigny. The Boekentoren is one of the much-discussed projects of the past few years that are documented in the 300-page paperback. The book provides a thorough summary of building culture in Flanders – with remarkable results. The volume and quality of the many refurbishments and expansions, schools and residential buildings are quite convincing, particularly when they are compared with other regions of Europe. Additional essays complete the overview of current architecture in Flanders and reflect its cultural context. Of course, we must not forget the photoessays by Sepideh Farvardin and Miles Fischler, which make this notable volume a browseworthy handbook that will amaze and delight. Anyone who reads this book will surely want to visit Flanders.
Read more in Detail 4.2023 and in our databank Detail Inspiration.
Refurbishment: Robbrecht en Daem architecten, SumProject, Baro, Barbara Van der Wee Architects
Location: Universitätsbibliothek Boekentoren, Rozier 9, 9000 Gent, BE
Completion: 2021
Alliances with the Real, Flanders Architectural Review N°15, Vlaams Architectuurinstituut (Hg.), Texts by Livia de Bethune, Sofie De Caigny, Maarten Desmet, Hülya Ertas, Marleen Goethals, Petrus Kemme, Marc Martens, Mark Pimlott, Martino Tattara, Kiki Verbeeck, Photoessays by Sepideh Farvardin und Miles Fischler, 300 pages, ISBN: 9789492567284, Gent 2022.















