Urbanes Arbeiten im Grünen
Büroensemble von Vector Architects in Chengdu
© Arch-Exist
Lorem Ipsum: Zwischenüberschrift
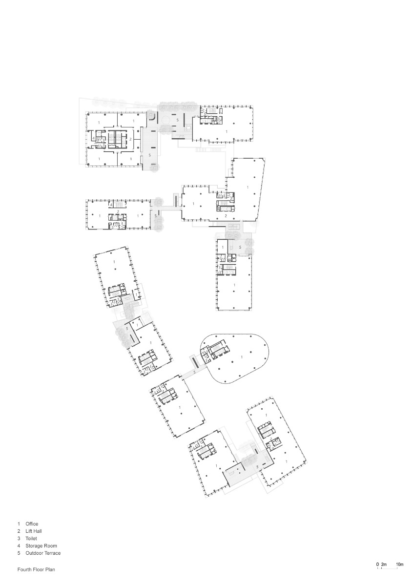
Der Bürokomplex Luxelakes Floating Headquarters von Vector Architects ist die neueste Ergänzung der Eco City in Chengdu. Er besteht aus elf Baukörpern, die sich rund um drei Innenhöfe anordnen.


© Chen Hao
Lorem Ipsum: Zwischenüberschrift
Am nördlichen Rand des urbanen Quartiers mit Wohn-, Geschäfts- und Freizeitangeboten fügt sich das Projekt ins Stadtgefüge ein. Die Headquarters sollen dort mit bepflanzten Freiflächen und öffentlichen Plätzen zum neuen, sozialen Treffpunkt werden, in dem man nicht nur nebeneinander arbeitet, sondern sich auch trifft und austauscht.
Lorem Ipsum: Zwischenüberschrift
Die einzelnen Gebäude unterscheiden sich in Kubatur und Höhe. Ihre Fassaden sind regelmäßig gerastert, aber je nach Ausrichtung geschlossener oder offener gestaltet. Aufgeständert auf Pilotis scheinen Stadt- und Grünraum in der Erdgeschosszone durch das gesamte Ensemble zu fließen.


© Arch-Exist
Lorem Ipsum: Zwischenüberschrift
In horizontaler Richtung gibt es drei große Patios, die das Areal strukturieren und jeweils einem speziellen Thema gewidmet sind: Der nördlichste von ihnen ist der „Vertikale Hof“. Er kombiniert vertikale Zirkulation mit tiefergelegten Plätzen und Gärten auf verschiedenen Ebenen. Die Ansichten prägen hier industrielle Materialien wie Beton und Aluminium.


© Arch-Exist
Lorem Ipsum: Zwischenüberschrift
Im Zentrum des Bürokomplexes befindet sich der üppig bewachsene „Baumhof“ mit hohem Gras und Bäumen. Natürliche und zum Teil begrünte Holzansichten fassen den Bereich seitlich ein. Im letzten der Höfe steht das Wasser im Vordergrund. Je nach Witterung spiegelt sich in der glatten Oberfläche der Becken die Umgebung wider oder sorgen sanfte Wellen für Lebendigkeit. Die angrenzenden Bauten greifen die Transparenz des Elements in Form von Glasbausteinen auf.


© Chen Hao
Lorem Ipsum: Zwischenüberschrift
Mit Treppen und Brücken sowie Außenterrassen und vertikaler Bepflanzung nutzen die Planer jeden Winkel auf dem urbanen Areal optimal aus. Vielfältige Verbindungen zwischen den einzelnen Gebäuden, Geschossen und Grünflächen lassen die Anlage trotz ihrer 70 000 m² Nutzfläche kleinteilig erscheinen. So entsteht inmitten der chinesischen Metropole ein besonderer Arbeitsort und Begegnungsraum – eingebettet in Natur.
Architektur: Vector Architects
Bauherr: Chengdu Wide Horizon Investment Group
Standort: No. 199 West Section of Luhu North Road, Luxelakes Eco-city, Tianfu New District, Chengdu, Sichuan (CN)
Tragwerksplanung: Xiao Congzhen, Chu Dewen, Ma Hongrui, Li Yilong
TGA-Planung: Zhang Peng, Chen Yanan, Li Hui, Li Xiaofei
Landschaftsplanung: Greenview Landscape
Fassadenplanung: Shenzhen Keyuan Building Decoration Group
Lichtplanung: X Studio, School of Architecture, Tsinghua University
Grundstücksfläche: 19 770 m²
Bebaute Fläche: 8253 m²
Bruttogrundfläche: 70 462 m²






















