Holzbau-Premiere in Göteborg
Bürogebäude Nodi von White Arkitekter
© Åke E:son Lindman
Lorem Ipsum: Zwischenüberschrift
Mit Nodi gestalten White Arkitekter den ersten Bürobau aus Holz in Göteborg. Das Gebäude zeigt nicht nur die klimatechnischen, sondern auch die optischen Vorzüge des Naturwerkstoffs. Im jungen Bezirk Nya Hovås im Süden der Stadt soll Nodi zum neuen Treffpunkt werden. Das verdeutlicht auch der Name, der so viel wie „Hub“ bedeutet. Direkt an einer Verkehrsader gelegen, sticht der Baukörper mit seiner unkonventionellen Gestaltung ins Auge: Anstatt glatter Fassaden, sind die einzelnen Stockwerke abgetreppt übereinandergestapelt. Am kleinsten ist das Erdgeschoss, mit zunehmender Höhe wachsen die Grundrisse. Die Auskragung dient jeweils als passiver Sonnenschutz.


© Åke E:son Lindman
Lorem Ipsum: Zwischenüberschrift
Holz prägt den als Pfosten-Riegelkonstruktion ausgeführten Bau sowohl außen als auch innen. Während die Sockelzone komplett verglast ist und lediglich von einigen schmalen Stützen eingefasst wird, legen sich in den oberen Etagen Finnen aus dunklem Brettschichtholz vor die Glasfassaden. Sie sind in unregelmäßigen Abständen angeordnet, fassen zum Teil geschlossene Abschnitte ein und rhythmisieren die Ansichten von Nodi.
Lorem Ipsum: Zwischenüberschrift
Das hohe Eingangsebene wird gewerblich genutzt. Dank der Rundumverglasung wirkt die Ladenfläche hell und freundlich und lockt Passanten ins Innere. Vereinzelte Holzträger sowie die Deckenbalken strukturieren den großen Raum.


© Åke E:son Lindman
Lorem Ipsum: Zwischenüberschrift
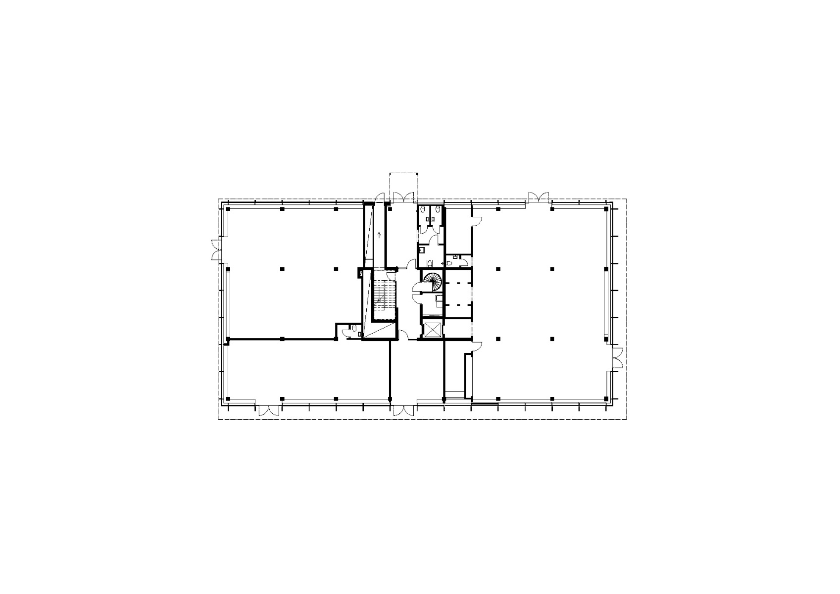
Die vier Bürogeschosse sind jeweils in vier gleich große Einheiten geteilt. Rund um einen zentralen Kern mit Erschließung, Küche, Besprechungs- und Sanitärräumen erstrecken sich die offenen Arbeitsflächen in jeder von ihnen über eine Gebäudeecke. Entlang der Fensterfronten bietet die Tiefe der Fassadenkonstruktion Platz für Sitznischen. Je nach Bedarf können die Abschnitte auch zu größeren Offices zusammengelegt werden und ermöglichen eine flexible Nutzung. Im obersten Stockwerk gibt es nur zwei Eckeinheiten. Die andere Hälfte nimmt eine offene Gemeinschaftsterrasse auf dem Dach ein.


© Åke E:son Lindman
Lorem Ipsum: Zwischenüberschrift
Das lokale Tannenholz sorgt für einen geringen CO2-Fußabdruck und ein angenehmes Raumklima: In den Büros reguliert der Werkstoff Temperatur und Luftfeuchtigkeit. Neben dem Nachhaltigkeitsaspekt wählten die Architekten das Material auch aufgrund seiner natürlichen Ästhetik und der Gemütlichkeit, die es ausstrahlt.
Architektur: White Arkitekter
Bauherr: Next Step Group
Standort: 436 53 Nya Hovås, Göteborg (SE)
Bruttogrundfläche: 4660 m²





















