Urban working in the green
Office Ensemble by Vector Architects in Chengdu
© Arch-Exist
Lorem Ipsum: Zwischenüberschrift
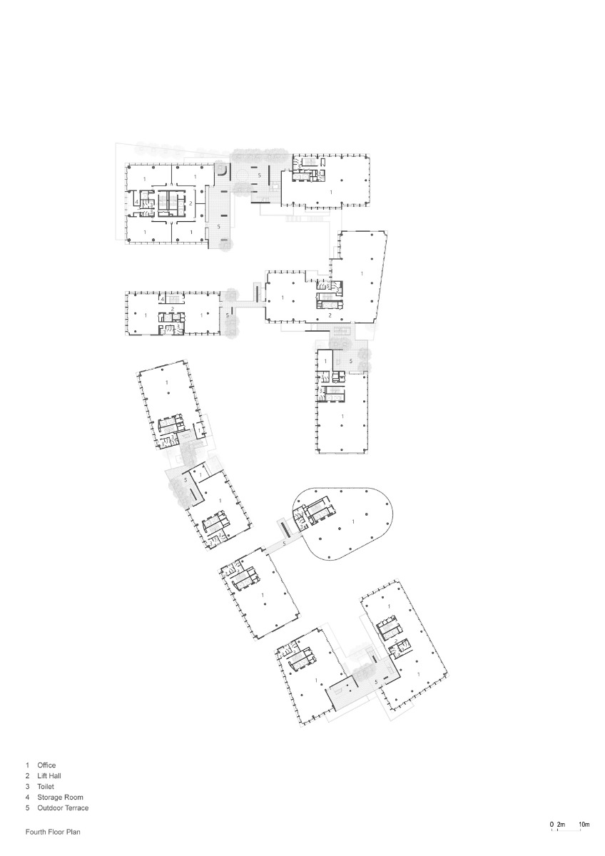
The Luxelakes Floating Headquarters office complex by Vector Architects is the latest addition to the Eco City in Chengdu. It comprises eleven structures arranged around three inner courtyards.


© Chen Hao
Lorem Ipsum: Zwischenüberschrift
At the north end of the urban quarter, which features living, business and leisure opportunities, the project fits into the urban fabric. With their planted outdoor areas and open plazas, the Headquarters are set to become a new social meeting point where people not only work side by side, but also come together and converse.
Lorem Ipsum: Zwischenüberschrift
The individual buildings differ in cubature and height. Their facades have a regular grid, but are more closed or open depending on the direction they face. Stood on piles, urban and green spaces in the ground-level zone seem to flow through the entire complex.


© Arch-Exist
Lorem Ipsum: Zwischenüberschrift
On the horizonal plane, three large patios structure the area. Each of these is devoted to a specific theme: the northernmost is the Vertical Courtyard. It combines vertical circulation with deeper-set plazas and gardens on various levels. The views here are characterized by industrial materials such as concrete and aluminum.


© Arch-Exist
Lorem Ipsum: Zwischenüberschrift
The centre of the office complex is home to the lush Tree Courtyard with tall grass and trees. Natural, occasionally planted wooden profiles determine this side of the area. In the last of the courtyards, water takes centre stage. Depending on the weather, the smooth surface of the basins either reflects the surroundings or adds vibrancy with soft waves. The adjacent buildings take up the transparency of this element in the form of glass bricks.


© Chen Hao
Lorem Ipsum: Zwischenüberschrift
With stairways, bridges, outdoor terraces and vertical planting, the planners have made the best possible use of every inch of the urban area. The many connections among the individual buildings, levels and green spaces give the complex a small-scale feel despite its 70 000 m2 of usable space. The result is a special working place and meeting point, embedded in nature, amid the Chinese metropolis.
Architecture: Vector Architects
Client: Chengdu Wide Horizon Investment Group
Location: No. 199 West Section of Luhu North Road, Luxelakes Eco-city, Tianfu New District, Chengdu, Sichuan (CN)
Structural engineering: Xiao Congzhen, Chu Dewen, Ma Hongrui, Li Yilong
Building services engineering: Zhang Peng, Chen Yanan, Li Hui, Li Xiaofei
Landscape architecture: Greenview Landscape
Facade planning: Shenzhen Keyuan Building Decoration Group
Lighting design: X Studio, School of Architecture, Tsinghua University
Site area: 19 770 m²
Built-up area: 8253 m²
Gross floor area: 70 462 m²






















