Wohnen im Alter
Centered Home in Los Angeles
Centered Home, © Brandon Shigeta
In Los Angeles gestalten die Architektinnen Annie Barrett von Aanda Architects und Hye-Young Chung ein Haus im spanischen Stil eines kunst- und designbegeisterten Ehepaars für die Altersteilzeit um. Das Ergebnis nennt sich Centered Home – ein langfristiges Zuhause, das für einen Alltag geeignet ist, der im Fluss ist und sich entwickelt.


Große Kakteen im Vorgarten schützen das Einfamilienhaus vor Blicken. © Brandon Shigeta
Hinter großen, dicht gewachsenen San Pedro Kakteen versteckt sich das geradlinige, eingeschossige Gebäude mit Shou Sugi Ban Fassade. Die karbonisierte Schicht des leicht verkohlten Fassadenholzes dient als natürlicher Insektenschutz, ist wetterresistent, nachhaltig und wartungsarm.
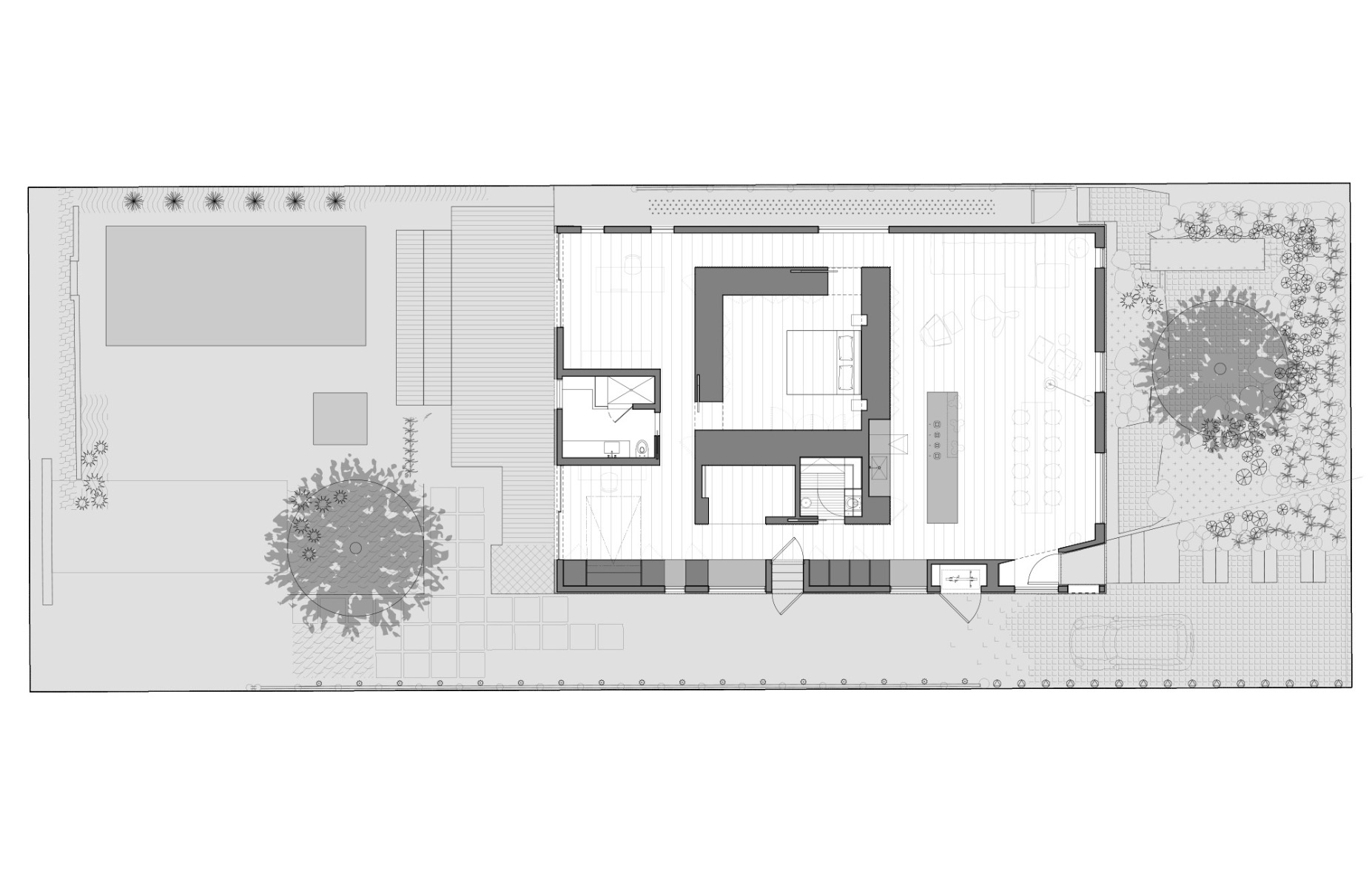
Haus im Haus
Centered Home besteht aus einer Reihe von konzentrisch angeordneten, ineinander verschachtelten Räumen. Ein innerer Kubus dient als vermittelnde Hülle zwischen dem Außenbereich und dem Zentrum des Hauses. Im privaten Kern sind intime Räumlichkeiten und Rückzugsmöglichkeiten wie das Badezimmer, das Schlafzimmer sowie ein Meditationsraum angesiedelt. Gemeinschaftliche Aktivitäten finden in der vermittelnden Hülle statt. Hier liegt der offen gestaltete Koch-, Wohn- und Essbereich, versteckte Stauraumzonen sowie zwei Arbeitszimmer.


Gemeinschaftliche Aktivitäten wie Kochen finden im äußeren Kubus statt. © Brandon Shigeta
Materialpalette
Deckenhohe Fensterfronten und Oberlichter durchfluten das Innere mit Tageslicht und schaffen eine Verbindung zum Außenbereich. Helle Farbtöne und natürliche Materialien ermöglichen Raum für die Kunstwerke und maßgefertigten Möbel des Ehepaares. Diese Kombination sorgt für eine warme Wohnatmosphäre im gesamten Haus. Ein breiter Dinesen-Bodenbelag zieht sich durch alle Räumlichkeiten. Gips verleiht den Wänden und Decken eine schimmernde Struktur.


Der Wohnbereich des Hauses ist offen und hell gestaltet. © Brandon Shigeta
Interior
Die Innenraumgestaltung ist laut den Architektinnen bestimmt durch ein Gleichgewicht von meditativer Einsamkeit und aktivem Gemeinschaftsleben. Die Hauseigentümer wünschten sich eine Einrichtung, die genau nach ihren Bedürfnissen und Vorlieben gestaltet ist. Das Schlafzimmer im privaten Zentrum des Hauses ist mit einer gewölbten Decke aus weißer Eiche und einem Oberlicht ausgestattet. An einer Wand finden sich speziell angefertigte CNC-gefräste Paneele mit weichen Rillen, die die Garderobe des Paares kennzeichnen.


Schlafzimmer, © Brandon Shigeta


Garderobe, © Brandon Shigeta
Gleich nebenan liegt ein Raum für Meditation und Stretching, der mit einer eingebauten Sprossenwand, einem Hakensystem für Dehnübungen sowie Stauraum für die sportliche Ausrüstung eingerichtet ist. Die Wände sind mit Holz und Filzpaneelen verkleidet.


Büro, © Brandon Shigeta


Raum für Meditation und Stretching, © Brandon Shigeta
Ein Flur führt zur Rückseite des Hauses – hier befinden sich zwei Büros mit Blick in den Garten. Eine große Holzterrasse führt hinab zu einem mit Natursteinfliesen umrandeten Pool.
Architektur und Innenarchitektur: aanda architects, Hye-Young Chung Architecture (HYCArch)
Bauherr: privat
Standort: Los Angeles (US)
Baumanagement: GHBW
Tragwerksplanung: Marco Ibarra
Lichtplanung: Theia Lighting, Kathryn Toth
Landschaftsarchitektur: Hocker Design - Landscape Architect























