Wohnen an der Costa Brava
Einfamilienhaus von Marià Castelló + José Antonio Molina
© Marià Castelló
Lorem Ipsum: Zwischenüberschrift
Die spanischen Architekten Marià Castelló und José Antonio Molina entwerfen an der Costa Brava ein Einfamilienhaus für eine Familie mit vier Kindern. Dieses ist perfekt in seine Umgebung integriert und bietet spektakuläre Aussichten.


© Marià Castelló
Lorem Ipsum: Zwischenüberschrift
Seinen Namen erhält das Projekt vom gleichnamigen Küstenort Port de la Selva. Er liegt am nördlichen Ende der beliebten katalanischen Mittelmeerküste und zeichnet sich durch seine felsige, von Vulkanstein geformte Topografie aus.
Lorem Ipsum: Zwischenüberschrift
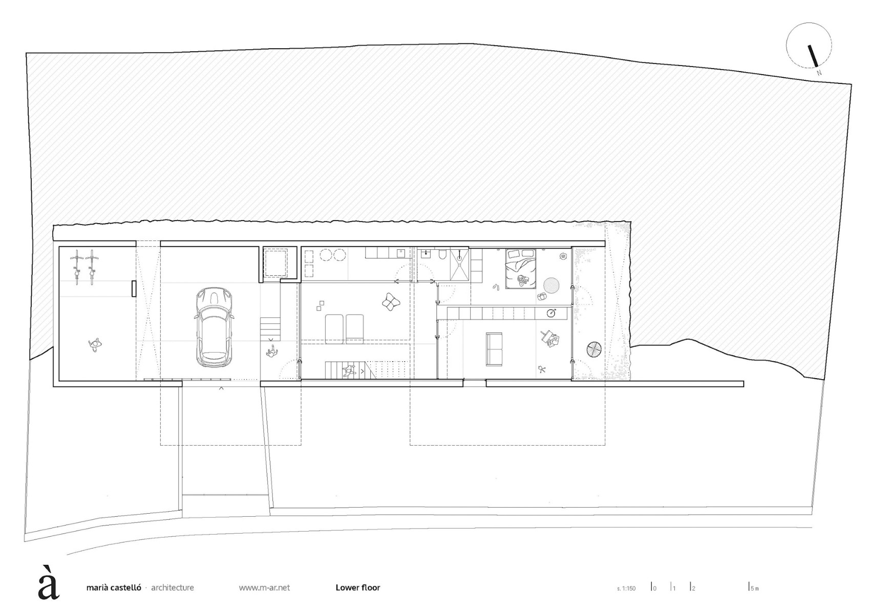
Die Planer nutzen die Eigenschaften des Bauplatzes bestmöglich. Sie orientieren sich an der Sonne, an möglichen Panoramablicken und berücksichtigen gleichzeitig die rauen Nordwinde. Während das untere Geschoss in den Felsen eingebettet ist, setzt sich die obere Etage aus zwei separaten Volumen zusammen.


© Marià Castelló
Lorem Ipsum: Zwischenüberschrift
Der Sockel zeigt sich nur von der erschließenden Straße, die in nördlicher Richtung entlang der Küste vorbeiführt. Er wird von Oberlichtern und gezielten Öffnungen belichtet und beinhaltet die Garage sowie einen Teil der Wohnbereiche. Zwischen den Außenwänden und dem vulkanischen Gestein entstehen hier rund um den Bau immer wieder spannende Außenbereiche.


© Marià Castelló


© Marià Castelló
Lorem Ipsum: Zwischenüberschrift
Im ersten Stockwerk werden Licht und Luft von der Kubatur raffiniert gelenkt. Neben dem Haupttrakt mit Ess-Wohnbereich und Elternschlafzimmer, sind im zweiten Teil die übrigen Räume und Bäder für die Kinder untergebracht. Die beiden Volumen verbindet ein rundum verglaster Flur. Er schafft zwischen den Trakten einen geschützten Innenhof mit freier Aussicht. Ein Pool komplettiert das Raumprogramm des mediterranen Wohnhauses.


© Marià Castelló


© Marià Castelló
Lorem Ipsum: Zwischenüberschrift
Zur schroffen Landschaft kombiniert das Architektenduo Sichtbeton. Dieser prägt das Einfamilienhaus sowohl außen als auch innen und eignet sich als robustes Material perfekt für das maritime Klima. Großflächige Verglasungen geben in sämtlichen Innenräumen den Blick nach draußen frei und sorgen gemeinsam mit Einbauten und Akzenten aus Eichenholz für eine freundliche Wohnatmosphäre.
Architektur: Marià Castelló + José Antonio Molina
Bauherr: Privat
Standort: Carrer Punta de la Creu 15, 17489 El Port de la Selva (ES)
Tragwerksplanung: Think Enginyeria






















