Living on the Costa Brava
Single-Family Home by Marià Castelló + José Antonio Molina
© Marià Castelló
Lorem Ipsum: Zwischenüberschrift
On the Costa Brava, Spanish architects Marià Castelló and José Antonio Molina have designed a home for a family with four children. The house integrates perfectly into its surroundings and offers spectacular views.


© Marià Castelló
Lorem Ipsum: Zwischenüberschrift
The project takes its name from the seaside village of El Port de la Selva, which is situated at the northern end of the popular Catalan Mediterranean coast and is characterized by rocky topography formed of volcanic stone.
Lorem Ipsum: Zwischenüberschrift
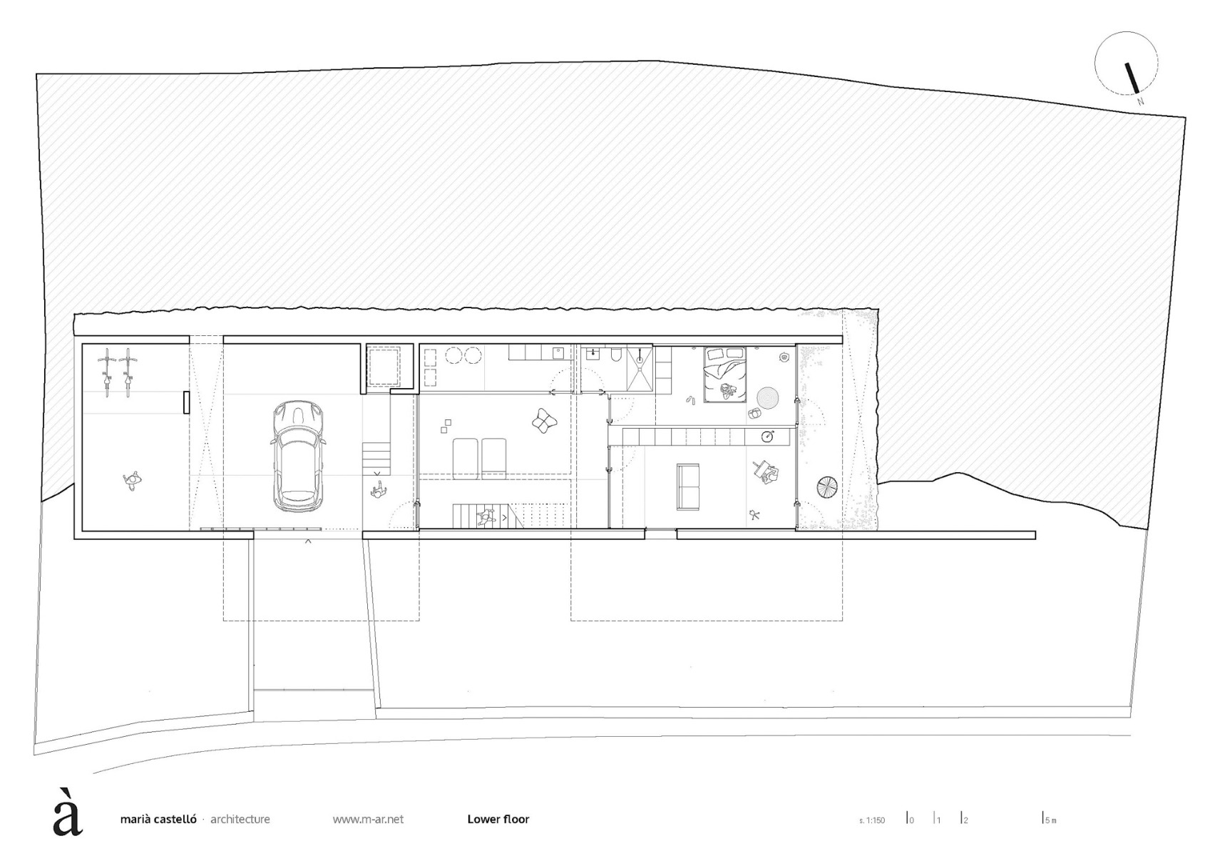
The planners have made the most of the features of the building site by adapting their design to the sun and possible panoramic views while also considering the harsh north winds. The lower level is embedded in the cliffside, and the upper storey comprises two separate volumes.


© Marià Castelló
Lorem Ipsum: Zwischenüberschrift
The base is visible only from the access road, which runs north along the coast. This part of the house is lit by skylights and targeted openings; it includes the garage and part of the living space. Several fascinating outdoor areas emerge around the building between the exterior walls and the volcanic stone.


© Marià Castelló


© Marià Castelló
Lorem Ipsum: Zwischenüberschrift
On the first upper level, light and air are cleverly directed by the cubature. Along with the main wing, which is home to the living-dining area and the master bedroom, the second part contains the remaining spaces and bathrooms for the children. The two volumes are connected via a corridor that is glazed on all sides. Between the two wings, this corridor creates a sheltered inner courtyard with an unobstructed view. A pool rounds out the spatial program of the Mediterranean residence.


© Marià Castelló


© Marià Castelló
Lorem Ipsum: Zwischenüberschrift
The architect duo have combined exposed concrete with the craggy landscape. This material characterizes the single-family home both inside and out; its robust nature makes it ideal for the maritime climate. In all the interior spaces, large-format glazing reveals the view outdoors and, along with built-ins and accents of oak, ensures a cheerful living ambience.
Architecture: Marià Castelló + José Antonio Molina
Client: Private
Location: Carrer Punta de la Creu 15, 17489 El Port de la Selva (ES)
Structural engineering: Think Enginyeria






















