Lebendiger Treffpunkt
Gemeindezentrum in Flandern
Gemeindezentrum in Flandern, © Stijn Bollaert
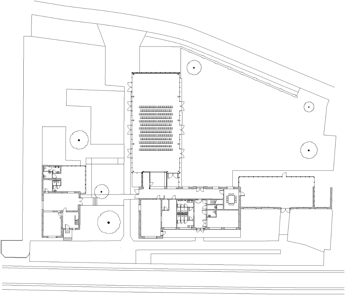
In der kleinen 4000-Einwohner-Gemeinde Zepperen rund 70 km östlich von Brüssel gibt es eine erstaunlich hohe Anzahl an Vereinen. A20 Architecten erhielten den Auftrag für eine multifunktionale Versammlungshalle, die sich für die unterschiedlichen Vereinsaktivitäten flexibel nutzen lässt.


Multifunktionale Versammlungshalle, © Stijn Bollaert
Als Standort dient ein Gelände mit nicht mehr voll genutzten und teilweise baufälligen Rathaus- und Schulgebäuden. Den sanierten Bestand erweitern die Architekten mit kubischen Baukörpern aus Holz und Glas. Zusammen mit der nahen Kirche bildet das neu entstandene Gebäudeensemble inmitten der weitläufigen Ortsbebauung das kommunikative Zentrum, das auch auf die umliegenden Dörfer abstrahlen soll.
Zurückhaltende Gestaltung
Die neue Mitte des Ensembles bildet eine zweigeschossige Halle, die Platz für 250 Personen bietet. Das rechteckige Volumen aus Holz setzt sich deutlich von den kleinteiligeren Ziegelbauten des Bestands ab. Die vertikale Gliederung der Fassade folgt einem einfachen und zurückhaltenden Rhythmus. Der sich zuvor an dieser Stelle befindende Ostflügel der Schule konnte nicht wiederhergestellt werden.


Die zweigeschossige Halle bietet Platz für 250 Personen. © Stijn Bollaert
Erschließung
Auf der Gartenseite bekam das Bestandsgebäude eine neue Erschließung. Sie schafft eine Verbindung zum Neubau und erleichtert gleichzeitig den Zugang zu den sanierten Räumen im ehemaligen Rathaus. Der Südflügel des Ensembles wurde mit einer Holzkolonnade versehen, die weitere Gebäudeteile anbindet.


Innenraum, © Stijn Bollaert


Außenanlage, © Stijn Bollaert
Ein neu angelegter Fußweg führt – zwischen drei riesigen, alten Laubbäumen – quer über das Gelände und dient als öffentliche Verbindung zwischen zwei Straßen. Gleichzeitig schafft er einen direkten Zugang zu allen Gebäudeteilen. Damit schafft das vielfältige Wegenetz einen ebenso funktionalen wie attraktiven Rahmen für informelle Kommunikation.
Architektur: a20 Architecten
Bauherr: Stad Sint Truiden
Standort: Zepperen (BE)
Generalunternehmen: Reynders
Stahlbau: Jeco
Vorhangfassade: Vangrieken
Holzfassade: Baens
Dach: Dakren
Betonböden: Eerdekens Jos
Nutzungsfläche: 1080 m²











