Demontierbares Landhaus
Holzhaus auf Stelzen von Ciguë
© Maris Mezulis
Lorem Ipsum: Zwischenüberschrift
Auf der Suche nach einem Zufluchtsort auf dem Lande beauftragte ein Pariser Ehepaar den Architekten Alphonse Sarthout von Ciguë mit der Planung eines Sommerhauses in Saint-Julien-le-Petit einer kleinen Stadt fünf Stunden südlich von Paris. Gemeinsam ließen sich die Bauherren und das Büro von den Beispielhäusern in Kalifornien inspirieren, um ein Haus zu entwerfen, das sich leicht in die Landschaft einfügt.


© Maris Mezulis
Bauweise
Das Haus steht auf einem Stahlfundament, das vollständig demontiert werden kann, ohne Spuren zu hinterlassen. "Das war die eigentliche Idee: Wenn die Besitzer in 50 Jahren umziehen wollen, können sie das Haus mitnehmen", sagt Sarthout.
Lorem Ipsum: Zwischenüberschrift
Das Holzhaus ist mit schwarz gebeiztem Lärchenholz verkleidet und besteht aus einer Holzrahmenkonstruktion aus Lärchenholz. Ein verzinktes Wellblechdach mit großen Dachüberstand schafft einen geschützten Außenbereich.


© Maris Mezulis
Innenausbau
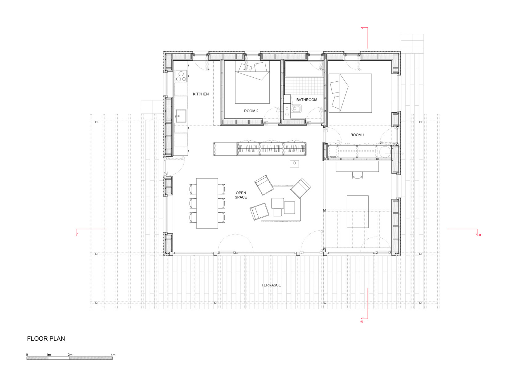
Das Wohnzimmer, der Essbereich und die Küche befinden sich im nach Süden ausgerichteten Teil des Hauses. Großzügige Verglasungen öffnen diesen Raum zur Landschaft hin und füllen das Haus mit natürlichem Licht. Das Büro wandte grundlegende bioklimatische Prinzipien an, um den Raum zu heizen und zu kühlen - so sind beispielsweise die Öffnungen nach Osten und Westen strategisch platziert, um die Seitenwinde einzufangen. Auf dieser Seite sind auch die Decken höher, um den Effekt zu verstärken.


© Maris Mezulis


© Maris Mezulis
Lorem Ipsum: Zwischenüberschrift
Auf der Rückseite des Hauses hat das Studio die Schlafzimmer und ein Arbeitszimmer in einem L-förmigen Raum untergebracht. Abseits der Gemeinschaftsräume bietet dieser Flügel eine intimere Atmosphäre.


© Maris Mezulis
Lorem Ipsum: Zwischenüberschrift
Die Architekten verwendeten Gipskartonplatten für die Wände und Gipsböden sowie Fichtenholz für den Innenausbau und die Fensterrahmen. Schlichte Holzmöbel schaffen eine Parallele zwischen dem ländlichen Standort und dem zeitgenössischen Möbeldesign.
Architektur: Ciguë
Bauherr: privat
Standort: 87460 Saint-Julien-le-Petit (FR)
Fundament: Technopieux
Trockenbau: Sebastien Valen
Innenausbau: Vincent Crinière
Fertigstellung: 2022



















