A demountable country home
Wooden House on Stilts by Ciguë
© Maris Mezulis
Lorem Ipsum: Zwischenüberschrift
In search of a country retreat, a Parisian couple commissioned architect Alphonse Sarthout von Ciguë with the planning of a summer house in Saint-Julien-le-Petit, a hamlet five hours south of Paris. Together, the clients and studio were inspired by the Case Study Houses of California to design a structure that fits lightly into the landscape.


© Maris Mezulis
Building method
The house stands on a steel foundation that can be completely disassembled without trace. “This was the actual idea: in 50 years, when the owners want to move, they can take the house with them”, says Sarthout.
Lorem Ipsum: Zwischenüberschrift
The wooden house is clad with black-stained larchwood and consists of a wood-frame construction, also of larch. A roof of galvanized corrugated sheeting with a large canopy creates a sheltered outdoor area.


© Maris Mezulis
Interior design
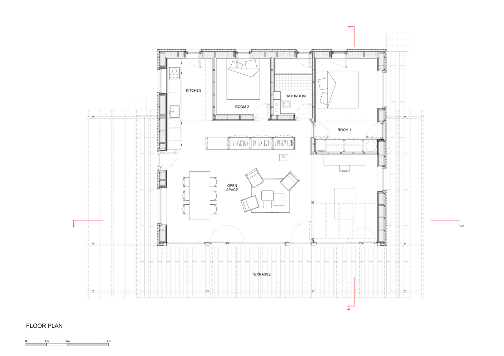
The living room, dining area and kitchen are in the south-facing part of the house. Generous glazing opens this space onto the landscape and fills the home with natural light. The architects worked with fundamental bioclimatic principles to heat and cool the space: for instance, the openings to the east and west have been strategically placed to catch the crosswinds. Moreover, the ceilings here are higher, which adds to the effect.


© Maris Mezulis


© Maris Mezulis
Lorem Ipsum: Zwischenüberschrift
At the rear of the house, the architects have accommodated the bedrooms and a home office in an L-shaped space. Set apart from the shared areas, this wing offers a more intimate ambience.


© Maris Mezulis
Lorem Ipsum: Zwischenüberschrift
Gypsum plasterboard has been used for the walls and flooring, while the interior fittings and window frames are of spruce. Sleek wooden furnishings forms a parallel between the rural location and contemporary furniture design.
Architecture: Ciguë
Client: private
Location: 87460 Saint-Julien-le-Petit (FR)
Foundation: Technopieux
Drywall construction: Sebastien Valen
Interior design: Vincent Crinière
Completion date: 2022



















