In neuem Glanz
Idom sanieren Bizkaia Tower in Bilbao
Bizkaia Tower in Bilbao, © Aitor Ortiz
In Bilbao hat das Planungsbüro Idom das Hochhaus der Banco de Vizcaya zum Büro- und Einkaufszentrum umgebaut – und dabei sogar die markante Sonnenschutzverglasung originalgetreu wiederhergestellt.


Innenraum, © Aitor Ortiz
Shoppen und Arbeiten im Hochhaus
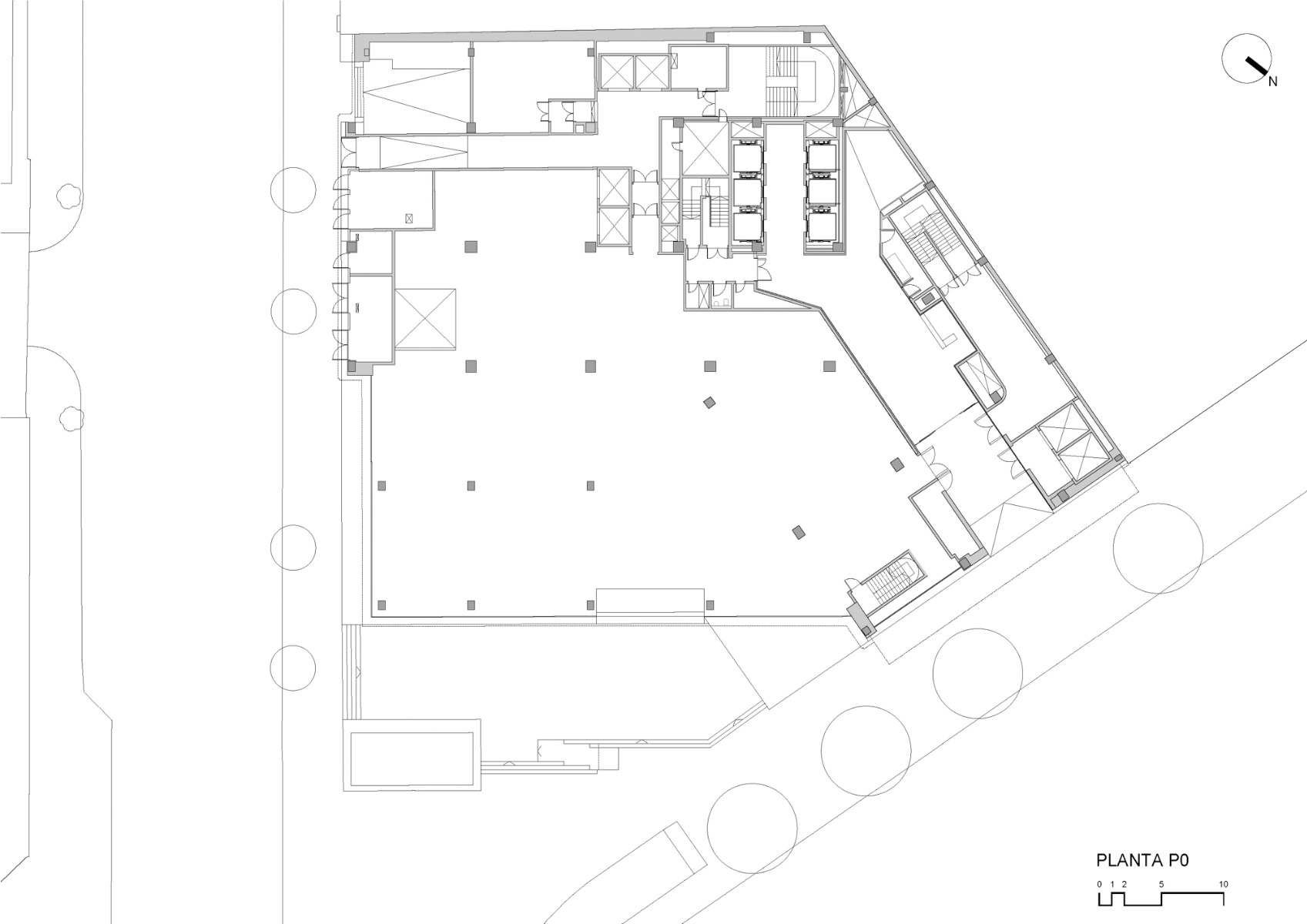
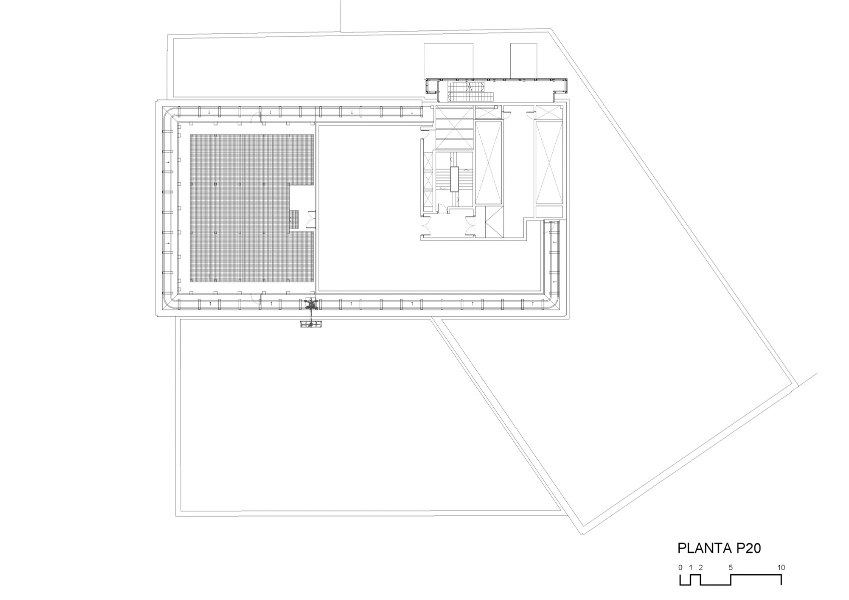
Der knapp 90 m hohe Verwaltungsbau gegenüber dem Hauptbahnhof Abando, entstand 1969 nach Plänen José Enrique Casanueva, Jaime Torres und José Maria Chapa. Früher diente er als Hauptverwaltung der BBVA-Bankengruppe. Jetzt hat Idom die unteren sechs der 22 Geschosse zum Einkaufszentrum umgewidmet.
Die Büroetagen weiter oben wurden ebenfalls entkernt und mit neuen Fassaden und technischen Installationen versehen. Das Stahlskelett des Turms erhielt aus Brandschutzgründen eine Umhüllung mit Beton. Eine Prämisse bei der Planung lautete, dass das ursprüngliche Fassadenbild so weit als möglich wiederhergestellt werden sollte.


Einer von zwei Haupteingängen, © Aitor Ortiz
Die größten Veränderungen brachte die neue Nutzung der unteren Etagen mit sich. Das Haus hat nun zwei Haupteingänge – einen vom Vorplatz im Osten zu den Einkaufsläden und den bereits bestehenden von der Gran Via zu den Büroetagen. Im sechsgeschossigen Gebäudeflügel entstanden neue, größere Fluchttreppenhäuser und ein durchgehender Luftraum über alle Etagen, der Platz für Rolltreppen bietet.


Im Bizkaia Tower befindet sich in den unteren sechs Geschossen ein Einkaufszentrum. © Aitor Ortiz


Sonnenschutzverglasung, © Aitor Ortiz
Originalgetreue Fassade
An den Fassaden wechseln sich Fensterbänder aus 2,4 x 2,2 m großen Sonnenschutzgläsern mit Brüstungsbändern aus Sandwichelementen und vorgehängten, hinterlüfteten Gussaluminium-Paneelen ab. Weil die Fenster undicht, die Brüstungen kaum gedämmt und die Metallpaneele von Jahrzehnten der Luftverschmutzung schwarz angelaufen waren, wurden sie komplett erneuert. Selbst die ursprüngliche, rosafarbene Sonnenschutzbeschichtung ließen die Architekten dabei in einem Coating-on-Demand-Verfahren originalgetreu nachbilden.


© Aitor Ortiz
Für den Eingangsbereich zum Büroturm und die Aufzugslobby im Erdgeschoss bereinigten die Architekten das vorhandene Durcheinander aus Fluchttüren, Geldautomaten und anderen Einbauten durch eine Verkleidung aus profiliertem Metallblech – außen aus dunkel eloxiertem Aluminium und innen aus weiß lackiertem Stahlblech. Marmorverkleidungen in unterschiedlichen Farben und die goldeloxierte Blechverkleidung der Aufzugskerne ergänzen die Materialpalette in diesem Bereich.
Mehr dazu in Detail 10.2023 und in unserer Datenbank Detail Inspiration.
Architektur, Tragwerks- und TGA-Planung, Brandschutz, Akustik, LEED-Zertifizierung: IDOM
Bauherr: AG TL
Standort: Gran Vía 1, 48001 Bilbao (ES)





































