Wahrzeichen des Industriezeitalters
Wilkinson Eyre sanieren Battersea Power Station in London
Battersea Power Station in London, © John Sturrock
Im Auftrag eines Investors aus Malaysia haben Wilkinson Eyre das Londoner Battersea-Kraftwerks zur Shopping Mall mit Büros und Wohnungen umgebaut. Die Interieurs der eindrucksvollen Turbinenhallen blieben dabei weitgehend erhalten.


Die Battersea Power Station liegt im Südwesten von London. © Jason Hawkes
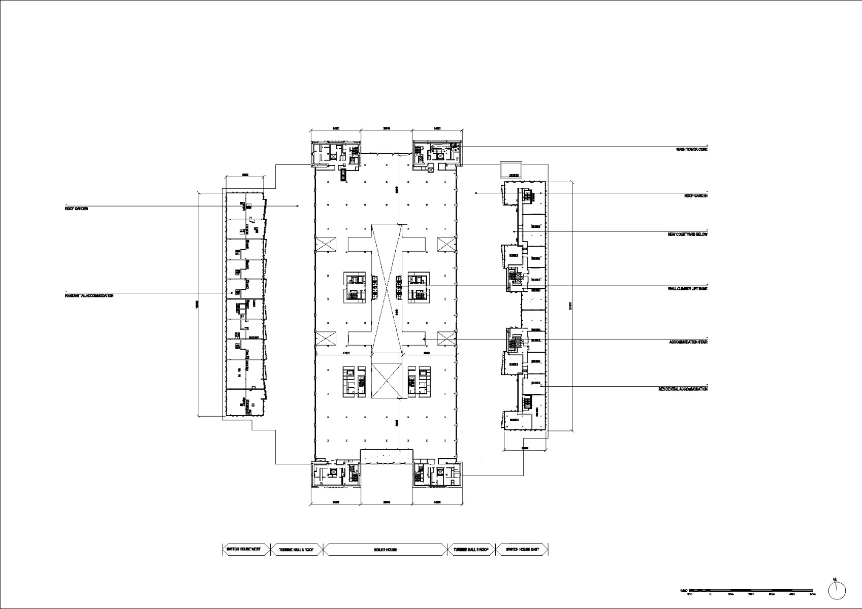
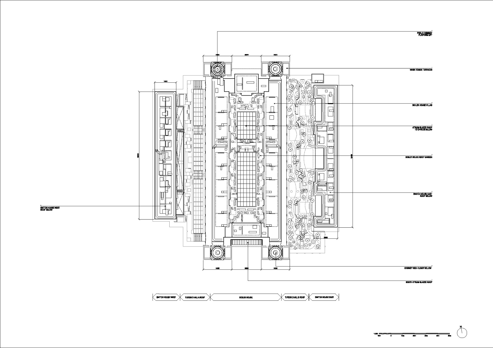
Riesig, verlassen und rußgeschwärzt – so haben die meisten Londoner die Battersea Power Station im Südwesten der Stadt seit seiner Stilllegung im Jahr 1983 erlebt. Erbaut wurde das Kraftwerk, das einst ein Fünftel des Londoner Strombedarfs deckte, zwischen 1929 und 1955 nach Plänen von Sir Giles Gilbert Scott. Das zentrale, hoch aufragende Kesselhaus wird seitlich von zwei symmetrisch angeordneten Turbinenhallen flankiert, an die sich wiederum die elektrischen Schaltzentralen anschließen. Vier gut 100 m hohe Schornsteine überragen den Komplex und machen ihn zu einem Wahrzeichen des Londoner Industriezeitalters.
Viele Investoren haben sich schon vergeblich an einem Revival der Kraftwerksruine versucht. Schließlich nahm sich ein Konsortium aus Malaysia des Gebäudes an – und auch des umliegenden, 17,5 ha großen Areals, auf dem derzeit ein Wohn- und Geschäftsquartier für rund 25 000 Bewohner und Arbeitskräfte entsteht.


Das neue Einkaufszentrum nimmt die unteren drei Kraftwerksetagen und die beiden Turbinenhallen ein. © John Sturrock
Restaurierte Backsteinfassaden
Das neue Einkaufszentrum nimmt die unteren drei Kraftwerksetagen und die beiden Turbinenhallen ein. In diesen gewaltigen, in den 1930er- und 1950er-Jahren entstandenen Räumen blieb das zeittypische Dekor weitgehend erhalten. Gleiches gilt für die beiden Kontrollräume, von denen einer zur Bar und der andere zur Eventlocation umgebaut wurde.


© Hufton & Crow


© Peter Landers
Im zentralen, zuvor komplett entkernten Kesselhaus stapelten die Architekten sehr unterschiedliche Nutzungen übereinander: auf die Ladenetagen folgt ein Kino, darüber ein Technikgeschoss und schließlich sechs Bürogeschosse, die von drei gebäudehohen Atrien belichtet werden. Zwei davon liegen direkt hinter dem Nord- und Südeingang und erlauben auch den Ladenbesuchern einen Eindruck von der gewaltigen Höhe des zentralen Gebäudeflügels. Auf dessen Dach umgibt eine Reihe von Penthouses einen zentralen Dachgarten. Weitere Wohnungen sind in den Seitenflügeln des Gebäudes entstanden. Für sie fügten die Architekten eigens über 100 hohe, schmale Fensteröffnungen in die zuvor fensterlosen Längswände des Gebäudes ein.


1,9 Millionen Ziegel mussten im Zuge der Sanierung erneuert werden. © John Sturrock
Rekonstruierte Beton-Schornsteine
Rund 6 Millionen Ziegel waren einst an dem Kraftwerk verbaut worden, 1,9 Millionen mussten jetzt im Zuge der Sanierung erneuert werden. Auch die Schornsteine wurden originalgetreu rekonstruiert – mit von Hand gegossenem Beton, insgesamt 25 000 Schubkarren voll.
Architektur: WilkinsonEyre
Bauherr: Battersea Power Station Development Company
Standort: Circus Rd W, Nine Elms, London SW11 8AL (GB)
Tragwerksplanung: Buro Happold
Landschaftsarchitekten: LDA Design
TGA-Planung: Chapman BDSP
Denkmalpflege: Purcell
Lichtplanung: Speirs & Major
Bauleitung: MACE






























