Repurposing
Wilkinson Eyre Overhaul Battersea Power Station in London
Battersea Power Station in London, © John Sturrock
On behalf of an investor from Malaysia, Wilkinson Eyre have transformed London’s Battersea Power Station into a shopping mall featuring offices and flats. For the most part, the interiors of the impressive turbine halls have been preserved.


© Jason Hawkes
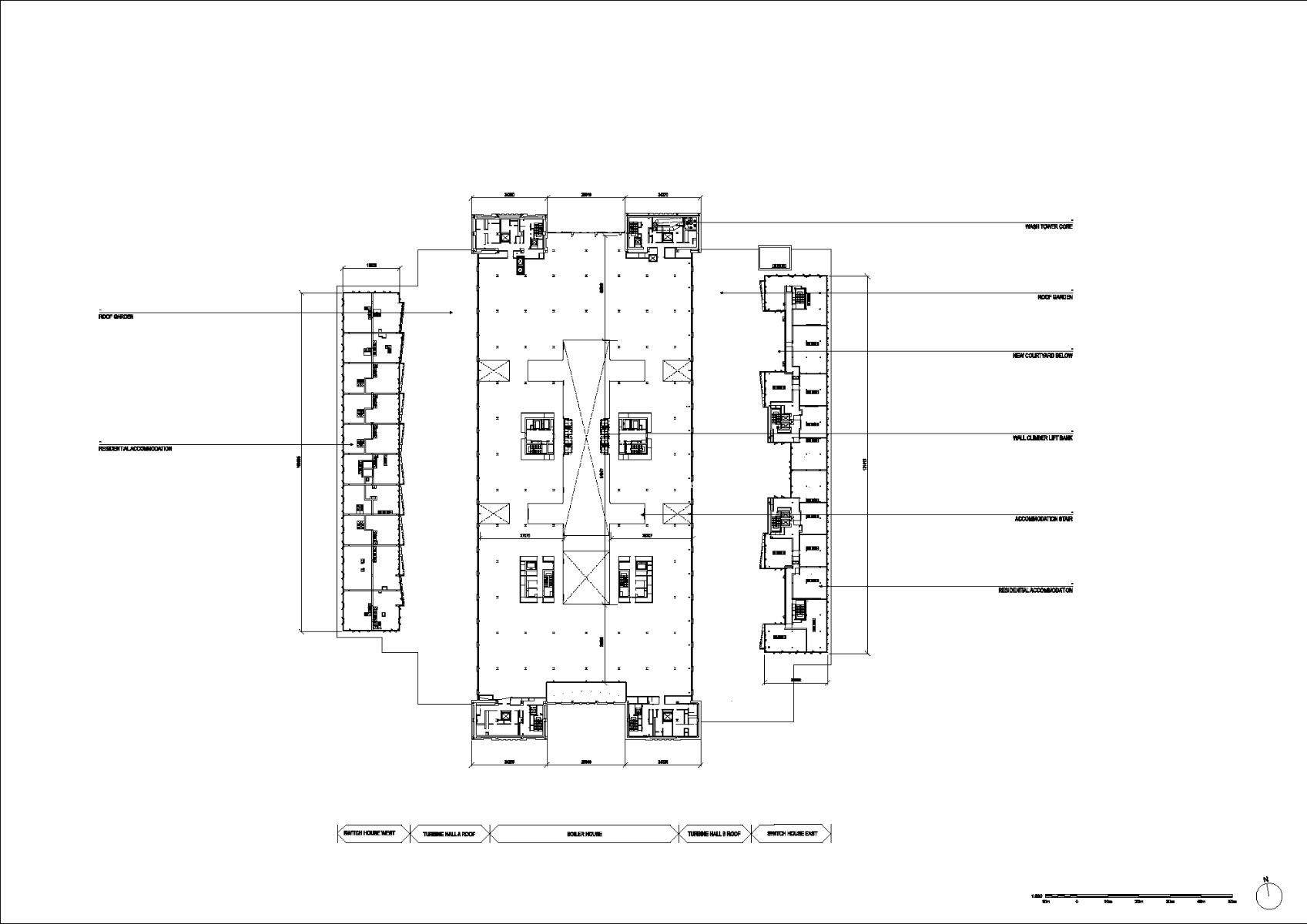
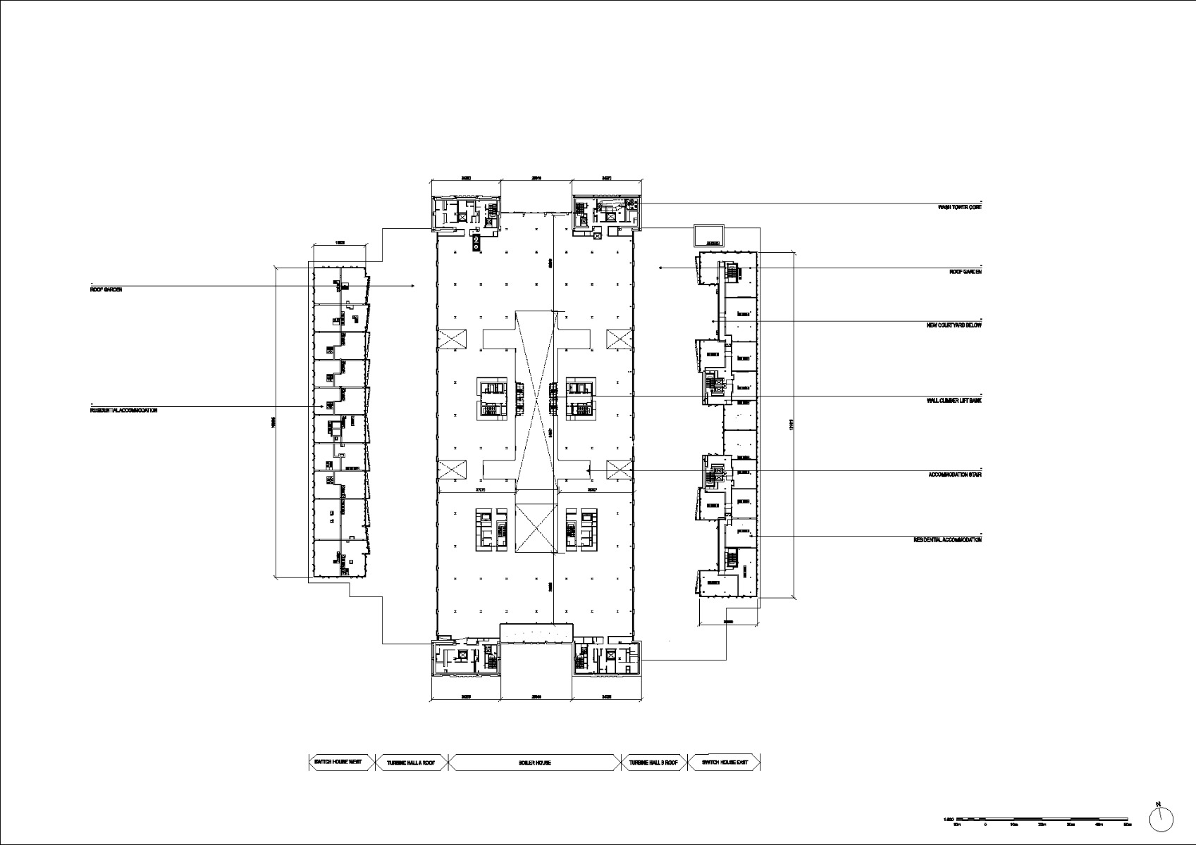
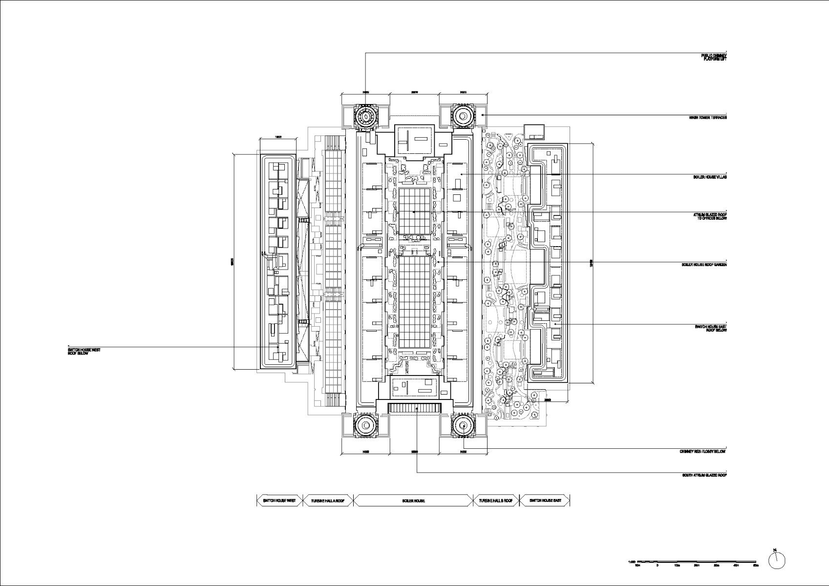
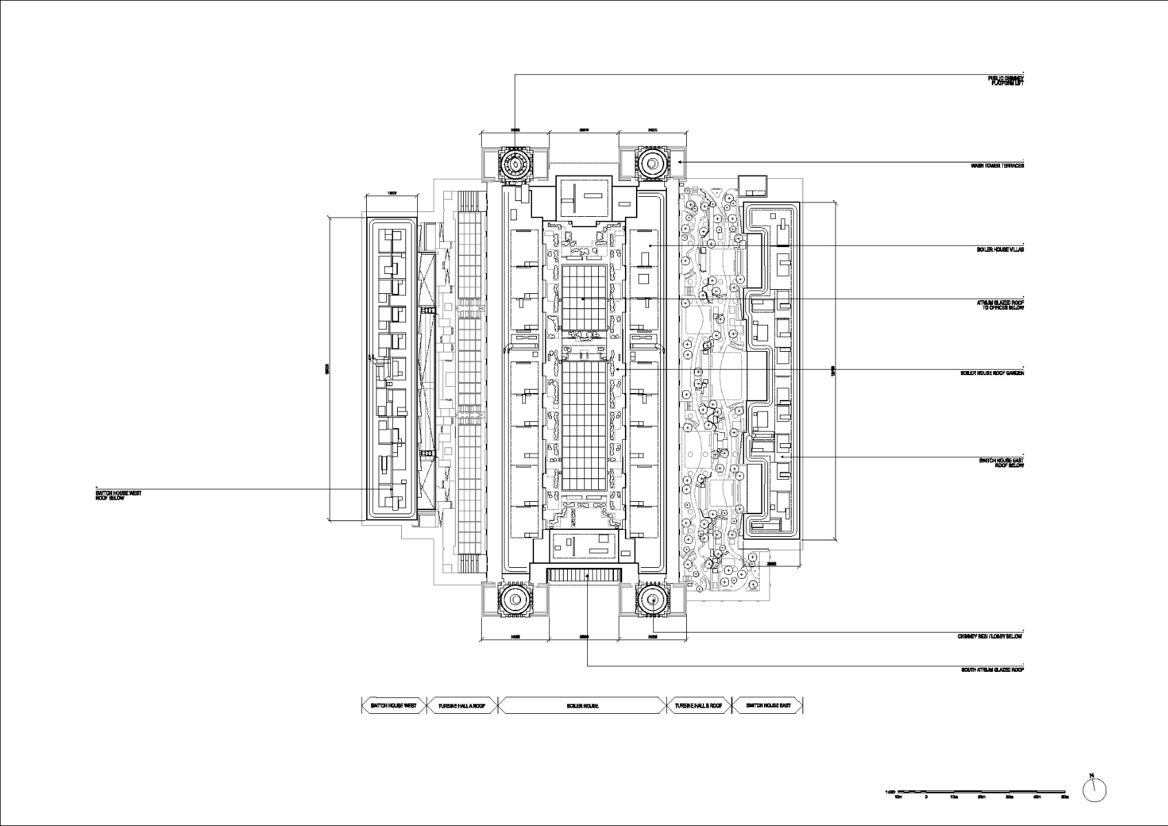
Gigantic, abandoned and blackened with soot – this is how most Londoners have experienced Battersea Power Station, located in the city’s southwest, since it was decommissioned in 1983. The plant, which once covered one-fifth of London’s electricity requirements, was built according to plans by Sir Giles Gilbert Scott from 1929 to 1955. The central, dramatically jutting boiler house is flanked by two symmetrically arranged turbine halls which in turn are adjacent to the electrical switch houses. Four chimneys, each easily 100 m tall, tower over the complex and make it a true landmark of London’s industrial age.
Many investors have already attempted in vain to revive the old power station. Ultimately, a consortium from Malaysia took on the structure – and its surrounding 17,5-ha area, where a residential and commercial district is currently being created for around 25 000 inhabitants and employees.


© John Sturrock
Restored brick facades
The new shopping centre encompasses the three lower levels of the plant as well as the two turbine halls. In these imposing spaces from the 1930s and 1950s, the period décor has been largely preserved. The same is true of the two control rooms, one of which has been repurposed as a bar even as the other now serves as an event venue.


© Hufton & Crow


© Peter Landers
In the central, previously gutted boiler house, the architects have stacked up varying functions: a cinema on the loading floors, above that a technical level and finally six office storeys lit by three building-high atria. Two of these atria are situated directly behind the north and south entrances, giving shoppers an impression of the monumental height of the central wing of the building. On the roof, rows of penthouses overlook a garden. Further apartments have been created in the lateral wings of the structure. For these, the architects have expressly added more than 100 tall, narrow window openings to the formerly windowless longitudinal walls.


© John Sturrock
Reconstructed concrete chimneys
Originally, nearly 6 million bricks were used to build the power station. Over the course of the repurposing project, 1,9 million have had to be replaced. Even the chimneys have been faithfully reconstructed – with 25 000 wheelbarrows’ worth of hand-poured concrete.
Architecture: WilkinsonEyre
Client: Battersea Power Station Development Company
Location: Circus Rd W, Nine Elms, London SW11 8AL (GB)
Structural engineering: Buro Happold
Landscape architecture: LDA Design
Building services engineering: Chapman BDSP
Monument conservation: Purcell
Lighting design: Speirs & Major
Site management: MACE






























