In new splendour
Remodelled by Idom: Bizkaia Tower in Bilbao
Bizkaia Tower in Bilbao, © Aitor Ortiz
The Idom planning office has refashioned the Banco de Vizcaya high-rise in Bilbao into an office and shopping centre – in the process even faithfully restoring the striking solar control glazing.


© Aitor Ortiz
Work and shopping in the tower building
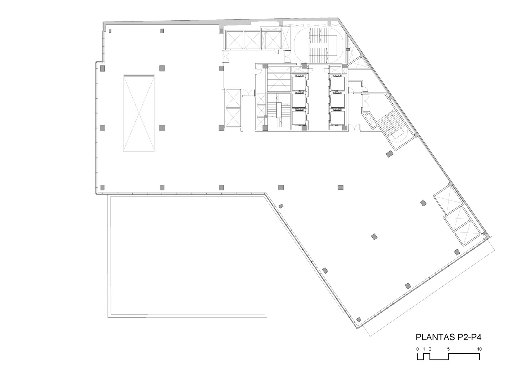
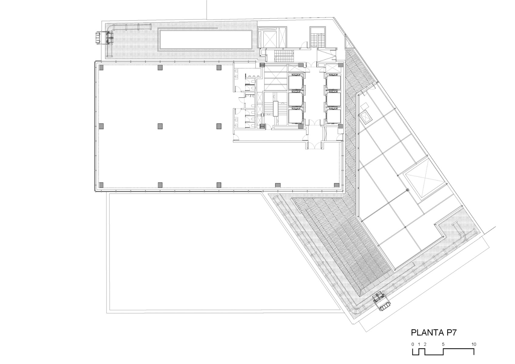
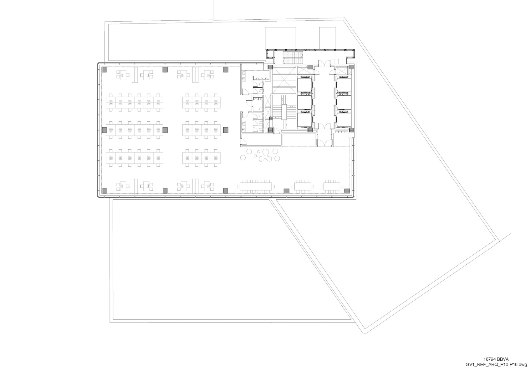
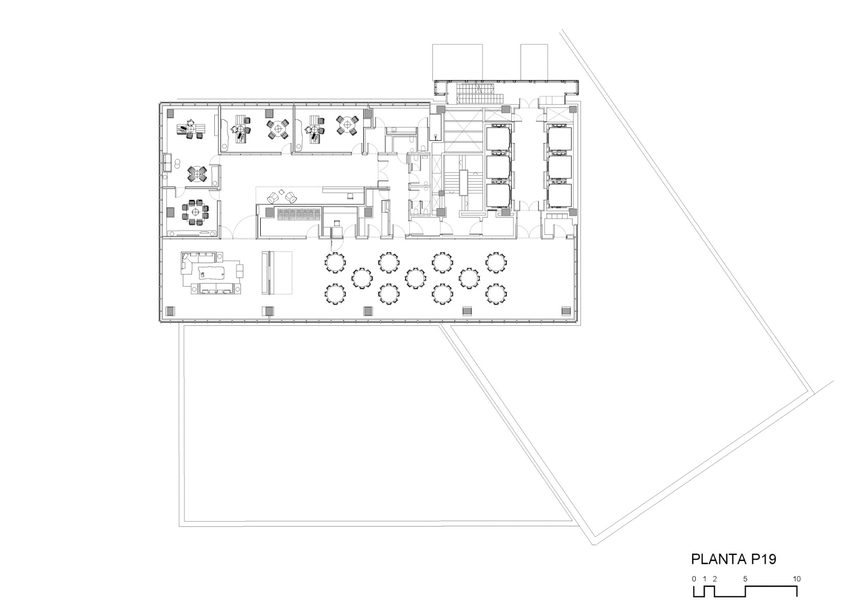
The almost 90-m-high administration building opposite Abando central station came about in 1969 according to plans by José Enrique Casanueva, Jaime Torres and José Maria Chapa. Once it served as the administrative headquarters of the BBVA banking group; now Idom has repurposed the lowest six of its 22 storeys into a shopping centre.
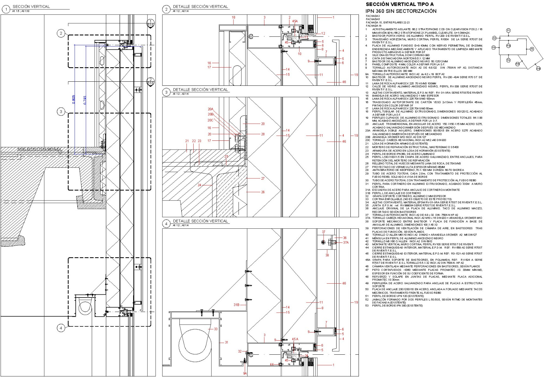
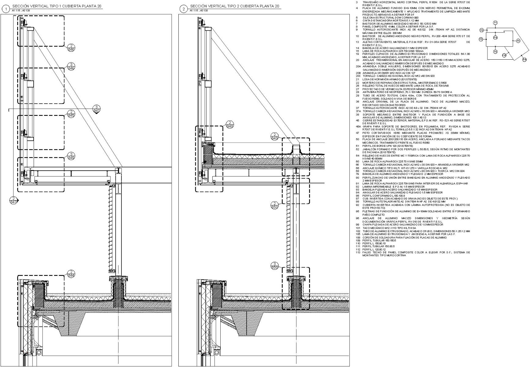
The higher office floors have likewise been gutted and provided new facades and technical installations. The towering building's steel skeleton has been encased in concrete for fire protection reasons, and a particular planning objective was to restore the facade's original look as far as possible.


© Aitor Ortiz
The new use for the lower storeys has involved the greatest changes. The building now has two main entrances – one leads to the shops from the forecourt in the east, the other, which already existed, to the office floors from Gran Via. New and larger fire escape stairs have been incorporated in the building's six-storey wing along with a void that rises through all levels and provides room for escalators.


The Bizkaia Tower houses a shopping centre on the lower six floors. © Aitor Ortiz


Solar control glazing, © Aitor Ortiz
Faithfully restored facade
The existing facade consisted of ribbon windows with 2,4 x 2,2-m solar control glazing alternating with spandrel bands made of sandwich elements and curtain-hung back-ventilated cast aluminium panels. However as the windows leaked, the spandrels were scarcely insulated and the metal panels had turned black from decades of air pollution, they were all renewed. The architects even had the original pink-coloured solar control coating faithfully reproduced in a coating-on-demand process.


© Aitor Ortiz
In the area of the entrance to the office floors and in the elevator lobby on the ground floor, the architects replaced the existing clutter of emergency escape doors, telling machines and other fixtures with profiled sheet metal cladding, using dark anodised aluminium on the outside and white painted sheet steel indoors. Marble facings in various hues and the gold-anodised metal panelling of the elevator cores complement the material palette in this area.
More in Detail 10.2023 and in our databank Detail Inspiration.
Architecture, Structural and building services engineering, fire prevention, acoustics, LEED certification: IDOM
Client: AG TL
Location: Gran Vía 1, 48001 Bilbao (ES)





































