Historie trifft Moderne
Lübecker Stadthaus von Henrik Becker Architekt
© Hannes Heitmüller
Lorem Ipsum: Zwischenüberschrift
Im Lübecker Gründungsviertel gestaltet der Architekt Henrik Becker ein Stadthaus. Der Entwurf zu Fisch 18 greift die historischen Strukturen auf und verwandelt sie in modernen Wohnraum. Im geschichtsträchtigen Kaufmannsquartier wurden im Zweiten Weltkrieg zahlreiche historische Bauten zerstört.


© Hannes Heitmüller


© Hannes Heitmüller
Lorem Ipsum: Zwischenüberschrift
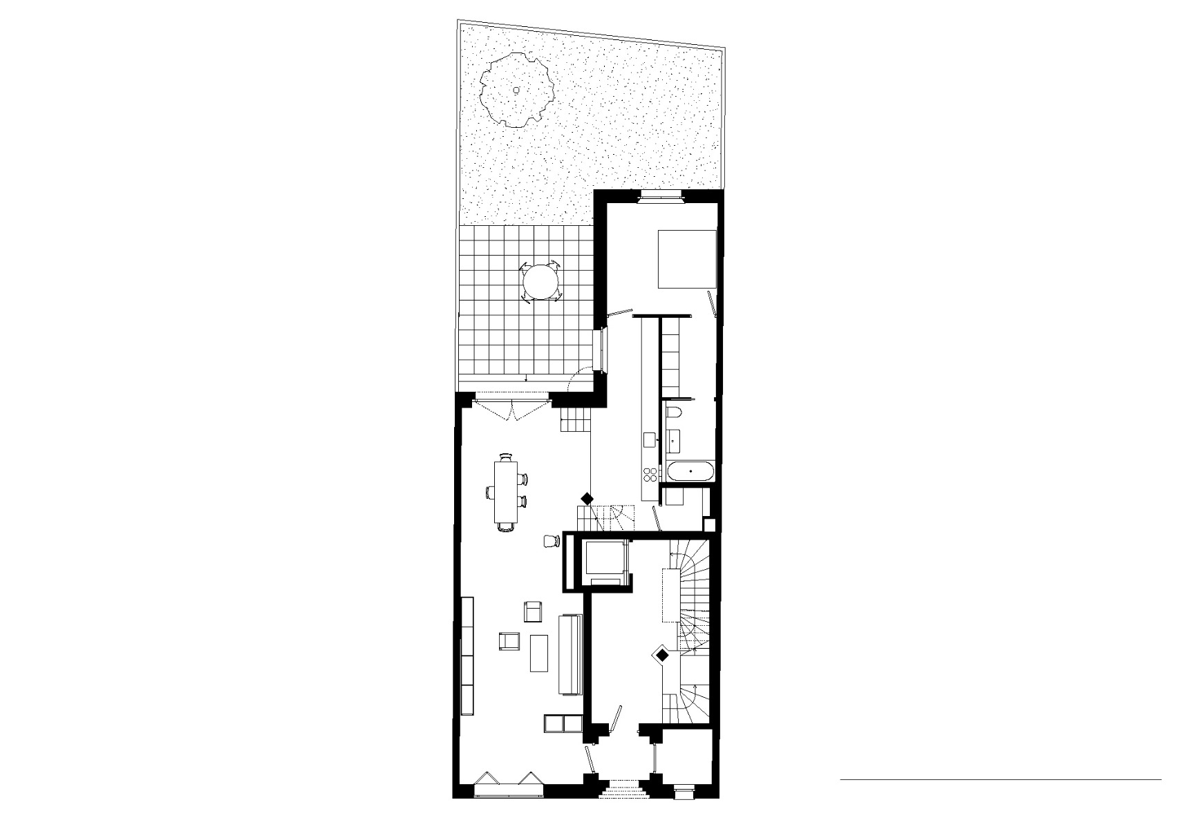
Das Stadthaus in der Fischstraße entstand auf einer von vielen Parzellen, die nach dem Vorbild des Bestands neu bebaut werden sollte. Mit roten Backsteinfassaden und einem spitzen Giebeldach greift der Hamburger Planer die Optik der originalen Häuserfronten auf und fügt das Wohnhaus stimmig in die Altstadt von Lübeck ein. Charakteristische Holz-Rundbogenfenster und französische Balkone komplettieren die Ansichten. Zum Garten hin ist dem rechteckigen Baukörper ein zweigeschossiges Volumen vorgelagert, welches dem ersten Obergeschoss als Dachterrasse dient.


© Hannes Heitmüller


© Hannes Heitmüller
Lorem Ipsum: Zwischenüberschrift
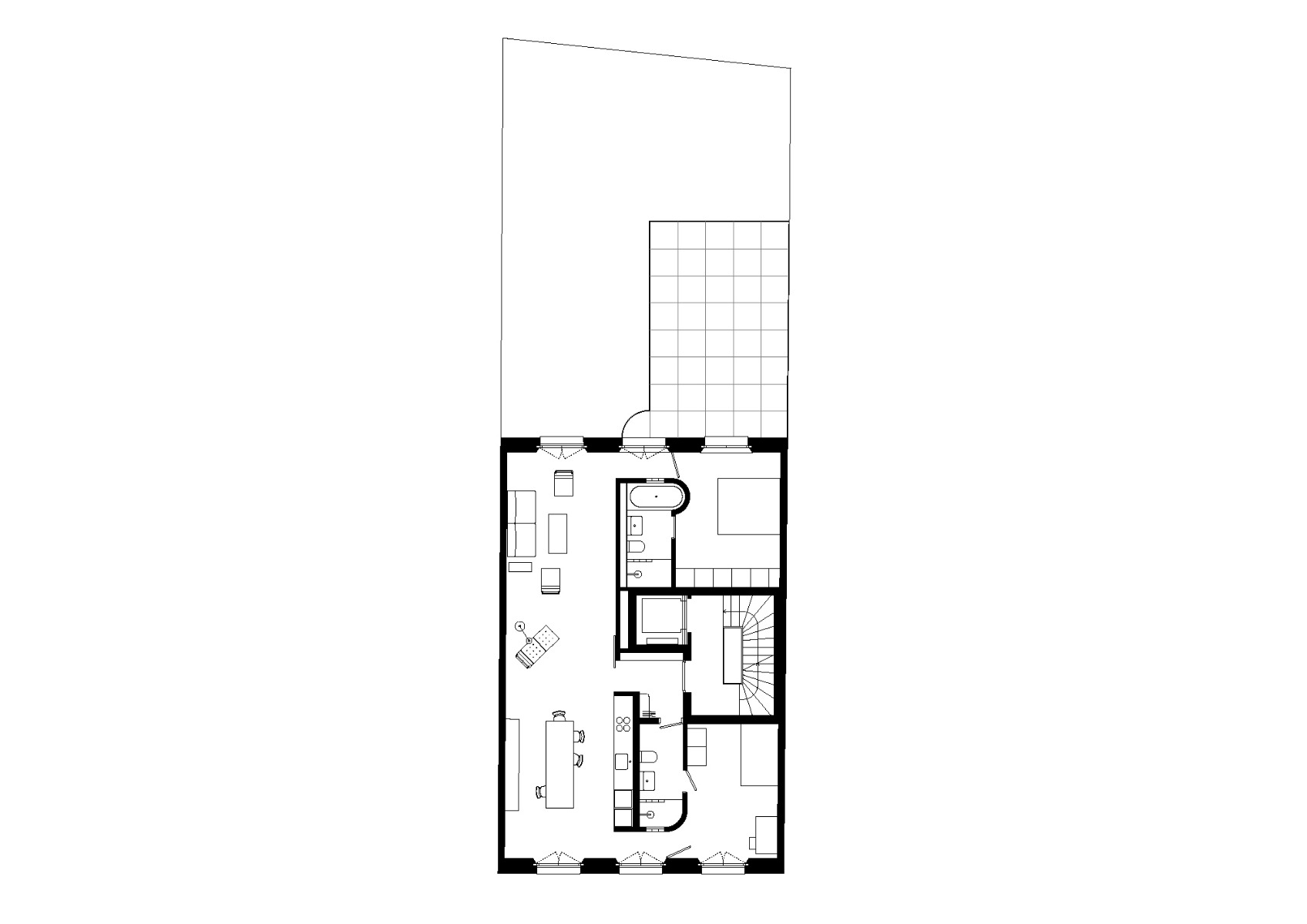
Hinter seinen roten Ziegelfassaden verfügt der Neubau – inspiriert von der Typologie der Kaufmannshäuser – über die typische, doppelstöckige Diele im Erdgeschoss. Überhohe Räume und offene Galerien sorgen trotz 14 m tiefen Grundrissen für eine angenehme Atmosphäre und verleihen dem Stadthaus seinen besonderen Charme.


© Hannes Heitmüller


© Hannes Heitmüller
Lorem Ipsum: Zwischenüberschrift
Sämtliche Innenräume sind geprägt durch hochwertige Materialien, raffinierte Rundungen und Einbauten mit Liebe zum Detail. Die großzügig gestalteten Wohnbereiche erstrecken sich über die gesamte Gebäudelänge. Selbst der Platz unter dem spitzen Dach ist durch eine Wendeltreppe erschlossen und bis in den letzten Winkel genutzt. Mit insgesamt fünf Apartments vereint Fisch 18 so mitten in der Stadt eine hohe Dichte mit maximaler Wohnqualität.
Architektur: Henrik Becker Architekt
Bauherr: Privat
Standort: Fischstraße 18, 23552 Lübeck (DE)
Tragwerksplanung: Ingenieurbüro Hartmann & Stange





















