Vorgefertigt
Modulare Holzbau-Kitas von Kersten Kopp Architekten in Berlin
© Luna und Ute Zscharnt
Berlin entdeckt den vorgefertigten Holzbau: Überall in der Stadt entstehen derzeit modulare Kita-Neubauten. Elf davon haben Kersten Kopp Architekten geplant, die ersten vier sind schon fertiggestellt.


© Luna und Ute Zscharnt
Lorem Ipsum: Zwischenüberschrift
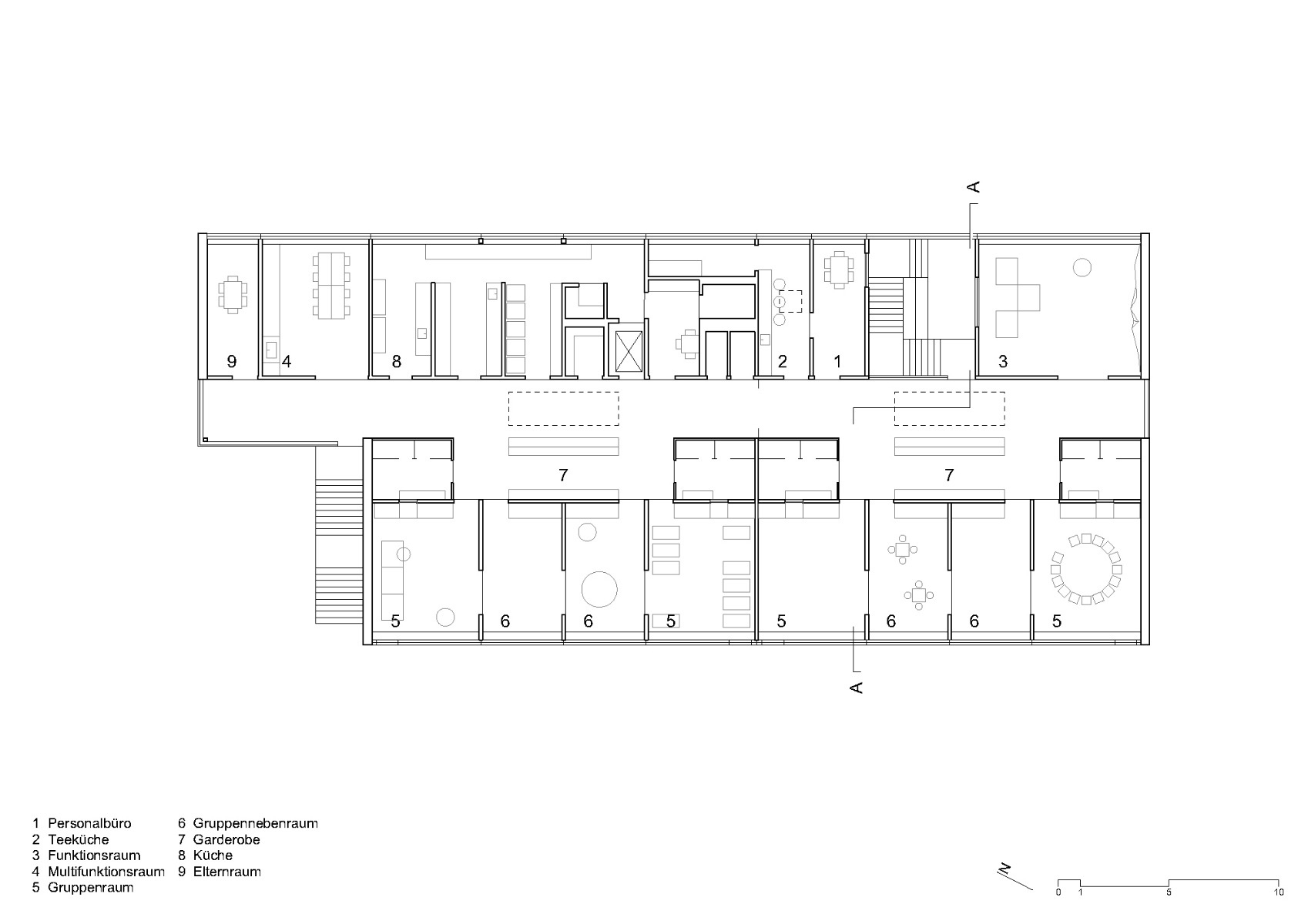
2017 hatte die Senatsverwaltung für Stadtentwicklung und Wohnen zwei Wettbewerbe für typisierte Holzbau-Kitas in unterschiedlichen Größen ausgelobt. Die Konkurrenz für die kleinere Variante mit 60-120 Plätzen (MOKIB 60 plus) hatten Kersten Kopp für sich entschieden.
Ihr Entwurf basiert auf mehreren Grundmodulen, die sich zu riegel-, L- und U-förmigen Baukörpern kombinieren lassen. Die Kitas werden an einer Gebäudeecke erschlossen, sodass die Baukörper wahlweise senkrecht oder parallel zu den Erschließungsstraßen oder -wegen ausgerichtet sein können. Durch die Zweibund-Typologie mit durchgehendem Mittelflur lassen sich die Gebäude axial oder über Eck an Bestandsbauten andocken.


© Luna und Ute Zscharnt
Auf der einen Seite des Spielflurs liegen die Gruppenraummodule samt Sanitärräumen, auf der anderen die Funktionsräume sowie das Eingangs- und Erschließungsmodul. Vor jedem Gruppenraumpaar legten die Architekten einen gemeinsamen „Vorplatz“ mit Garderobe als Erweiterung des Flurs an. Je zwei Gruppenräume und zwei Nebenräume lassen sich zu einem gemeinsamen Raum zusammenschalten.


© Luna und Ute Zscharnt


© Luna und Ute Zscharnt
Tragende Innenwände und Decken aus Massivholzfertigteilen bilden das konstruktive Grundgerüst der Gebäude. Die Außenwände bestehen an den Längsseiten der Kitas aus Holzskelett- und an den Stirnseiten aus Holzrahmenelemente. Vorvergraute Lärchenholzprofile bekleiden die geschlossenen Fassadenflächen.


© Werner Huthmacher
Im Gebäudeinneren bleiben die hölzernen Wand- und Deckenoberflächen weitestgehend sichtbar. Auch die Akustik-Lamellendecken und die Einbaumöbel sind aus Fichtenholz gefertigt.
Architektur: Kersten Kopp Architekten
Bauherr: Senatsverwaltung für Stadtentwicklung und Wohnen, Abteilung V Hochbau, Berlin
Standorte: Wittenauer Straße 151, Berlin (DE),
Kummerower Ring 30, 12619 Berlin (DE),
Helmholtzstraße 34, 12459 Berlin (DE),
Kaulbachstraße 57, 12247 Berlin (DE)
Tragwerksplanung: Pichler Ingenieure
Landschaftsarchitektur: capattistaubach urbane landschaften
TGA-Planung: Ingenieurgesellschaft W33
Projektsteuerung: Schüßler-Plan Ingenieurgesellschaft























